643 Lyon Rd, Wandi, WA 6167
Sold Price: 1,650,000 (04 Jun 2024)
5 ACRE LIFESTYLE OR DEVELOPMENT IN WANDI
The Phone Code for this property is: 84436. Please quote this number when phoning or texting.
HOME OPEN - THIS SATURDAY 9.30AM-11.30AM
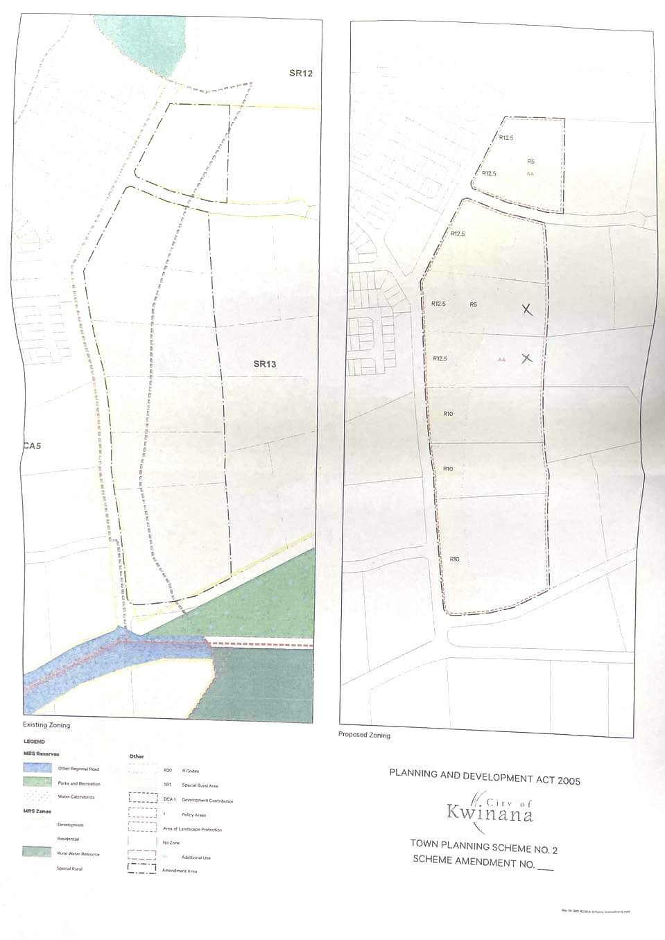
ZONED SPECIAL RURAL - FRONT HALF ZONED URBAN RESIDENTIAL.
Currently tenanted but can view during the week or weekend.
Enchanting 3x2 Home on a Sprawling 5-Acre Haven with a Touch of Rustic Elegance We have built a room on the front of the workshop making this a 4x2.
Located within walking distance of the local primary school, dog park, and lots more. Huge potential for Partially Zoned R12.5 and R5
This 5-acre property is perfect for families looking to settle down with their spacious dream home. With an opportunity to make this your forever home, or opportunity to develop part of the property and live in the house.
This property is currently tenanted on a fixed lease until 12/2024, currently paying $750 a week rent. However current tenants are looking at moving so new owners have the option to move into the house also if that works for both parties.
PROPERTY FEATURES:
• Built 1989
• 140 sqm of living
• Land size: 2.0 ha (5 acres)
Key features:
✅ 3 bedroom, 2 bathroom brick & tile home
✅ 6x4m room built onto front of workshop (Ultimately a 4x2)
✅ High timber-lined racked ceilings
✅ Split system air conditioning in every room, including the kitchen
✅ Gourmet Kitchen
✅ Charming wood fireplace & pot belly stove
✅ Newly carpeted lounge and bedroom
✅ Modern bathroom
✅ 6x12m brick workshop
✅ Bore reticulation and 3 water tanks
✅ Abundance of Fruit Trees
✅ Diverse Ecosystem right at your Doorstep
✅ 1.99ha (approx. 5 acres) ideally located nearby public open space, shops, local school, dog park and only 20 mins to Perth.
This property is not just a home; it's a lifestyle. Embrace the charm and character of this unique property and make it your own personal sanctuary.
Disclaimer:
Whilst every care has been taken to verify the accuracy of the details in this advertisement, For Sale By Owner (forsalebyowner.com.au Pty Ltd) cannot guarantee its correctness. Prospective buyers or tenants need to take such action as is necessary, to satisfy themselves of any pertinent matters.
HOME OPEN - THIS SATURDAY 9.30AM-11.30AM
ZONED SPECIAL RURAL - FRONT HALF ZONED URBAN RESIDENTIAL.
Currently tenanted but can view during the week or weekend.
Enchanting 3x2 Home on a Sprawling 5-Acre Haven with a Touch of Rustic Elegance We have built a room on the front of the workshop making this a 4x2.
Located within walking distance of the local primary school, dog park, and lots more. Huge potential for Partially Zoned R12.5 and R5
This 5-acre property is perfect for families looking to settle down with their spacious dream home. With an opportunity to make this your forever home, or opportunity to develop part of the property and live in the house.
This property is currently tenanted on a fixed lease until 12/2024, currently paying $750 a week rent. However current tenants are looking at moving so new owners have the option to move into the house also if that works for both parties.
PROPERTY FEATURES:
• Built 1989
• 140 sqm of living
• Land size: 2.0 ha (5 acres)
Key features:
✅ 3 bedroom, 2 bathroom brick & tile home
✅ 6x4m room built onto front of workshop (Ultimately a 4x2)
✅ High timber-lined racked ceilings
✅ Split system air conditioning in every room, including the kitchen
✅ Gourmet Kitchen
✅ Charming wood fireplace & pot belly stove
✅ Newly carpeted lounge and bedroom
✅ Modern bathroom
✅ 6x12m brick workshop
✅ Bore reticulation and 3 water tanks
✅ Abundance of Fruit Trees
✅ Diverse Ecosystem right at your Doorstep
✅ 1.99ha (approx. 5 acres) ideally located nearby public open space, shops, local school, dog park and only 20 mins to Perth.
This property is not just a home; it's a lifestyle. Embrace the charm and character of this unique property and make it your own personal sanctuary.
Disclaimer:
Whilst every care has been taken to verify the accuracy of the details in this advertisement, For Sale By Owner (forsalebyowner.com.au Pty Ltd) cannot guarantee its correctness. Prospective buyers or tenants need to take such action as is necessary, to satisfy themselves of any pertinent matters.
Features
Bath, Fireplace(s), Heating, Modern Bathroom, Modern Kitchen, Renovated Bathroom, Renovated Kitchen, Entertainment Area, Garden, Garden Shed, Pet Friendly, Rainwater Tank, Close to Parklands, Close to Schools, Close to Shops, Close to Transport, Nature Property, Air Conditioning, Built-ins, Ensuite, Dishwasher, Workshop, Living Area, Fully Fenced
Need a Home Loan?
Get pre-approved for a home loan within 48 hours. Click Here or more information.
- Last 24 Hours0
- Last 7 Days0
- Last 30 Days2
Views
Contact the Owner
Phone or Text: 0488 847 018
Enter Phone Code: 84436
Enter Phone Code: 84436
"*" indicates required fields