15 Hillman Street, Darkan, WA 6392
Sold Price Not Disclosed (01 Dec 2021)
Just Move In!
The Phone Code for this property is: 83950. Please quote this number when phoning or texting.
If you're looking for comfortable and affordable living in a friendly country town then this is it. Recently redecorated inside and out, this home enjoys a slightly elevated north-facing position on a on roomy corner block with views towards surrounding agricultural land.
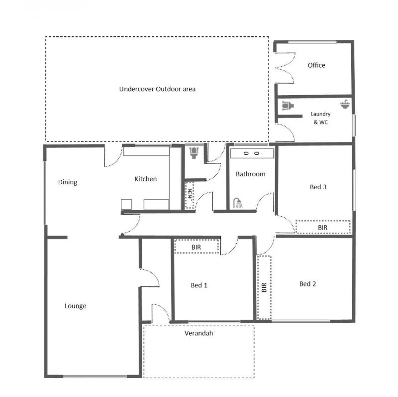
Immediately evident are the beautiful wood floors which feature throughout the main living areas. A large living room naturally progresses from the open-plan kitchen/dining space. The well-designed kitchen has everything you could want, including integrated dishwasher, stainless-steel oven and touch-control hotplate.
Other features
> 3 large bedrooms with built-in robes
> A spacious bathroom with beautiful wood features and double vanities
> Cloakroom with floor-to-ceiling storage
> A separate toilet
> A separate laundry, which also contains a second WC
Located at the end of the patio is another room. Originally built as a home office, this would make a great fourth bedroom, games or hobby room.
The landscaped gardens at the front and rear of the property showcase abundant fruit trees and large veggie patch and are fully reticulated.
Additional features;
> Reverse cycle air-conditioning
> Solar hot water system
> Solar panels
> Secure garage, with plenty of room for additional shed
> Garden shed
> Drive through access
This is in a unique setting in a vibrant local community with easy access to surrounding regional towns. Facilities include health services, school, post office, resource centre & library, general store, rural hardware store, garage, hotel and more. Good sporting facilities including, swimming pool, gym, tennis courts, footy oval, golf course and bowling club.
Disclaimer:
Whilst every care has been taken to verify the accuracy of the details in this advertisement, For Sale By Owner (forsalebyowner.com.au Pty Ltd) cannot guarantee its correctness. Prospective buyers or tenants need to take such action as is necessary, to satisfy themselves of any pertinent matters.
If you're looking for comfortable and affordable living in a friendly country town then this is it. Recently redecorated inside and out, this home enjoys a slightly elevated north-facing position on a on roomy corner block with views towards surrounding agricultural land.
Immediately evident are the beautiful wood floors which feature throughout the main living areas. A large living room naturally progresses from the open-plan kitchen/dining space. The well-designed kitchen has everything you could want, including integrated dishwasher, stainless-steel oven and touch-control hotplate.
Other features
> 3 large bedrooms with built-in robes
> A spacious bathroom with beautiful wood features and double vanities
> Cloakroom with floor-to-ceiling storage
> A separate toilet
> A separate laundry, which also contains a second WC
Located at the end of the patio is another room. Originally built as a home office, this would make a great fourth bedroom, games or hobby room.
The landscaped gardens at the front and rear of the property showcase abundant fruit trees and large veggie patch and are fully reticulated.
Additional features;
> Reverse cycle air-conditioning
> Solar hot water system
> Solar panels
> Secure garage, with plenty of room for additional shed
> Garden shed
> Drive through access
This is in a unique setting in a vibrant local community with easy access to surrounding regional towns. Facilities include health services, school, post office, resource centre & library, general store, rural hardware store, garage, hotel and more. Good sporting facilities including, swimming pool, gym, tennis courts, footy oval, golf course and bowling club.
Disclaimer:
Whilst every care has been taken to verify the accuracy of the details in this advertisement, For Sale By Owner (forsalebyowner.com.au Pty Ltd) cannot guarantee its correctness. Prospective buyers or tenants need to take such action as is necessary, to satisfy themselves of any pertinent matters.
Features
Air Conditioning, Balcony/Patio/Terrace, Dishwasher, Fully Fenced, Polished Timber Floors, Study, Garden, Garden Shed, Solar Hot Water, Solar Panels, Close to Parklands, Close to Schools, Quiet Location
Need a Home Loan?
Get pre-approved for a home loan within 48 hours. Click Here or more information.
- Last 24 Hours0
- Last 7 Days3
- Last 30 Days4
Views
Contact the Owner
Phone or Text: 0488 847 018
Enter Phone Code: 83950
Enter Phone Code: 83950
"*" indicates required fields