12 Popolo Place, Pearsall, WA 6065
Sold Price: 465,000 (31 May 2017)
Quality Home in The Terraces Estate Pearsall
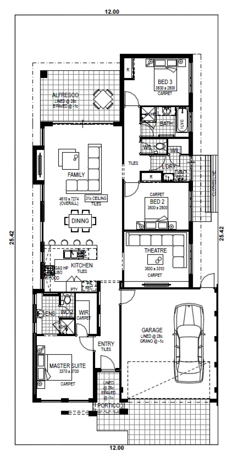
Nestled in a quiet cul-de-sec, this near new 3 bedroom, 2 bathroom home plus theatre/activity room (could be used as a 4th bedroom) is perfect for the young family or downsizer.
Stepping through the entrance you are greeted by the spacious king-sized master suite complete with walk in robe, ensuite and separate WC. The bright and airy open floor plan boasts a kitchen with stainless steel appliances, breakfast bar, built-in pantry and heaps of storage. The large flowing dining and living area is complete with high 31c ceilings.
Featuring 2 generous minor bedrooms, a second bathroom with large bath and separate WC and laundry that opens out to a large clothesline that benefits from ample sunshine.
With ducted reverse-cycle air-conditioning, energy efficient LED lighting throughout, low maintenance gardens with synthetic grass and a generous alfresco, this home is truly a unique find.
Neutral coloured tile flooring with the bedrooms and home theatre featuring hard wearing carpets.
Easy access to the Joondalup CBD, Edgewater train station and the Mitchell Freeway. Local parks, Pearsall IGA and Pearsall Primary School are just minutes up the road.
Features:
- 3 bedrooms, 2 bathrooms
- Ensuite with separate WC
- Separate home theatre / activity room (or 4th bedroom)
- Ducted reverse-cycle air-conditioning, one zone per room
- Gas bayonet in living room
- Stainless steel appliances with gas cooktop
- Open plan living and dining area with alfresco access
- Remote controlled ceiling fans in every bedroom
- Second bathroom with large bath and separate WC
- Laundry with linen press and clothesline access
- LED lighting throughout
- Alarm system
- Security screens to windows & doors
- Foxtel satellite installed
- NBN ready
- Instantaneous gas hot water system
- Reticulated low maintenance gardens with synthetic grass
- Large garage with extra storage, shoppers entrance and side access
LOCATION:
- Quiet cul-de-sac in the sought after Terrraces Estate
- Walking distance to Willespie Park, Pearsall Primary School and Pearsall Shopping Centre and Medical Centres
- Minutes to Edgewater Train Station, Lakeside Joondalup, Mullaloo Beach and Ocean Reef Marina.
Disclaimer:
Whilst every care has been taken to verify the accuracy of the details in this advertisement, For Sale By Owner (forsalebyowner.com.au Pty Ltd) cannot guarantee its correctness. Prospective buyers or tenants need to take such action as is necessary, to satisfy themselves of any pertinent matters.
Stepping through the entrance you are greeted by the spacious king-sized master suite complete with walk in robe, ensuite and separate WC. The bright and airy open floor plan boasts a kitchen with stainless steel appliances, breakfast bar, built-in pantry and heaps of storage. The large flowing dining and living area is complete with high 31c ceilings.
Featuring 2 generous minor bedrooms, a second bathroom with large bath and separate WC and laundry that opens out to a large clothesline that benefits from ample sunshine.
With ducted reverse-cycle air-conditioning, energy efficient LED lighting throughout, low maintenance gardens with synthetic grass and a generous alfresco, this home is truly a unique find.
Neutral coloured tile flooring with the bedrooms and home theatre featuring hard wearing carpets.
Easy access to the Joondalup CBD, Edgewater train station and the Mitchell Freeway. Local parks, Pearsall IGA and Pearsall Primary School are just minutes up the road.
Features:
- 3 bedrooms, 2 bathrooms
- Ensuite with separate WC
- Separate home theatre / activity room (or 4th bedroom)
- Ducted reverse-cycle air-conditioning, one zone per room
- Gas bayonet in living room
- Stainless steel appliances with gas cooktop
- Open plan living and dining area with alfresco access
- Remote controlled ceiling fans in every bedroom
- Second bathroom with large bath and separate WC
- Laundry with linen press and clothesline access
- LED lighting throughout
- Alarm system
- Security screens to windows & doors
- Foxtel satellite installed
- NBN ready
- Instantaneous gas hot water system
- Reticulated low maintenance gardens with synthetic grass
- Large garage with extra storage, shoppers entrance and side access
LOCATION:
- Quiet cul-de-sac in the sought after Terrraces Estate
- Walking distance to Willespie Park, Pearsall Primary School and Pearsall Shopping Centre and Medical Centres
- Minutes to Edgewater Train Station, Lakeside Joondalup, Mullaloo Beach and Ocean Reef Marina.
Disclaimer:
Whilst every care has been taken to verify the accuracy of the details in this advertisement, For Sale By Owner (forsalebyowner.com.au Pty Ltd) cannot guarantee its correctness. Prospective buyers or tenants need to take such action as is necessary, to satisfy themselves of any pertinent matters.
Need a Home Loan?
Get pre-approved for a home loan within 48 hours. Click Here or more information.
- Last 24 Hours0
- Last 7 Days0
- Last 30 Days2
Views
Contact the Owner
Phone or Text: 0488 847 018
Enter Phone Code:
Enter Phone Code:
"*" indicates required fields