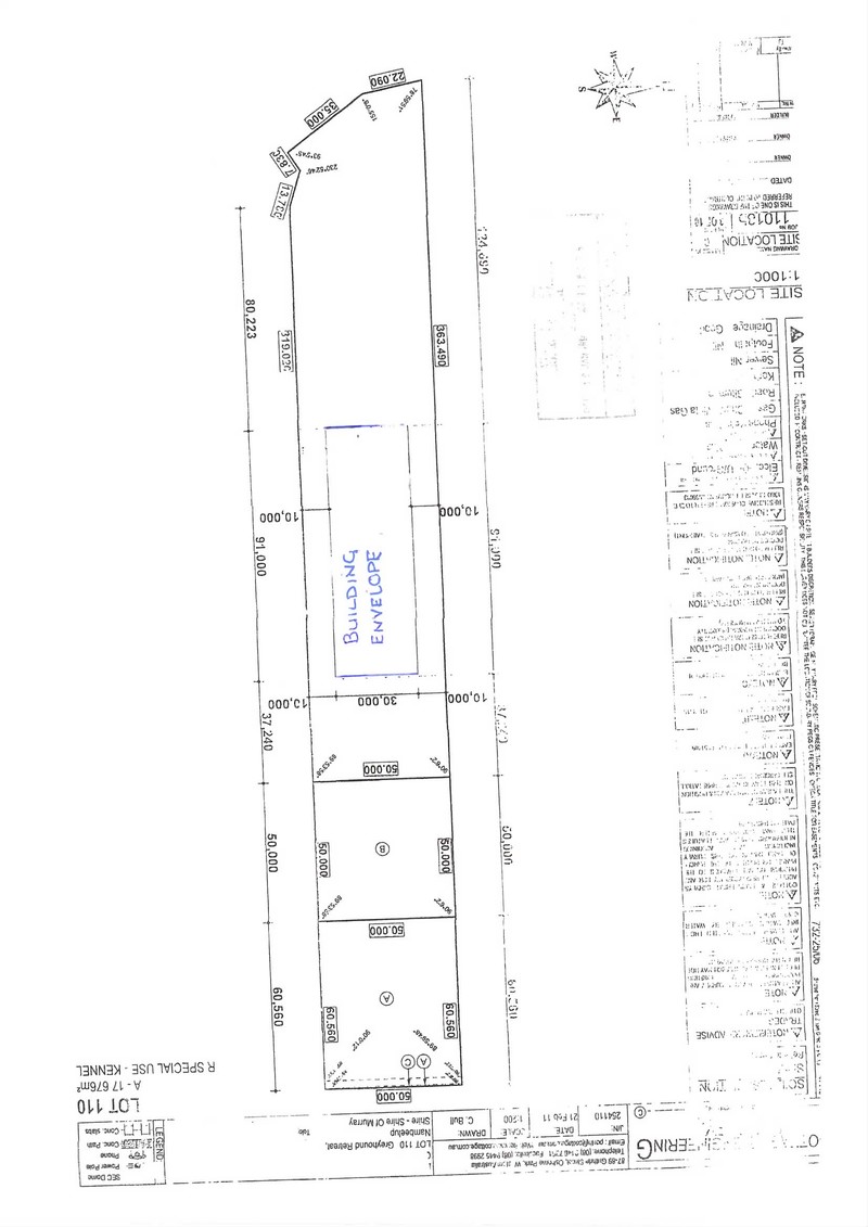
110 Greyhound Retreat, Nambeelup, WA 6207
Sold Price Not Disclosed (03 Jun 2015)
Room To Move For The Whole Family on 4.3 Acres
Want the rural lifestyle without leaving the comforts of suburbia, then this block may be what you are looking for.
This tranquil piece of heaven is located in the locality Nambeelup in the Peel region.
Nambeelup is situated approx. 40kms from Rockingham and only 13kms to Mandurah best of all only minutes from the freeway.
This block is approx. 4.3 Acres with a very generous building envelope of approx. 2730m3 giving plenty of room for a large house for mum, man shed for dad and plenty of room for the kids to play in the outdoors.
This area is zoned for dog kennels so whether you are breeder, trainer or just love to be surrounded by dogs, there is plenty of room for your furry little friends.
This area has fantastic future plans and will be a great future investment in a growing locality.
Please Note: the pictures shown are the pictures taken when the block was cleared for building, the building envelope is in the process of being cleared again for potential buyers. Updated photographs will be posted when available.
Disclaimer:
Whilst every care has been taken to verify the accuracy of the details in this advertisement, For Sale By Owner (forsalebyowner.com.au Pty Ltd) cannot guarantee its correctness. Prospective buyers or tenants need to take such action as is necessary, to satisfy themselves of any pertinent matters.
This tranquil piece of heaven is located in the locality Nambeelup in the Peel region.
Nambeelup is situated approx. 40kms from Rockingham and only 13kms to Mandurah best of all only minutes from the freeway.
This block is approx. 4.3 Acres with a very generous building envelope of approx. 2730m3 giving plenty of room for a large house for mum, man shed for dad and plenty of room for the kids to play in the outdoors.
This area is zoned for dog kennels so whether you are breeder, trainer or just love to be surrounded by dogs, there is plenty of room for your furry little friends.
This area has fantastic future plans and will be a great future investment in a growing locality.
Please Note: the pictures shown are the pictures taken when the block was cleared for building, the building envelope is in the process of being cleared again for potential buyers. Updated photographs will be posted when available.
Disclaimer:
Whilst every care has been taken to verify the accuracy of the details in this advertisement, For Sale By Owner (forsalebyowner.com.au Pty Ltd) cannot guarantee its correctness. Prospective buyers or tenants need to take such action as is necessary, to satisfy themselves of any pertinent matters.
Features
Quiet Location, Nature Property
Need a Home Loan?
Get pre-approved for a home loan within 48 hours. Click Here or more information.
- Last 24 Hours0
- Last 7 Days0
- Last 30 Days1
Views
Contact the Owner
Phone or Text: 0488 847 018
Enter Phone Code:
Enter Phone Code:
"*" indicates required fields