57 Warden Road, Chadwick, WA 6450
Price: $860,000
- There are no current opens scheduled.
Open Times
Haven - A Unique Bush Block & Lifestyle in Esperance, WA
~ offers from $860,000 ~
Welcome to Haven, an exceptional 11-acre lakeside sanctuary nestled in the Shire of Esperance, just 5km from the town centre and world class beaches. The property features a charming single-level cottage, nestled in the natural landscape, crafted with reclaimed jarrah timbers, limestone render, and exposed brick, offers a serene escape with stunning panoramic views of the Ramsar-listed Lake Warden.
Key Features:
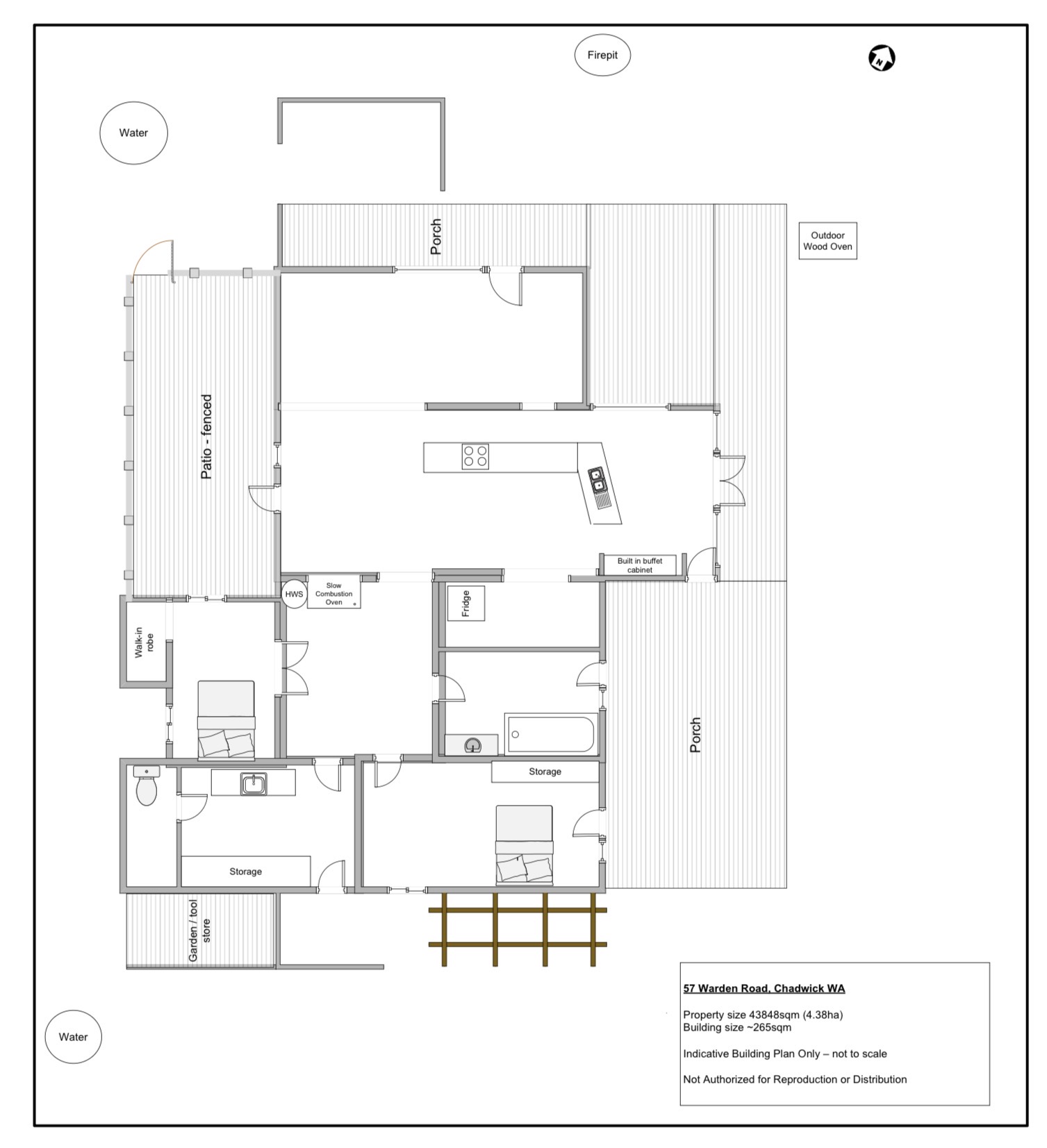
- Hand-Crafted Kitchen: A large, light-filled kitchen features reclaimed jetty timber benches, wine racks, a skylight, gas cooktop, electric oven, slow combustion wood oven, and an expansive walk-in pantry, perfect for culinary enthusiasts, entertainers or homesteaders.
-Open-Plan Living: Enjoy open-plan living and dining areas with panoramic lake views, complemented by a wood fire and reverse-cycle A/C for year-round comfort.
-Spacious Bedrooms: Two generously sized bedrooms, each with built-in or walk-in robes. Bedroom 2 is larger and versatile with outdoor access, suitable for a home office, study, or private retreat.
- Peaceful Bathroom: features an oversized bath, timber benches, shelving and doors connecting the garden as well as interior of cottage.
-Indoor-Outdoor Bliss: The property boasts a seamless indoor-outdoor connection with a wraparound limestone-paved porch, fire pit, outdoor wood oven, and sunset lake views, ideal for gatherings and relaxation.
-Sustainable Living: Equipped with a 4.5kW rooftop solar system, mains power, rainwater tanks, and ample ground water via pump/bore, Haven ensures no water bills and minimal environmental impact.
-Natural Beauty: Established native gardens, citrus and olive trees, and abundant birdlife enhance the property's natural beauty. The surrounding bushland provides a tranquil backdrop, ensuring privacy and harmony with nature.
-Lake Frontage: Enjoy direct connection to Lake Warden Reserve, offering opportunities for outdoor activities like bush-walking, kayaking, and bird watching.
Haven presents a rare opportunity to secure a peaceful lifestyle property with potential for expansion or additional dwellings, making it perfect for those seeking privacy, environmental harmony, and a relaxed lakeside lifestyle.
TO REGISTER FOR INSPECTION: hit 'Enquire' and let the sellers know which inspection you plan to attend.
VIRTURAL TOUR: a virtual tour and property video is in production. Please contact the seller via 'Enquire' if you wish to be notified when video is available. No online inspections are offered at this time.
Land size: 4.3848ha / 43,848 sqm
Building size: 265sqm approx.
Council Rates: $2107 approx. per annum
Shire: Shire of Esperance
Zone: Rural-Residential
Photos by Rosie Henderson.
The Phone Code for this property is: 20459. Please quote this number when phoning or texting.
Disclaimer:
Whilst every care has been taken to verify the accuracy of the details in this advertisement, For Sale By Owner Pty Ltd (forsalebyowner.com.au) cannot guarantee its correctness. Prospective buyers or tenants need to take such action as is necessary, to satisfy themselves of any pertinent matters.
Welcome to Haven, an exceptional 11-acre lakeside sanctuary nestled in the Shire of Esperance, just 5km from the town centre and world class beaches. The property features a charming single-level cottage, nestled in the natural landscape, crafted with reclaimed jarrah timbers, limestone render, and exposed brick, offers a serene escape with stunning panoramic views of the Ramsar-listed Lake Warden.
Key Features:
- Hand-Crafted Kitchen: A large, light-filled kitchen features reclaimed jetty timber benches, wine racks, a skylight, gas cooktop, electric oven, slow combustion wood oven, and an expansive walk-in pantry, perfect for culinary enthusiasts, entertainers or homesteaders.
-Open-Plan Living: Enjoy open-plan living and dining areas with panoramic lake views, complemented by a wood fire and reverse-cycle A/C for year-round comfort.
-Spacious Bedrooms: Two generously sized bedrooms, each with built-in or walk-in robes. Bedroom 2 is larger and versatile with outdoor access, suitable for a home office, study, or private retreat.
- Peaceful Bathroom: features an oversized bath, timber benches, shelving and doors connecting the garden as well as interior of cottage.
-Indoor-Outdoor Bliss: The property boasts a seamless indoor-outdoor connection with a wraparound limestone-paved porch, fire pit, outdoor wood oven, and sunset lake views, ideal for gatherings and relaxation.
-Sustainable Living: Equipped with a 4.5kW rooftop solar system, mains power, rainwater tanks, and ample ground water via pump/bore, Haven ensures no water bills and minimal environmental impact.
-Natural Beauty: Established native gardens, citrus and olive trees, and abundant birdlife enhance the property's natural beauty. The surrounding bushland provides a tranquil backdrop, ensuring privacy and harmony with nature.
-Lake Frontage: Enjoy direct connection to Lake Warden Reserve, offering opportunities for outdoor activities like bush-walking, kayaking, and bird watching.
Haven presents a rare opportunity to secure a peaceful lifestyle property with potential for expansion or additional dwellings, making it perfect for those seeking privacy, environmental harmony, and a relaxed lakeside lifestyle.
TO REGISTER FOR INSPECTION: hit 'Enquire' and let the sellers know which inspection you plan to attend.
VIRTURAL TOUR: a virtual tour and property video is in production. Please contact the seller via 'Enquire' if you wish to be notified when video is available. No online inspections are offered at this time.
Land size: 4.3848ha / 43,848 sqm
Building size: 265sqm approx.
Council Rates: $2107 approx. per annum
Shire: Shire of Esperance
Zone: Rural-Residential
Photos by Rosie Henderson.
The Phone Code for this property is: 20459. Please quote this number when phoning or texting.
Disclaimer:
Whilst every care has been taken to verify the accuracy of the details in this advertisement, For Sale By Owner Pty Ltd (forsalebyowner.com.au) cannot guarantee its correctness. Prospective buyers or tenants need to take such action as is necessary, to satisfy themselves of any pertinent matters.
Features
Balcony/Patio/Terrace, Bath, Fireplace(s), Modern Bathroom, Modern Kitchen, Renovated Bathroom, Renovated Kitchen, BBQ, Entertainment Area, Garden, Pet Friendly, Rainwater Tank, Shower Facilities, Air Conditioning, Internal Laundry, Courtyard, Solar Panels, Living Area, Fully Fenced
Need a Home Loan?
Get pre-approved for a home loan within 48 hours. Click Here or more information.
- Last 24 Hours5
- Last 7 Days24
- Last 30 Days88
Views
Contact the Owner
Phone or Text: 0488 847 018
Enter Phone Code: 20459
Enter Phone Code: 20459
"*" indicates required fields