37 McNamara Road, Wundowie, WA 6560
Price: Offers Over $1,300,000
- There are no current opens scheduled.
Open Times
37 McNamara Road, Wundowie WA 6560
This 25-acre rural property is situated halfway between the Wundowie and Wooraloo townsites, 25 minutes drive from Northam and only an hour from Perth CBD.
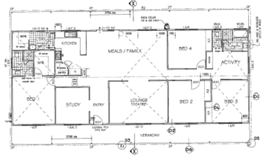
The well positioned Ross Squire 4X2 home offers spectacular views over surrounding country. Built in 2016, the house is Hardie Plank cladded, with a corrugated iron roof and is well insulated. The house features an instant gas hot water system (recently installed), gas hobs and an electric oven. The occupier can choose between scheme water and rainwater supplied by a 129,000-litre tank. The home entrance leads onto a large open plan kitchen and living area with tiled floor and a wood burning stove. There are 4 bedrooms, an office and a theatre room.
The gated entrance leads onto gravel driveways to the house and general-purpose shed. The property is fenced with ring lock, with 4 fenced paddocks, all with scheme water troughs. 3 of the 4 paddocks benefit from shade cover from mature and recently established trees.
The 9x16m general purpose shed features a galvanised steel construction, concrete floor, lighting, single-phase mains power, a personnel door and 3 roller shutter doors.
A smaller feed shed, located near to the rainwater tank, has a concrete floor. On the back of this shed is a cupboard for separate storage.
Behind the house is a secure livestock shed, with internal partition door, and 2 outdoor pens with 6ft-high mesh fencing. Both are equipped with water troughs.
Call using the code and book a viewing today!
The Phone Code for this property is: 76427. Please quote this number when phoning or texting.
Disclaimer:
Whilst every care has been taken to verify the accuracy of the details in this advertisement, For Sale By Owner (forsalebyowner.com.au Pty Ltd) cannot guarantee its correctness. Prospective buyers or tenants need to take such action as is necessary, to satisfy themselves of any pertinent matters.
The well positioned Ross Squire 4X2 home offers spectacular views over surrounding country. Built in 2016, the house is Hardie Plank cladded, with a corrugated iron roof and is well insulated. The house features an instant gas hot water system (recently installed), gas hobs and an electric oven. The occupier can choose between scheme water and rainwater supplied by a 129,000-litre tank. The home entrance leads onto a large open plan kitchen and living area with tiled floor and a wood burning stove. There are 4 bedrooms, an office and a theatre room.
The gated entrance leads onto gravel driveways to the house and general-purpose shed. The property is fenced with ring lock, with 4 fenced paddocks, all with scheme water troughs. 3 of the 4 paddocks benefit from shade cover from mature and recently established trees.
The 9x16m general purpose shed features a galvanised steel construction, concrete floor, lighting, single-phase mains power, a personnel door and 3 roller shutter doors.
A smaller feed shed, located near to the rainwater tank, has a concrete floor. On the back of this shed is a cupboard for separate storage.
Behind the house is a secure livestock shed, with internal partition door, and 2 outdoor pens with 6ft-high mesh fencing. Both are equipped with water troughs.
Call using the code and book a viewing today!
The Phone Code for this property is: 76427. Please quote this number when phoning or texting.
Disclaimer:
Whilst every care has been taken to verify the accuracy of the details in this advertisement, For Sale By Owner (forsalebyowner.com.au Pty Ltd) cannot guarantee its correctness. Prospective buyers or tenants need to take such action as is necessary, to satisfy themselves of any pertinent matters.
From your first property enquiry to final sale, your BAFC settlement agent is there to guide you through the exciting process of selling and purchasing real estate. Call (08) 9335 9133 or email anne@bafc.com.au.
Visit Website- Last 24 Hours0
- Last 7 Days2
- Last 30 Days27
Views
Contact the Owner
Phone or Text: 0488 847 018
Enter Phone Code 76427 when prompted.
Enter Phone Code 76427 when prompted.
"*" indicates required fields
