20 Lockhart Street, Como, WA 6152
Sold Price Not Disclosed (01 Aug 2025)
An Exciting Opportunity - Lifestyle Today and Potential Tomorrow
The Phone Code for this property is: 78601. Please quote this number when phoning or texting.
Welcome to 20 Lockhart Street, Como.
A superb family home in a quiet riverside Como street, offering lifestyle now and outstanding long-term upside.
This is a well cared for, very comfortable, and functional family home. You can enjoy quality time with your family here, whilst you land bank the investment opportunity, with multiple future development possibilities. A beautiful home combined with the development potential is a unique chance in this progressively developing inner-city suburb.
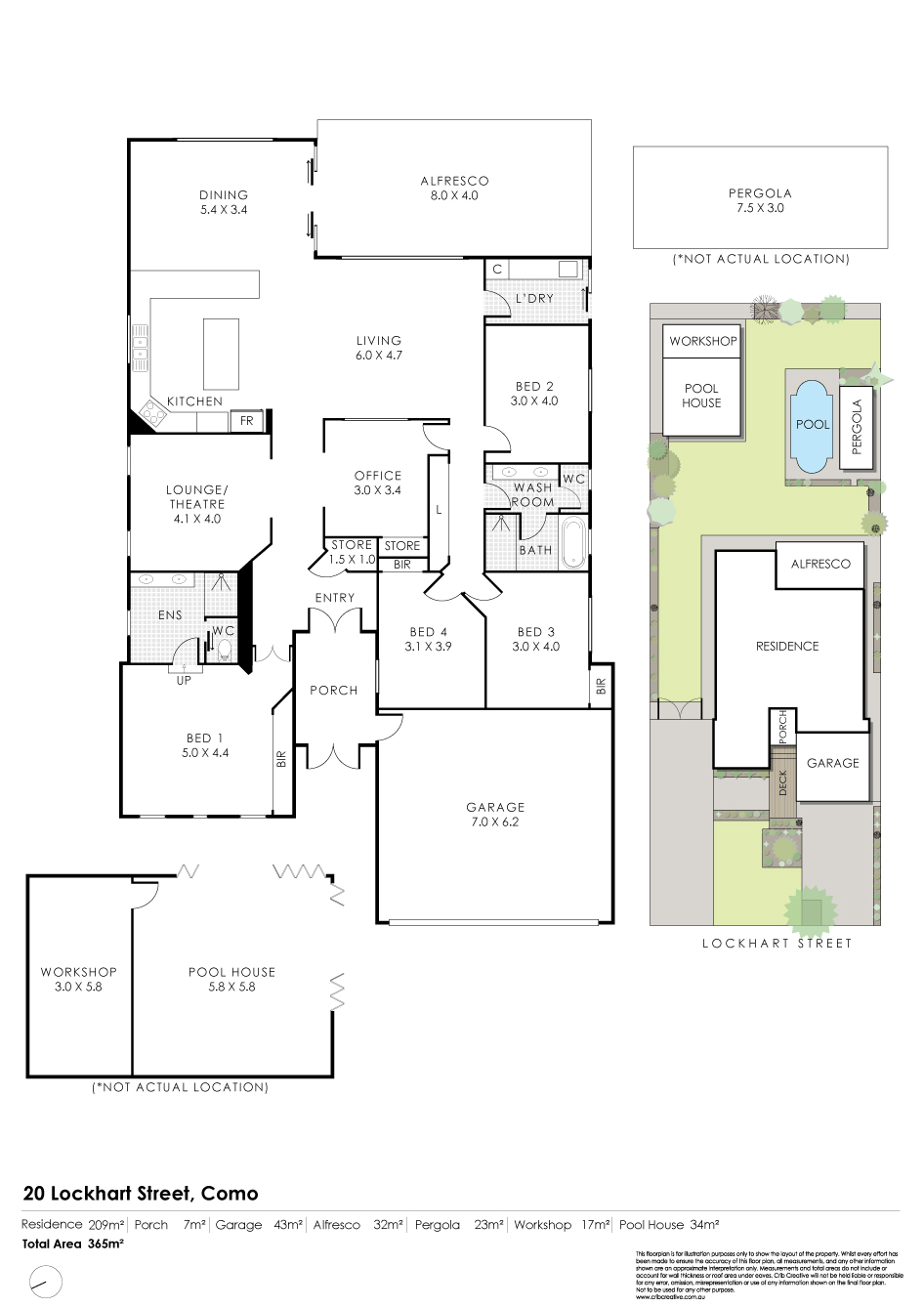
With 4 bedrooms plus study, or 5th bedroom, two bathrooms, open plan living plus lounge, on a substantial 1,061sqm block, zoned R30, this modern home features a sunlit backyard, huge pool, an air-conditioned activity/TV/hobby room, and well-established gardens.
Bonus features include:
Double oversized garage to suit 4WD
Side-of-house vehicle access
Ample parking spaces
Stone aggregate driveways
Workshop shed with 3-phase power
Bore with clean water supply
Reticulated lawn and gardens
Solar panels
Gas storage hot water
Reverse-cycle ducted air conditioning
Blackbutt timber floors
Miele dishwasher
Gas cooking
S/S fridge and microwave included
Floor to ceiling bathroom tiles
Window shutters
Fresh paint and carpets
Robot pool vacuum cleaner included
Poolside deck and patio
Below-ground pool blanket box
This property can work brilliantly for today and tomorrow. The options include (subject to relevant approvals):
- Live in today and enjoy the backyard spaces - the children will love it.
- Use the backyard and studio to set up a small business, storage, and/or granny flat.
- Retain and build: keep the existing home and develop a rear lot to rent or sell.
- Side-by-side development: with a 20m frontage, you could create two street-front lots.
- Create a triplex site.
Close to Canning Bridge train station, a short walk to the bus, 200m to Como Primary and a daycare centre, Como Secondary, Wesley College, Penrhos College, Aquinas College, Preston Street shops, cafes, and a 24hr IGA supermarket.
Viewings are by appointment.
Due to popular demand, viewings will be available:
Thursday 12th
Friday 13th
Saturday 14th
Please enquire through the ForSaleByOwner contacts to receive a call back from the owner. Additional photos and information about the property can be made available directly to you.
You will need to provide the property ID number, your full name, email and phone contact details so the owner can respond with viewing appointment availability.
Disclaimer:
Whilst every care has been taken to verify the accuracy of the details in this advertisement, For Sale By Owner (forsalebyowner.com.au Pty Ltd) cannot guarantee its correctness. Prospective buyers or tenants need to take such action as is necessary, to satisfy themselves of any pertinent matters.
Welcome to 20 Lockhart Street, Como.
A superb family home in a quiet riverside Como street, offering lifestyle now and outstanding long-term upside.
This is a well cared for, very comfortable, and functional family home. You can enjoy quality time with your family here, whilst you land bank the investment opportunity, with multiple future development possibilities. A beautiful home combined with the development potential is a unique chance in this progressively developing inner-city suburb.
With 4 bedrooms plus study, or 5th bedroom, two bathrooms, open plan living plus lounge, on a substantial 1,061sqm block, zoned R30, this modern home features a sunlit backyard, huge pool, an air-conditioned activity/TV/hobby room, and well-established gardens.
Bonus features include:
Double oversized garage to suit 4WD
Side-of-house vehicle access
Ample parking spaces
Stone aggregate driveways
Workshop shed with 3-phase power
Bore with clean water supply
Reticulated lawn and gardens
Solar panels
Gas storage hot water
Reverse-cycle ducted air conditioning
Blackbutt timber floors
Miele dishwasher
Gas cooking
S/S fridge and microwave included
Floor to ceiling bathroom tiles
Window shutters
Fresh paint and carpets
Robot pool vacuum cleaner included
Poolside deck and patio
Below-ground pool blanket box
This property can work brilliantly for today and tomorrow. The options include (subject to relevant approvals):
- Live in today and enjoy the backyard spaces - the children will love it.
- Use the backyard and studio to set up a small business, storage, and/or granny flat.
- Retain and build: keep the existing home and develop a rear lot to rent or sell.
- Side-by-side development: with a 20m frontage, you could create two street-front lots.
- Create a triplex site.
Close to Canning Bridge train station, a short walk to the bus, 200m to Como Primary and a daycare centre, Como Secondary, Wesley College, Penrhos College, Aquinas College, Preston Street shops, cafes, and a 24hr IGA supermarket.
Viewings are by appointment.
Due to popular demand, viewings will be available:
Thursday 12th
Friday 13th
Saturday 14th
Please enquire through the ForSaleByOwner contacts to receive a call back from the owner. Additional photos and information about the property can be made available directly to you.
You will need to provide the property ID number, your full name, email and phone contact details so the owner can respond with viewing appointment availability.
Disclaimer:
Whilst every care has been taken to verify the accuracy of the details in this advertisement, For Sale By Owner (forsalebyowner.com.au Pty Ltd) cannot guarantee its correctness. Prospective buyers or tenants need to take such action as is necessary, to satisfy themselves of any pertinent matters.
Need a Home Loan?
Get pre-approved for a home loan within 48 hours. Click Here or more information.
- Last 24 Hours0
- Last 7 Days1
- Last 30 Days4
Views
Contact the Owner
Phone or Text: 0488 847 018
Enter Phone Code: 78601
Enter Phone Code: 78601
"*" indicates required fields