8/250 Hampton Road, Beaconsfield, WA 6162
Sold Price Not Disclosed (05 May 2024)
Turn-key, All-inclusive, Ready to Go!
The Phone Code for this property is: 69967. Please quote this number when phoning or texting.
Turn-key, All-inclusive, Ready to Go!
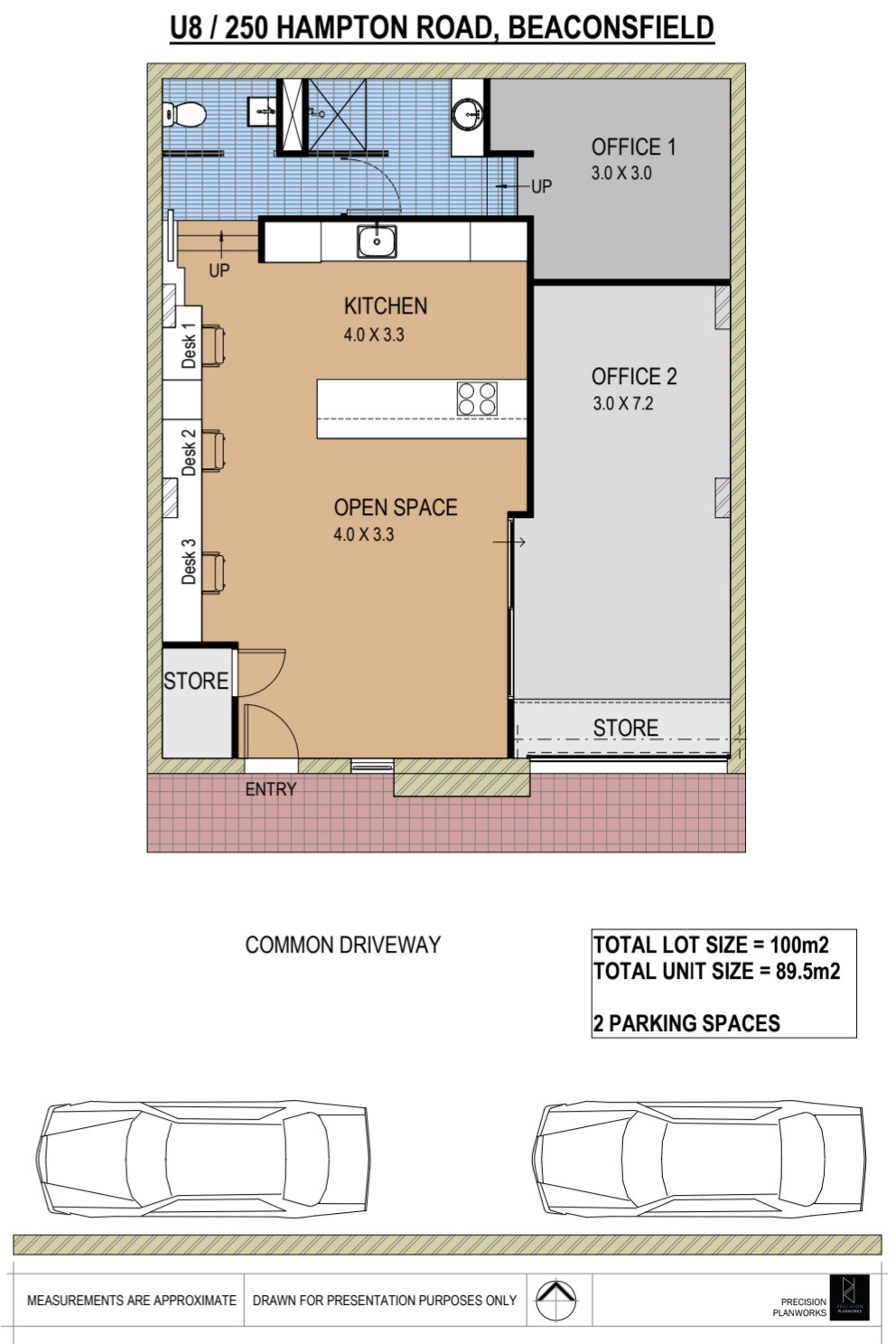
Everyone who enters this office says the same thing, WOW! Located on South Fremantle's doorstep, this once empty shell was fully renovated in 2021 creating a beautifully designed office space that's comparable to none. Its clean lines, modern palate and sophisticated finishes are equal parts eye-catching as they are practical.
Selling as all-inclusive this office is truly a turnkey purchase offering generous office space, high-end amenities and parking bays. Not to mention just a short walk to South Fremantle and all it has to offer. Access to beaches, train and bus transport, South Fremantle café strip featuring some of the best cafés, restaurants, bars and breweries in WA.
Zoned mixed use, this office space is currently operating as a finance broker firm. However, the opportunities are endless with its diverse design and location. The complex Hampton Plaza has security gate access outside business hours, ample on site parking, friendly neighboring business and shopping complex just across the road.
This all-inclusive property features;
• Stylish office space featuring Ergo tune computer chairs, desk lamps, conference table and stools, office sofa, ample storage and desk space
• Kitchen featuring 65" Samsung 'The Frame' TV, Sonos Arc soundbar, premium Swiss VZUG Oven, Induction cooktop, Dishwasher and Rangehood. VZUG was featured brand on The Block 2022, Zip Hydro tap supplying instant cold filtered water. Fisher & Paykel Fridge and all small appliances and kitchenware
• Fisher & Paykel washing machine and dryer
• Bathroom and toilet feature Nood Co concrete basins, custom white tapware and imported European wall and floor tiles.
• Ceiling fans, three air conditioning units, queen bed and all furniture.
Leaving no stone unturned, this office would be fantastic to run your business or as an investment.
Disclaimer:
Whilst every care has been taken to verify the accuracy of the details in this advertisement, For Sale By Owner (forsalebyowner.com.au Pty Ltd) cannot guarantee its correctness. Prospective buyers or tenants need to take such action as is necessary, to satisfy themselves of any pertinent matters.
Turn-key, All-inclusive, Ready to Go!
Everyone who enters this office says the same thing, WOW! Located on South Fremantle's doorstep, this once empty shell was fully renovated in 2021 creating a beautifully designed office space that's comparable to none. Its clean lines, modern palate and sophisticated finishes are equal parts eye-catching as they are practical.
Selling as all-inclusive this office is truly a turnkey purchase offering generous office space, high-end amenities and parking bays. Not to mention just a short walk to South Fremantle and all it has to offer. Access to beaches, train and bus transport, South Fremantle café strip featuring some of the best cafés, restaurants, bars and breweries in WA.
Zoned mixed use, this office space is currently operating as a finance broker firm. However, the opportunities are endless with its diverse design and location. The complex Hampton Plaza has security gate access outside business hours, ample on site parking, friendly neighboring business and shopping complex just across the road.
This all-inclusive property features;
• Stylish office space featuring Ergo tune computer chairs, desk lamps, conference table and stools, office sofa, ample storage and desk space
• Kitchen featuring 65" Samsung 'The Frame' TV, Sonos Arc soundbar, premium Swiss VZUG Oven, Induction cooktop, Dishwasher and Rangehood. VZUG was featured brand on The Block 2022, Zip Hydro tap supplying instant cold filtered water. Fisher & Paykel Fridge and all small appliances and kitchenware
• Fisher & Paykel washing machine and dryer
• Bathroom and toilet feature Nood Co concrete basins, custom white tapware and imported European wall and floor tiles.
• Ceiling fans, three air conditioning units, queen bed and all furniture.
Leaving no stone unturned, this office would be fantastic to run your business or as an investment.
Disclaimer:
Whilst every care has been taken to verify the accuracy of the details in this advertisement, For Sale By Owner (forsalebyowner.com.au Pty Ltd) cannot guarantee its correctness. Prospective buyers or tenants need to take such action as is necessary, to satisfy themselves of any pertinent matters.
- Last 24 Hours2
- Last 7 Days3
- Last 30 Days5
Views
Contact the Owner
Phone or Text: 0488 847 018
Enter Phone Code 69967 when prompted.
Enter Phone Code 69967 when prompted.
"*" indicates required fields