1 Cornish Court, Lynton, SA 5062
Luxury Duplex Adjacent Torrens Park With Sea Views
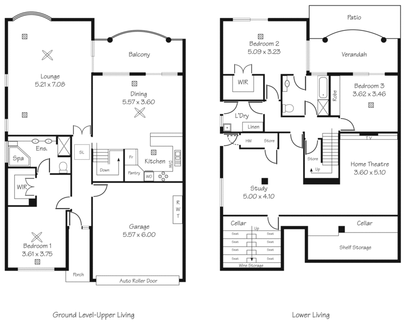
Top level: Double garage with internal access; huge entertaining lounge with sea views; covered balcony with access to dining and lounge rooms; kitchen – Smeg and Miele appliances; dining room with sunset views; main bedroom with walk in robe and large en-suite.
Bottom level: two large bedrooms with access to courtyards, large bedroom 2/guest suite with en-suite bathroom and walk in robe, bedroom 3 with built-ins; laundry with access to service/entertaining courtyard; huge study (could be bedroom); TV room wired for surround sound; fitted wine cellar (Bordex); extensive store-room.
High quality construction home on 402 square metres land.
General Features
Bedrooms: 3 or 4
En-suites; 2
Formal Living
Dining
Study
TV Room
Double garage – auto doors, internal access
Wine cellar
Ducted air conditioning
Monitored security
Fully automatic garden watering system
Solar panels
Easy drive to Mitcham/Adelaide CBD
Disclaimer:
Whilst every care has been taken to verify the accuracy of the details in this advertisement, For Sale By Owner (forsalebyowner.com.au Pty Ltd) cannot guarantee its correctness. Prospective buyers or tenants need to take such action as is necessary, to satisfy themselves of any pertinent matters.
Features
Balcony/Patio/Terrace, Basement, Bath, Formal Lounge, Heating, Modern Bathroom, Modern Kitchen, Separate Dining Room, BBQ, Entertainment Area, Garden, Rainwater Tank, Alarm System, Security Lights, Close to Schools, Close to Shops, Close to Transport, Views, Prestige Property, Air Conditioning, Built-ins, Ensuite, Gas Enabled, Internal Laundry, Pay TV Enabled, Polished Timber Floors, Remote Garage, Study, Broadband, Dishwasher, Balcony, Courtyard, Solar Panels, Inside Spa
Contact Karen on 0438 838 018 at First Paige Property Settlement Services for help with your Real Estate paperwork (Form 1 & Contracts) or email if you have questions. admin@firstpaigeform1.com
Visit WebsiteNeed a Home Loan?
Get pre-approved for a home loan within 48 hours. Click Here or more information.
- Last 24 Hours0
- Last 7 Days1
- Last 30 Days3
Views
Contact the Owner
Enter Phone Code:
"*" indicates required fields
