8 Raphis Close, Kamerunga, QLD 4870
Sold Price Not Disclosed (30 Mar 2018)
SPACIOUS FAMILY HOME IN QUIET CUL-DE-SAC
Comfortable tropical living in a quiet, family friendly suburb just minutes from beaches, the city and good schools.
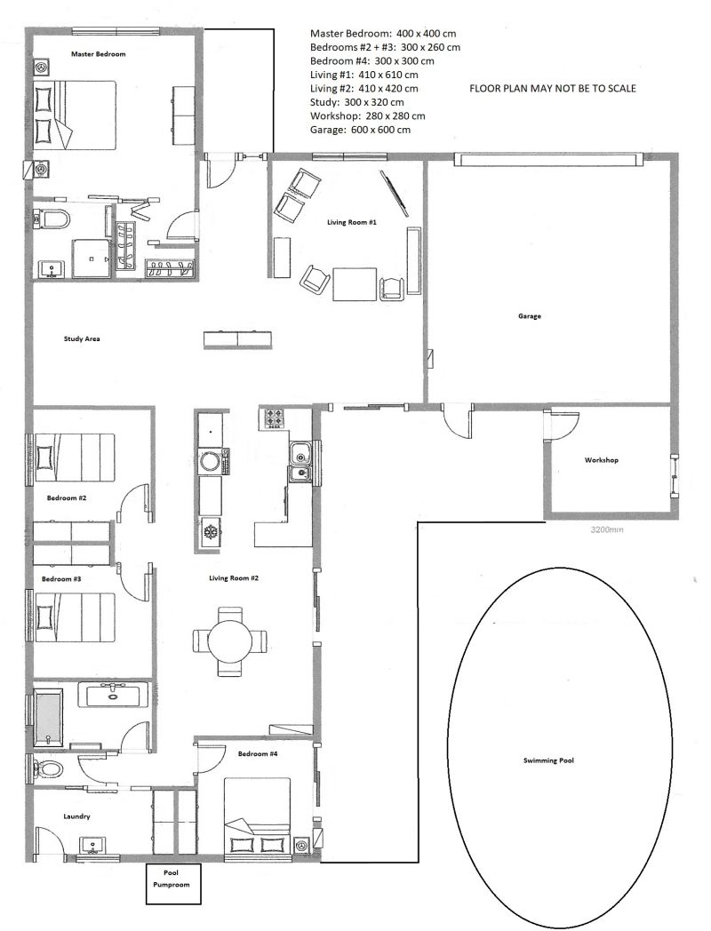
Features include:
* Fully tiled open plan living & dining areas plus study
*Country style kitchen with breakfast bar & servery to outdoor entertainment area
* Kitchen features dishwasher, gas cooktop & electric oven
* 3 bedrooms with built in robes
* Ensuite and walk in robe to main bedroom
* Generous family bathroom & separate toilet
* Inground saltwater pool under shade sail
* Large tiled undercover entertainment area overlooks the pool
* Established easy care gardens
* Securely fenced back garden includes rear pedestrian access
* Double garage and small workshop under main roof
* 16 solar panel array with 3.5Kw inverter - Tesla ready
* 3 solar roof vents
* Walking distance to Peace Lutheran College & in Freshwater State School catchment area
This well maintained 4 bedroom home has a great deal of appeal that is sure to sell quickly.
Disclaimer:
Whilst every care has been taken to verify the accuracy of the details in this advertisement, For Sale By Owner (forsalebyowner.com.au Pty Ltd) cannot guarantee its correctness. Prospective buyers or tenants need to take such action as is necessary, to satisfy themselves of any pertinent matters.
Features include:
* Fully tiled open plan living & dining areas plus study
*Country style kitchen with breakfast bar & servery to outdoor entertainment area
* Kitchen features dishwasher, gas cooktop & electric oven
* 3 bedrooms with built in robes
* Ensuite and walk in robe to main bedroom
* Generous family bathroom & separate toilet
* Inground saltwater pool under shade sail
* Large tiled undercover entertainment area overlooks the pool
* Established easy care gardens
* Securely fenced back garden includes rear pedestrian access
* Double garage and small workshop under main roof
* 16 solar panel array with 3.5Kw inverter - Tesla ready
* 3 solar roof vents
* Walking distance to Peace Lutheran College & in Freshwater State School catchment area
This well maintained 4 bedroom home has a great deal of appeal that is sure to sell quickly.
Disclaimer:
Whilst every care has been taken to verify the accuracy of the details in this advertisement, For Sale By Owner (forsalebyowner.com.au Pty Ltd) cannot guarantee its correctness. Prospective buyers or tenants need to take such action as is necessary, to satisfy themselves of any pertinent matters.
Need a Home Loan?
Get pre-approved for a home loan within 48 hours. Click Here or more information.
- Last 24 Hours0
- Last 7 Days1
- Last 30 Days2
Views
Contact the Owner
Phone or Text: 0488 847 018
Enter Phone Code:
Enter Phone Code:
"*" indicates required fields