51 Perserverance Street, Redlynch, QLD 4870
Sold Price Not Disclosed (19 May 2017)
Must See Newly Built House in Redlynch Central
The quality of this home and its position in the very sought after Redlynch Central area, with all amenities just moments away, assures the new owner a very wise investment for the future.
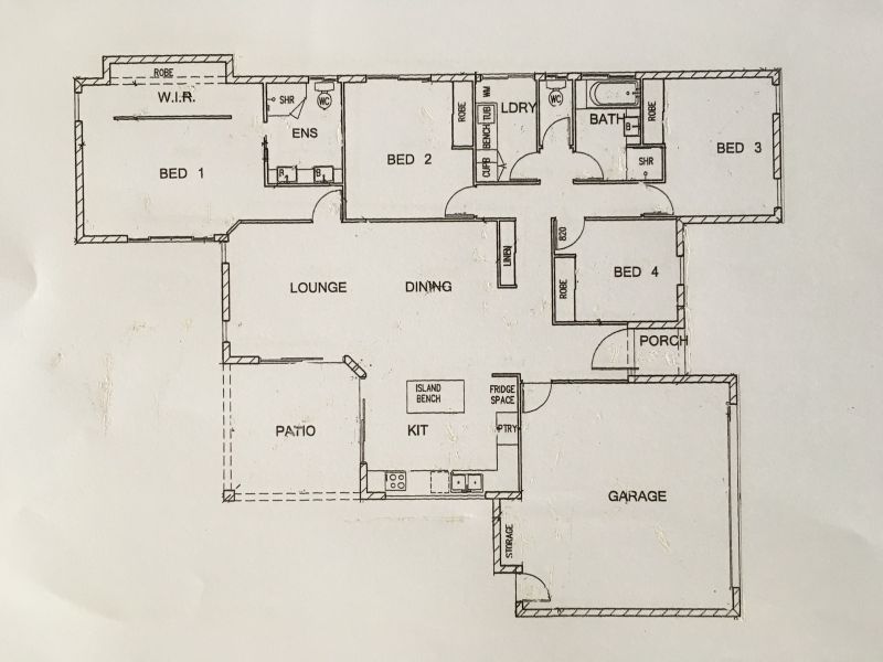
This modern layout includes:
- Open plan living/ dining/ kitchen area
- Exquisite stylish kitchen with stone bench tops and an island
bench with a breakfast bar
- Smeg appliances including Induction cooktop
- 4 bedrooms all with built-in robes and split air-conditioning
- Impressive master bedroom with a walk through walk-in robe,
positioned behind the bed which boasts lots of
hanging/storage space
- Ensuite with his and hers vanities
- Good size backyard, fully fenced
- Plenty of room for a pool
- Security screens
- Outdoor patio which catches the prevailing breezes from the
valley
Only 15 mins from the Cairns CBD, this quality home is everything you need.
Call for your inspection today.
Disclaimer:
Whilst every care has been taken to verify the accuracy of the details in this advertisement, For Sale By Owner (forsalebyowner.com.au Pty Ltd) cannot guarantee its correctness. Prospective buyers or tenants need to take such action as is necessary, to satisfy themselves of any pertinent matters.
This modern layout includes:
- Open plan living/ dining/ kitchen area
- Exquisite stylish kitchen with stone bench tops and an island
bench with a breakfast bar
- Smeg appliances including Induction cooktop
- 4 bedrooms all with built-in robes and split air-conditioning
- Impressive master bedroom with a walk through walk-in robe,
positioned behind the bed which boasts lots of
hanging/storage space
- Ensuite with his and hers vanities
- Good size backyard, fully fenced
- Plenty of room for a pool
- Security screens
- Outdoor patio which catches the prevailing breezes from the
valley
Only 15 mins from the Cairns CBD, this quality home is everything you need.
Call for your inspection today.
Disclaimer:
Whilst every care has been taken to verify the accuracy of the details in this advertisement, For Sale By Owner (forsalebyowner.com.au Pty Ltd) cannot guarantee its correctness. Prospective buyers or tenants need to take such action as is necessary, to satisfy themselves of any pertinent matters.
Features
Air Conditioning, Balcony/Patio/Terrace, Bath, Broadband, Built-ins, Dishwasher, Fully Fenced, Internal Laundry, Living Area, Modern Bathroom, Modern Kitchen, Remote Garage, Garden, Security Windows, Close to Schools, Close to Shops, Close to Transport, Quiet Location, Newly Built Property
Need a Home Loan?
Get pre-approved for a home loan within 48 hours. Click Here or more information.
- Last 24 Hours0
- Last 7 Days0
- Last 30 Days2
Views
Contact the Owner
Phone or Text: 0488 847 018
Enter Phone Code:
Enter Phone Code:
"*" indicates required fields