81 Elizabeth Road, Christie Downs, SA 5164
Fully Renovated 3 Bedroom Home 4 Sale With Potential To Subdivide
This stylish low maintenance home has everything for the astute buyer. Located in a convenient and affordable suburb, there are 3 bedrooms, the master and second bedroom with new built in robes. The bathroom, separate toilet and laundry have been recently renovated.
The modern kitchen has plenty of bench and storage space and pantry with stainless steel appliances including dishwasher. This beautifully functional area opens out to the living and dining area with light filled window views of the private front garden. The rear paved entertaining area with pergola gives views of the large low maintenance rear garden and is perfect for entertaining family and friends. The garden includes both dwarf citrus and apple trees and beautiful flowering roses that scramble against the extensive shedding and fencing making spring a season to enjoy.
To finish off this stylish home there are polished floorboards throughout, gas hot water system, reverse cycle split system air conditioning, security system and secure under cover parking. This property is in a great location, with buses, trains, expressway, hospital, schools and major shopping within walking distance.
This property is currently tenanted at $295.00 per week until mid-January, 2014 – rent due to rise to $300 per week if you wish to keep this property as a rental. The tenant has treated it as her home and has kept it in perfect condition. This tenancy agreement can be ended by giving the tenant 60 days notice in writing if you want to move in yourself !
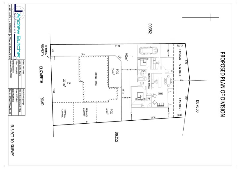
This property also has potential to subdivide. Plans have already been drawn by a surveyor ready to send to council for approval, making this property a good investment for someone eager to enter the property development field !
Photos limited due to tenancy.
Disclaimer:
Whilst every care has been taken to verify the accuracy of the details in this advertisement, For Sale By Owner (forsalebyowner.com.au Pty Ltd) cannot guarantee its correctness. Prospective buyers or tenants need to take such action as is necessary, to satisfy themselves of any pertinent matters.
Features
Bath, Heating, Modern Bathroom, Modern Kitchen, Renovated, Renovated Bathroom, Renovated Kitchen, Entertainment Area, Garden, Garden Shed, Level Lawn, Pet Friendly, Shower Facilities, Alarm System, Close to Schools, Close to Shops, Close to Transport, Air Conditioning, Built-ins, Gas Enabled, Internal Laundry, Polished Timber Floors, Dishwasher, Secure Parking
Contact Karen on 0438 838 018 at First Paige Property Settlement Services for help with your Real Estate paperwork (Form 1 & Contracts) or email if you have questions. admin@firstpaigeform1.com
Visit WebsiteNeed a Home Loan?
Get pre-approved for a home loan within 48 hours. Click Here or more information.
- Last 24 Hours0
- Last 7 Days0
- Last 30 Days1
Views
Contact the Owner
Enter Phone Code:
"*" indicates required fields
