1/56 Bay Street, Ultimo, NSW 2007
Price: $2,090,000 + GST
MASSIVE 140SQM (APPROX) TOTAL STRATA AREA | MEDICAL & RETAIL READY | GP ADJACENT | NEW FISH MARKET NOW OPEN
A Rare Owner-Occupier Opportunity in the Heart of Ultimo's Growth Corridor.
Offered with Vacant Possession, this versatile commercial strata title offering approximately 140sqm on title presents a strategic opportunity for medical practitioners, retail operators, or savvy investors to secure a foothold just moments from the newly opened Sydney Fish Market (Jan 2026).
Positioned directly adjacent to a high-traffic General Practice (GP), Shop 1 offers immediate synergy for allied health professionals or a captive audience for retail/hospitality operators.
THE LOCATION & POWERHOUSE CATCHMENT The location delivers immediate exposure to massive foot traffic.
New Sydney Fish Market (NOW OPEN): The new precinct is fully operational, already drawing massive crowds and projected to attract 6 million visitors annually to your doorstep.
Broadway Shopping Centre: Just a 5-minute walk away, this centre is consistently ranked #1 in NSW for Total Annual Turnover per Square Metre, proving the exceptional spending power and density of this trade area.
Education & Tourism Hub: Ideally situated within walking distance to UTS, TAFE, The Powerhouse Museum, and Ian Thorpe Aquatic Centre.
KEY ASSET HIGHLIGHTS:
Premium Exposure: Ground floor street frontage with high visibility to Bay Street traffic.
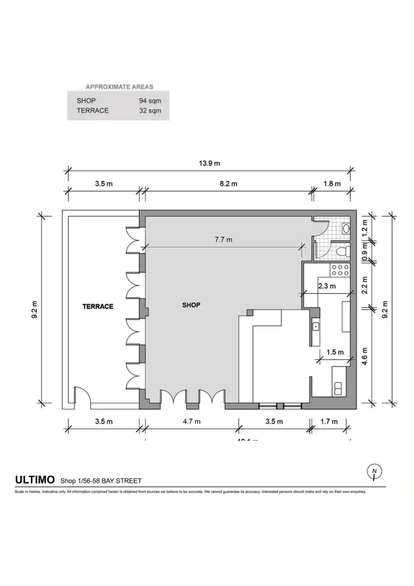
Generous Scale: Total Strata Area of approx. 140sqm, comprising:
Internal Shop: 94sqm of open-plan retail/medical space.
Exclusive Terrace: 32sqm outdoor seating on title (Rare!).
Secure Parking: 1 x Car space on title (fits large van).
Medical & Consulting Ready: Perfectly positioned next to an established Medical Centre, ideal for Pharmacy, Pathology, Physio, Dentist, or Specialist Suites seeking immediate referral potential.
F&B / Retail Ready: Existing high-quality fit-out includes Grease Trap and Mechanical Exhaust, saving the incoming operator hundreds of thousands in setup costs.
Zoning: Flexible zoning suitable for Retail, Medical, Office, or Showroom (STCA).
FINANCIAL & VALUE:
No GST on Sale? Sale is subject to GST (Vacant Possession).
Outgoings: (Available on request)
Why Rent? Stop paying a landlord and start paying off your own asset in one of Sydney's most dynamic precincts.
For Sale by Owner. Please click "Email Agent" below to request an Information Memorandum or to arrange a private inspection.
Disclaimer: All information contained herein is gathered from sources we believe to be reliable. However, we cannot guarantee its accuracy and interested persons should rely on their own enquiries. Areas are approximate.
.
The Phone Code for this property is: 73220. Please quote this number when phoning or texting.
Disclaimer:
Whilst every care has been taken to verify the accuracy of the details in this advertisement, For Sale By Owner Pty Ltd (forsalebyowner.com.au) cannot guarantee its correctness. Prospective buyers or tenants need to take such action as is necessary, to satisfy themselves of any pertinent matters.
Offered with Vacant Possession, this versatile commercial strata title offering approximately 140sqm on title presents a strategic opportunity for medical practitioners, retail operators, or savvy investors to secure a foothold just moments from the newly opened Sydney Fish Market (Jan 2026).
Positioned directly adjacent to a high-traffic General Practice (GP), Shop 1 offers immediate synergy for allied health professionals or a captive audience for retail/hospitality operators.
THE LOCATION & POWERHOUSE CATCHMENT The location delivers immediate exposure to massive foot traffic.
New Sydney Fish Market (NOW OPEN): The new precinct is fully operational, already drawing massive crowds and projected to attract 6 million visitors annually to your doorstep.
Broadway Shopping Centre: Just a 5-minute walk away, this centre is consistently ranked #1 in NSW for Total Annual Turnover per Square Metre, proving the exceptional spending power and density of this trade area.
Education & Tourism Hub: Ideally situated within walking distance to UTS, TAFE, The Powerhouse Museum, and Ian Thorpe Aquatic Centre.
KEY ASSET HIGHLIGHTS:
Premium Exposure: Ground floor street frontage with high visibility to Bay Street traffic.
Generous Scale: Total Strata Area of approx. 140sqm, comprising:
Internal Shop: 94sqm of open-plan retail/medical space.
Exclusive Terrace: 32sqm outdoor seating on title (Rare!).
Secure Parking: 1 x Car space on title (fits large van).
Medical & Consulting Ready: Perfectly positioned next to an established Medical Centre, ideal for Pharmacy, Pathology, Physio, Dentist, or Specialist Suites seeking immediate referral potential.
F&B / Retail Ready: Existing high-quality fit-out includes Grease Trap and Mechanical Exhaust, saving the incoming operator hundreds of thousands in setup costs.
Zoning: Flexible zoning suitable for Retail, Medical, Office, or Showroom (STCA).
FINANCIAL & VALUE:
No GST on Sale? Sale is subject to GST (Vacant Possession).
Outgoings: (Available on request)
Why Rent? Stop paying a landlord and start paying off your own asset in one of Sydney's most dynamic precincts.
For Sale by Owner. Please click "Email Agent" below to request an Information Memorandum or to arrange a private inspection.
Disclaimer: All information contained herein is gathered from sources we believe to be reliable. However, we cannot guarantee its accuracy and interested persons should rely on their own enquiries. Areas are approximate.
.
The Phone Code for this property is: 73220. Please quote this number when phoning or texting.
Disclaimer:
Whilst every care has been taken to verify the accuracy of the details in this advertisement, For Sale By Owner Pty Ltd (forsalebyowner.com.au) cannot guarantee its correctness. Prospective buyers or tenants need to take such action as is necessary, to satisfy themselves of any pertinent matters.
- Last 24 Hours1
- Last 7 Days1
- Last 30 Days4
Views
Contact the Owner
Phone or Text: 0488 847 018
Enter Phone Code: 73220
Enter Phone Code: 73220
"*" indicates required fields