12/272 Oxley Drive, Coombabah, QLD 4216
Sold Price: 895,000 (12 Dec 2025)
FULLY RENOVATED TOWNHOUSE IN A QUIET COMPLEX IN COOMBABAH
The Phone Code for this property is: 12587. Please quote this number when phoning or texting.
Beautifully renovated from top to bottom - including the roof and the driveway - this warm and inviting townhouse combines modern comfort with a relaxed coastal feel. Every space has been thoughtfully updated, leaving absolutely nothing left to do.
Located in a peaceful, predominantly owner-occupied and genuinely dog-friendly complex of 53 townhouses, this home offers privacy, security and a wonderful community lifestyle. (Ignore the old "no pets" sign - the complex is pet-approved and welcoming.)
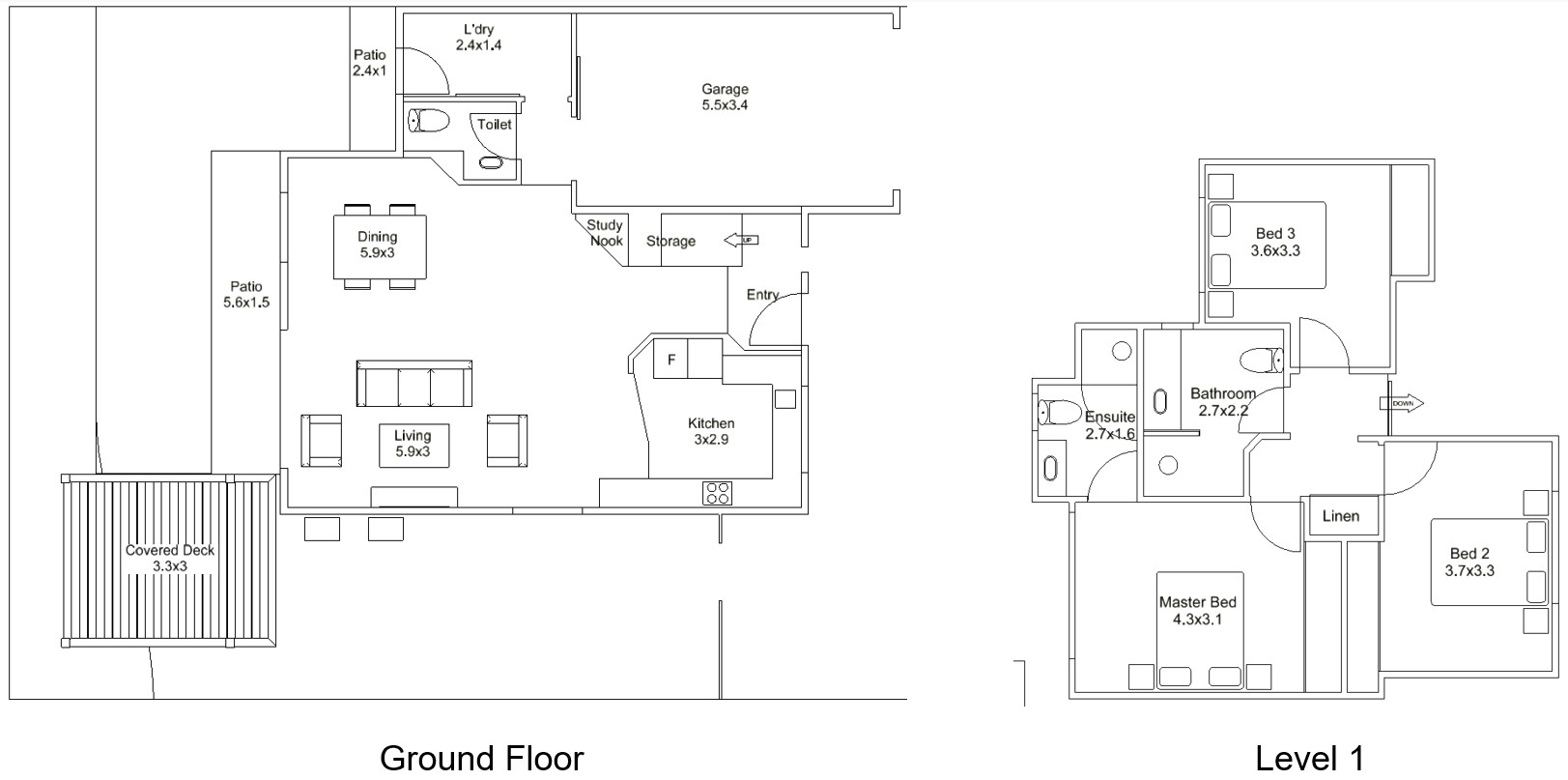
Inside, the home feels bright and spacious. The floorplan includes 3 generous bedrooms, 2 bathrooms plus a separate toilet, and 2 car spaces (garage + driveway). The kitchen has been fully renovated with integrated dishwasher and fridge, quality cabinetry and a clean, modern finish. The living and dining areas are air-conditioned and filled with natural light, and there is a separate internal laundry.
With only one adjoining neighbour, the home feels quiet and private.
Step outside to your own tropical sanctuary: a fully fenced backyard with decking, pergola and lush palms - perfect for outdoor dining, entertaining or winding down in total privacy. There is even convenient side access and the garden is wonderfully low-maintenance.
Residents enjoy excellent facilities including a swimming pool, tennis court, and BBQ area, all overseen by friendly on-site management who keep the complex immaculate.
Body corporate: approx. $88/week
Water: approx. $25/week
Council rates: approx. $1,200 per half-year
Asking price: $875,000+
Ideally positioned just 950m from Coombabah State School, 600m from shops, and with a bus stop right at the entrance of the complex. Parks, walking tracks and nature areas are close by, making this home the perfect blend of convenience and quiet coastal living.
Disclaimer:
Whilst every care has been taken to verify the accuracy of the details in this advertisement, For Sale By Owner Pty Ltd (forsalebyowner.com.au) cannot guarantee its correctness. Prospective buyers or tenants need to take such action as is necessary, to satisfy themselves of any pertinent matters.
Beautifully renovated from top to bottom - including the roof and the driveway - this warm and inviting townhouse combines modern comfort with a relaxed coastal feel. Every space has been thoughtfully updated, leaving absolutely nothing left to do.
Located in a peaceful, predominantly owner-occupied and genuinely dog-friendly complex of 53 townhouses, this home offers privacy, security and a wonderful community lifestyle. (Ignore the old "no pets" sign - the complex is pet-approved and welcoming.)
Inside, the home feels bright and spacious. The floorplan includes 3 generous bedrooms, 2 bathrooms plus a separate toilet, and 2 car spaces (garage + driveway). The kitchen has been fully renovated with integrated dishwasher and fridge, quality cabinetry and a clean, modern finish. The living and dining areas are air-conditioned and filled with natural light, and there is a separate internal laundry.
With only one adjoining neighbour, the home feels quiet and private.
Step outside to your own tropical sanctuary: a fully fenced backyard with decking, pergola and lush palms - perfect for outdoor dining, entertaining or winding down in total privacy. There is even convenient side access and the garden is wonderfully low-maintenance.
Residents enjoy excellent facilities including a swimming pool, tennis court, and BBQ area, all overseen by friendly on-site management who keep the complex immaculate.
Body corporate: approx. $88/week
Water: approx. $25/week
Council rates: approx. $1,200 per half-year
Asking price: $875,000+
Ideally positioned just 950m from Coombabah State School, 600m from shops, and with a bus stop right at the entrance of the complex. Parks, walking tracks and nature areas are close by, making this home the perfect blend of convenience and quiet coastal living.
Disclaimer:
Whilst every care has been taken to verify the accuracy of the details in this advertisement, For Sale By Owner Pty Ltd (forsalebyowner.com.au) cannot guarantee its correctness. Prospective buyers or tenants need to take such action as is necessary, to satisfy themselves of any pertinent matters.
Features
Modern Bathroom, Modern Kitchen, Renovated Bathroom, Renovated Kitchen, Pet Friendly, Tennis Court, Concierge/Manager, Close to Parklands, Close to Schools, Close to Shops, Close to Transport, Non Smoking, Air Conditioning, Built-ins, Ensuite, Internal Laundry, Swimming/Lap Pool, Dishwasher, Deck, Fully Fenced, BBQ, Entertainment Area, Swipe Card, Quiet Location, Solar Panels
Need a Home Loan?
Get pre-approved for a home loan within 48 hours. Click Here or more information.
- Last 24 Hours1
- Last 7 Days5
- Last 30 Days8
Views
Contact the Owner
Phone or Text: 0488 847 018
Enter Phone Code: 12587
Enter Phone Code: 12587
"*" indicates required fields