Kincumber, NSW 2251
Price: Price by Negotiation
Highly Sought After Location
The Phone Code for this property is: 18755. Please quote this number when phoning or texting.
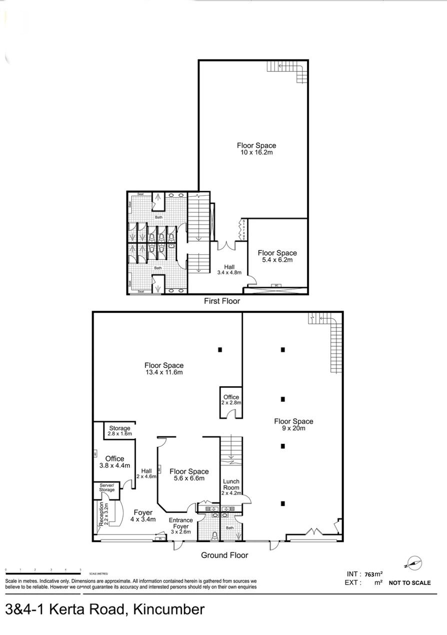
Welcome to an exceptional investment opportunity in the heart of the coveted Central Coast suburb of Kincumber to own 2 Factories. These commercial properties boasts a prime location that is highly sought after by investors and business owners alike. Situated in a bustling area where demand is high, properties like this don't come on the market often, making it a rare gem indeed.
What sets this property apart is its long-term tenant, providing a stable and reliable income stream for the savvy investor. With a strong return on investment, this is a rare chance to secure a piece of real estate that promises both financial security and capital growth potential.
One of the standout features of this property is the convenience of allocated parking, a highly valued asset in this busy neighbourhood. Your tenants and their clients will appreciate the ease of access and the peace of mind that comes with having designated parking spaces available.
Disclaimer:
Whilst every care has been taken to verify the accuracy of the details in this advertisement, For Sale By Owner Pty Ltd (forsalebyowner.com.au) cannot guarantee its correctness. Prospective buyers or tenants need to take such action as is necessary, to satisfy themselves of any pertinent matters.
Welcome to an exceptional investment opportunity in the heart of the coveted Central Coast suburb of Kincumber to own 2 Factories. These commercial properties boasts a prime location that is highly sought after by investors and business owners alike. Situated in a bustling area where demand is high, properties like this don't come on the market often, making it a rare gem indeed.
What sets this property apart is its long-term tenant, providing a stable and reliable income stream for the savvy investor. With a strong return on investment, this is a rare chance to secure a piece of real estate that promises both financial security and capital growth potential.
One of the standout features of this property is the convenience of allocated parking, a highly valued asset in this busy neighbourhood. Your tenants and their clients will appreciate the ease of access and the peace of mind that comes with having designated parking spaces available.
Disclaimer:
Whilst every care has been taken to verify the accuracy of the details in this advertisement, For Sale By Owner Pty Ltd (forsalebyowner.com.au) cannot guarantee its correctness. Prospective buyers or tenants need to take such action as is necessary, to satisfy themselves of any pertinent matters.
- Last 24 Hours1
- Last 7 Days5
- Last 30 Days19
Views
Contact the Owner
Phone or Text: 0488 847 018
Enter Phone Code: 18755
Enter Phone Code: 18755
"*" indicates required fields