17 Wallaroo Way, Ashmore, QLD 4214
Sold Price Not Disclosed (26 Jun 2024)
Best Value in Ashmore
The Phone Code for this property is: 82138. Please quote this number when phoning or texting.
A genuine opportunity to secure a property that is bursting with potential - at an entry price point that can never be repeated.
This property will suit those buyers who are seeking to create their own perfect lifestyle, including first home buyers and astute developers/investors that know how to craft a unique showpiece from the existing structure and add tremendous value.
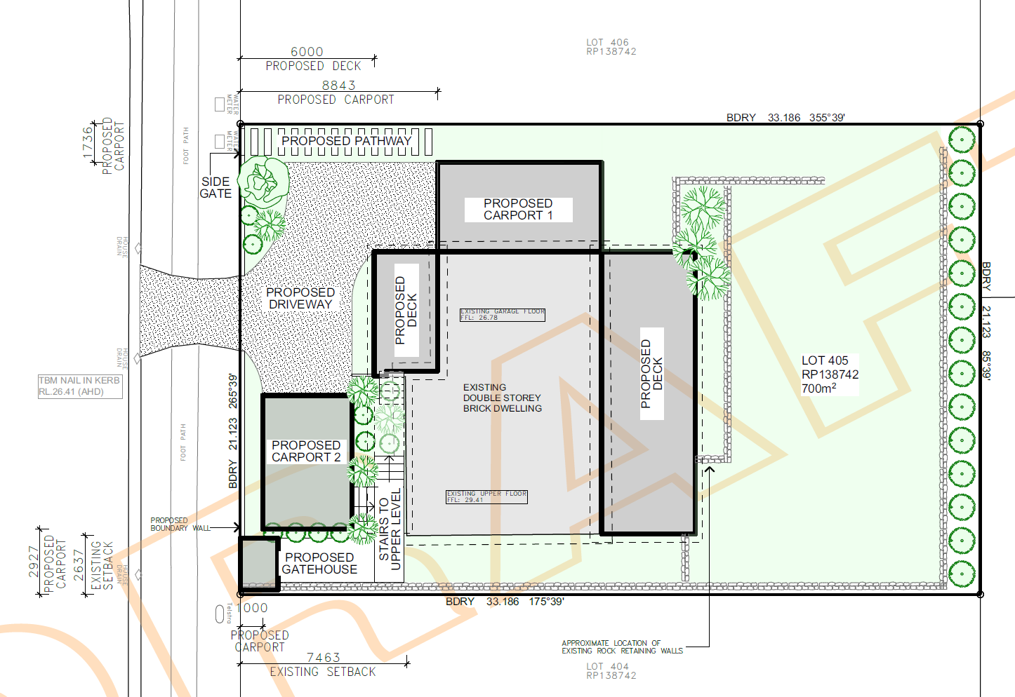
Much of the site works have already been completed - from excavation of the external surrounds and downstairs, to maximise usable land and also to create valuable living space on the ground floor level, together with superb landscaping incorporating extensive, terraced, sandstone retaining walls and large level turfed area.
The key elements featured are:
• The perfect elevated North to rear aspect to the living areas guarantees a refreshing sought after through breeze, quality lifestyle plus privacy.
• Recently installed, multi-head split system air conditioning throughout the home in each of the 3 bedrooms and the open plan living.
• Generous landscaped block with earthworks and civil works already completed.
• Existing two storey, 3 bedroom, 2 bathroom (main bathroom plus ensuite), brick and tile home
• Large downstairs area with potential extended living, dual living or home office.
• Room for a pool, multi-parking configuration, space for all the toys and whatever else you may imagine.
• Located on a quiet street with adjoining quality residences.
• Within easy distance to all of the many amenities and services available.
The options to complete this project are many and varied so you can choose those that best reflect your own preferences.
There are Architect designed plans which will assist you in deciding your finished residence.
This great opportunity to purchase in sought after Ashmore at close to land value will create keen interest, so please contact us to arrange your early viewing.
Disclaimer:
Whilst every care has been taken to verify the accuracy of the details in this advertisement, For Sale By Owner (forsalebyowner.com.au Pty Ltd) cannot guarantee its correctness. Prospective buyers or tenants need to take such action as is necessary, to satisfy themselves of any pertinent matters.
A genuine opportunity to secure a property that is bursting with potential - at an entry price point that can never be repeated.
This property will suit those buyers who are seeking to create their own perfect lifestyle, including first home buyers and astute developers/investors that know how to craft a unique showpiece from the existing structure and add tremendous value.
Much of the site works have already been completed - from excavation of the external surrounds and downstairs, to maximise usable land and also to create valuable living space on the ground floor level, together with superb landscaping incorporating extensive, terraced, sandstone retaining walls and large level turfed area.
The key elements featured are:
• The perfect elevated North to rear aspect to the living areas guarantees a refreshing sought after through breeze, quality lifestyle plus privacy.
• Recently installed, multi-head split system air conditioning throughout the home in each of the 3 bedrooms and the open plan living.
• Generous landscaped block with earthworks and civil works already completed.
• Existing two storey, 3 bedroom, 2 bathroom (main bathroom plus ensuite), brick and tile home
• Large downstairs area with potential extended living, dual living or home office.
• Room for a pool, multi-parking configuration, space for all the toys and whatever else you may imagine.
• Located on a quiet street with adjoining quality residences.
• Within easy distance to all of the many amenities and services available.
The options to complete this project are many and varied so you can choose those that best reflect your own preferences.
There are Architect designed plans which will assist you in deciding your finished residence.
This great opportunity to purchase in sought after Ashmore at close to land value will create keen interest, so please contact us to arrange your early viewing.
Disclaimer:
Whilst every care has been taken to verify the accuracy of the details in this advertisement, For Sale By Owner (forsalebyowner.com.au Pty Ltd) cannot guarantee its correctness. Prospective buyers or tenants need to take such action as is necessary, to satisfy themselves of any pertinent matters.
Features
Bath, Garden, Level Lawn, Close to Parklands, Close to Schools, Close to Shops, Air Conditioning, Built-ins, Ensuite, Broadband
Need a Home Loan?
Get pre-approved for a home loan within 48 hours. Click Here or more information.
- Last 24 Hours0
- Last 7 Days3
- Last 30 Days15
Views
Contact the Owner
Phone or Text: 0488 847 018
Enter Phone Code: 82138
Enter Phone Code: 82138
"*" indicates required fields