2 Wingfield Street, Clovelly Park, SA 5042
Sold Price: 845,000 (04 Aug 2023)
Character Charm on Immense Allotment
Boasting an enormous allotment of approx. 900sqm with a very wide approx. 20.5m frontage, and featuring an attractive sandstone character facade, this solid double brick residence presents as a rare combination of charm and spaciousness.
Located in rapidly gentrifying Clovelly Park the home is filled with 1950's Art Deco style including feature square cornicing, stylish glass paneled internal doors and extra high 2.9m ceiling heights.
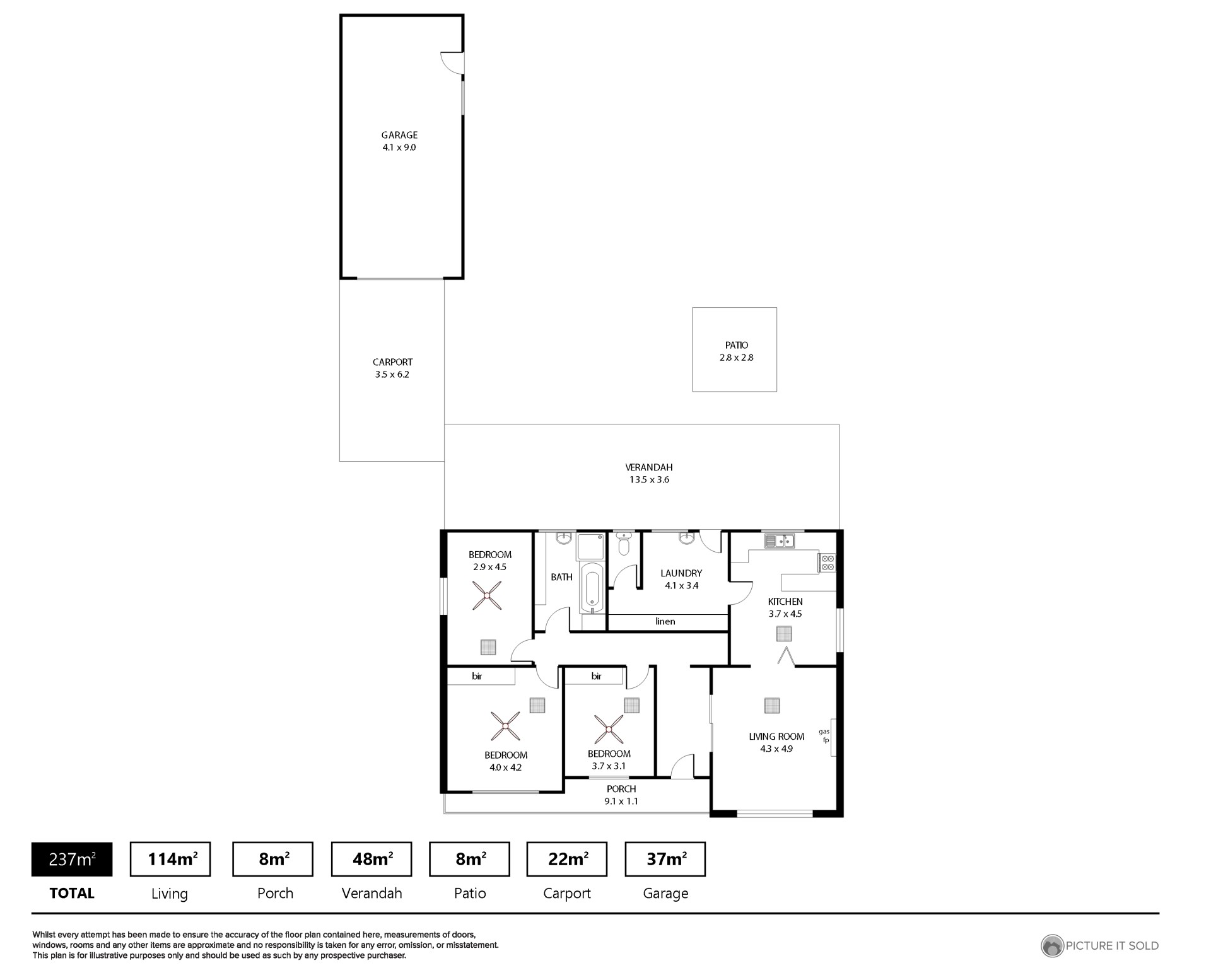
Composed of 3 large bedrooms, a huge bathroom with separate toilet, large laundry with copious amounts of storage and spacious kitchen and meals area with adjoining loungeroom the home is in excellent structural condition and offers purchasers the opportunity to modernise and extend to create a dream home on an ever scarcer large parcel of land, with space for a swimming pool. Alternatively, the property affords the astute investor the ability to subdivide and develop the site and reap the financial rewards (S.T.C.C.).
Further features include:
*Single carport with additional single garage
*Off street parking for an additional 3 vehicles
*Storage room adjoining the garage
*Ducted evaporative cooling
*Gas fireplace
*Deep rear verandah ideal for outdoor entertaining
Located in close proximity to a train line and bus routes, the property is a stones throw from Castle Plaza shopping centre, a short drive to the shopping, eateries and movie theatres of Westfield Marion, local schools and private school Westminster and is a short approx. 15 minute drive from the CBD.
Offering a rare opportunity to secure a solidly built character home on a large allotment with enormous potential for updating, or the chance for savvy investors to generate significant returns, 2 Wingfield Street awaits its next custodian.
The Phone Code for this property is: 67535. Please quote this number when phoning or texting.
Disclaimer:
Whilst every care has been taken to verify the accuracy of the details in this advertisement, For Sale By Owner (forsalebyowner.com.au Pty Ltd) cannot guarantee its correctness. Prospective buyers or tenants need to take such action as is necessary, to satisfy themselves of any pertinent matters.
Located in rapidly gentrifying Clovelly Park the home is filled with 1950's Art Deco style including feature square cornicing, stylish glass paneled internal doors and extra high 2.9m ceiling heights.
Composed of 3 large bedrooms, a huge bathroom with separate toilet, large laundry with copious amounts of storage and spacious kitchen and meals area with adjoining loungeroom the home is in excellent structural condition and offers purchasers the opportunity to modernise and extend to create a dream home on an ever scarcer large parcel of land, with space for a swimming pool. Alternatively, the property affords the astute investor the ability to subdivide and develop the site and reap the financial rewards (S.T.C.C.).
Further features include:
*Single carport with additional single garage
*Off street parking for an additional 3 vehicles
*Storage room adjoining the garage
*Ducted evaporative cooling
*Gas fireplace
*Deep rear verandah ideal for outdoor entertaining
Located in close proximity to a train line and bus routes, the property is a stones throw from Castle Plaza shopping centre, a short drive to the shopping, eateries and movie theatres of Westfield Marion, local schools and private school Westminster and is a short approx. 15 minute drive from the CBD.
Offering a rare opportunity to secure a solidly built character home on a large allotment with enormous potential for updating, or the chance for savvy investors to generate significant returns, 2 Wingfield Street awaits its next custodian.
The Phone Code for this property is: 67535. Please quote this number when phoning or texting.
Disclaimer:
Whilst every care has been taken to verify the accuracy of the details in this advertisement, For Sale By Owner (forsalebyowner.com.au Pty Ltd) cannot guarantee its correctness. Prospective buyers or tenants need to take such action as is necessary, to satisfy themselves of any pertinent matters.
Contact Karen on 0438 838 018 at First Paige Property Settlement Services for help with your Real Estate paperwork (Form 1 & Contracts) or email if you have questions. admin@firstpaigeform1.com
Visit WebsiteNeed a Home Loan?
Get pre-approved for a home loan within 48 hours. Click Here or more information.
- Last 24 Hours0
- Last 7 Days0
- Last 30 Days6
Views
Contact the Owner
Phone or Text: 0488 847 018
Enter Phone Code: 67535
Enter Phone Code: 67535
"*" indicates required fields
