7 Hook Close, Brinsmead, QLD 4870
Sold Price Not Disclosed (13 Mar 2023)
Tropical Living at its best
The Phone Code for this property is: 53331. Please quote this number when phoning or texting.
This airy and light filled architect designed split level tropical home is positioned and oriented on an elevated 1027sqm block to capture the cool SE breezes and allow beautiful mountain vistas of both Mt Whitfield Conservation Park and the Redlynch Valley.
The owners are reluctantly selling this much loved family home as it's their time to downsize. This is a brilliant home to raise a family in with loads of room in the 266 square metres of indoor and outdoor living space, perfect for relaxed tropical living and entertaining.
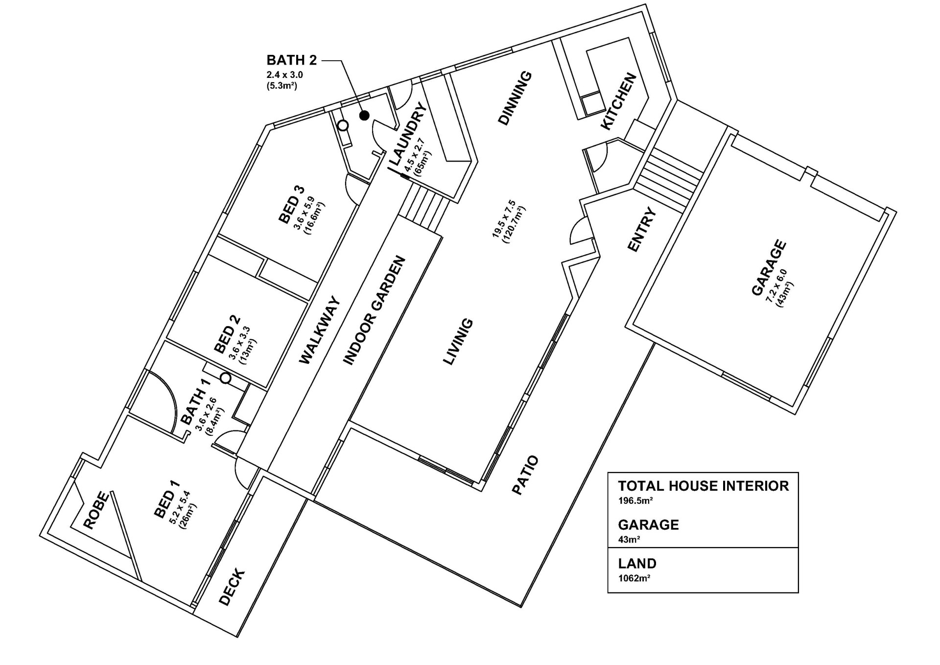
You will be dazzled by the open plan design featuring 5m high cathedral ceilings in the living room with a delightful low maintenance 9m long indoor garden. The living room area is surrounded by sliding glass doors to the 3m wide wrap-around verandah and a sculptured terrace provides more options to entertain or simply to unwind and enjoy the leafy and bird filled surrounds.
The spacious kitchen features a gas/electric cooktop, dishwasher, exteriorly vented rangehood, built-in water purifier, plenty of preparation bench space, large walk-in pantry and generous breakfast bar. The house is tiled throughout, featuring Italian ceramic tiles in the main living areas.
There are three extra-large bedrooms, with built-in wardrobes, ceiling fans and air conditioning. The master bedroom is complemented with a spacious spa ensuite and large walk-in wardrobe.
Some practical features include 6KW PV solar electricity, LED lighting and security screens. The laundry has both wall mounted and large bench storage cupboards. A double door linen press is centrally located near the bedrooms.
The large and secure double garage is separate from the living areas, has undercover access, fitted with remote controlled roller doors and has wall mounted cupboards.
The flat driveway has sufficient parking for quite a few vehicles and has a shade cloth cover. Above the garage is an easy accessed storage attic.
The home has well established tropical gardens with mature mango, orange and lemonade trees as well as dragon fruit, bananas, pineapples and other fruits growing. There is a large raised vegetable garden and also a herb garden fringing the terrace with direct access from the kitchen.
Located in a quiet cul-de-sac in the well-established leafy neighbourhood of Brinsmead, a suburb prized for its Zone 1 fully detached homes on large blocks with underground power and green spaces such as the popular Goomboora & Glenoma parklands,swimming creeks and a huge network of bicycle pathways. The property is located in the catchment zone for Freshwater Primary School. Public transport and local shops are nearby and it's just a short 15 minute drive to the CBD and also to the Cairns International Airport - this home is tropical living at its best.
Call today to arrange your inspection.
Note: Plan and measurements are approximate only.
Disclaimer:
Whilst every care has been taken to verify the accuracy of the details in this advertisement, For Sale By Owner (forsalebyowner.com.au Pty Ltd) cannot guarantee its correctness. Prospective buyers or tenants need to take such action as is necessary, to satisfy themselves of any pertinent matters.
This airy and light filled architect designed split level tropical home is positioned and oriented on an elevated 1027sqm block to capture the cool SE breezes and allow beautiful mountain vistas of both Mt Whitfield Conservation Park and the Redlynch Valley.
The owners are reluctantly selling this much loved family home as it's their time to downsize. This is a brilliant home to raise a family in with loads of room in the 266 square metres of indoor and outdoor living space, perfect for relaxed tropical living and entertaining.
You will be dazzled by the open plan design featuring 5m high cathedral ceilings in the living room with a delightful low maintenance 9m long indoor garden. The living room area is surrounded by sliding glass doors to the 3m wide wrap-around verandah and a sculptured terrace provides more options to entertain or simply to unwind and enjoy the leafy and bird filled surrounds.
The spacious kitchen features a gas/electric cooktop, dishwasher, exteriorly vented rangehood, built-in water purifier, plenty of preparation bench space, large walk-in pantry and generous breakfast bar. The house is tiled throughout, featuring Italian ceramic tiles in the main living areas.
There are three extra-large bedrooms, with built-in wardrobes, ceiling fans and air conditioning. The master bedroom is complemented with a spacious spa ensuite and large walk-in wardrobe.
Some practical features include 6KW PV solar electricity, LED lighting and security screens. The laundry has both wall mounted and large bench storage cupboards. A double door linen press is centrally located near the bedrooms.
The large and secure double garage is separate from the living areas, has undercover access, fitted with remote controlled roller doors and has wall mounted cupboards.
The flat driveway has sufficient parking for quite a few vehicles and has a shade cloth cover. Above the garage is an easy accessed storage attic.
The home has well established tropical gardens with mature mango, orange and lemonade trees as well as dragon fruit, bananas, pineapples and other fruits growing. There is a large raised vegetable garden and also a herb garden fringing the terrace with direct access from the kitchen.
Located in a quiet cul-de-sac in the well-established leafy neighbourhood of Brinsmead, a suburb prized for its Zone 1 fully detached homes on large blocks with underground power and green spaces such as the popular Goomboora & Glenoma parklands,swimming creeks and a huge network of bicycle pathways. The property is located in the catchment zone for Freshwater Primary School. Public transport and local shops are nearby and it's just a short 15 minute drive to the CBD and also to the Cairns International Airport - this home is tropical living at its best.
Call today to arrange your inspection.
Note: Plan and measurements are approximate only.
Disclaimer:
Whilst every care has been taken to verify the accuracy of the details in this advertisement, For Sale By Owner (forsalebyowner.com.au Pty Ltd) cannot guarantee its correctness. Prospective buyers or tenants need to take such action as is necessary, to satisfy themselves of any pertinent matters.
Features
Balcony/Patio/Terrace, Bath, Entertainment Area, Garden, Spa Bath/Jacuzzi, Storage Area, Unlevel Lawn, Safe, Security Lights, Close to Parklands, Quiet Location, Prestige Property, Air Conditioning, Built-ins, Ensuite, Internal Laundry, Broadband, Dishwasher, Balcony, Courtyard, Secure Parking, Solar Panels, Solar Hot Water, Inside Spa, Living Area, Deck
Need a Home Loan?
Get pre-approved for a home loan within 48 hours. Click Here or more information.
- Last 24 Hours0
- Last 7 Days1
- Last 30 Days4
Views
Contact the Owner
Phone or Text: 0488 847 018
Enter Phone Code: 53331
Enter Phone Code: 53331
"*" indicates required fields