33 Murray St, Lower Mitcham, SA 5062
Sandstone Villa on over 2100sqm with subdivision approval for up to 2 additional homes.
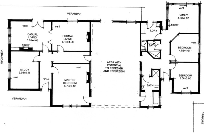
Villa has flexible floor plan currently set up as 4 bedrooms, study, 2 bathrooms, formal lounge, television room, dining room and living room in children's wing. The property is in a quiet established inner suburb less than 8Klm from the CBD. Walking distance to the new Mitcham Square Shopping Centre [with 2 supermarkets, 7 cinemas, specialty shops] and only minutes from Scotch College, Walford Anglican and other sought after schools.
INSPECTIONS are by booking only.
MANNER OF SALE is by completing the offer form with price, settlement date, etc. This is an OPEN AGENCY SALE, so there is no 'For Sale' board at the front of the property.
SUBURB DESCRIPTION...Lower Mitcham is bounded by Hawthorn on the North and the heritage suburb of Colonel Light Gardens [considered the best example of a garden suburb in the southern hemisphere] on the West. The Adelaide foothills on the South and Torrens Park/Mitcham on the East. The suburb is now in transition with new developments replacing some of the less maintained homes.
Disclaimer:
Whilst every care has been taken to verify the accuracy of the details in this advertisement, For Sale By Owner (forsalebyowner.com.au Pty Ltd) cannot guarantee its correctness. Prospective buyers or tenants need to take such action as is necessary, to satisfy themselves of any pertinent matters.
Features
Bath, Fireplace(s), Formal Lounge, Heating, Modern Bathroom, Renovated, Renovated Bathroom, Renovated Kitchen, Separate Dining Room, Entertainment Area, Garden, Level Lawn, Pet Friendly, Rainwater Tank, Alarm System, Security Lights, Close to Schools, Close to Shops, Close to Transport, Quiet Location, Prestige Property, Air Conditioning, Gas Enabled, Internal Laundry, Swimming/Lap Pool, Study, Broadband, Dishwasher, Secure Parking, Outside Spa
Contact Karen on 0438 838 018 at First Paige Property Settlement Services for help with your Real Estate paperwork (Form 1 & Contracts) or email if you have questions. admin@firstpaigeform1.com
Visit WebsiteNeed a Home Loan?
Get pre-approved for a home loan within 48 hours. Click Here or more information.
- Last 24 Hours0
- Last 7 Days0
- Last 30 Days0
Views
Contact the Owner
Enter Phone Code when prompted.
"*" indicates required fields
