5/12 Promenade Avenue, Robina, QLD 4226
Sold Price Not Disclosed (30 Nov 2013)
Promenade Village - Prime End Unit
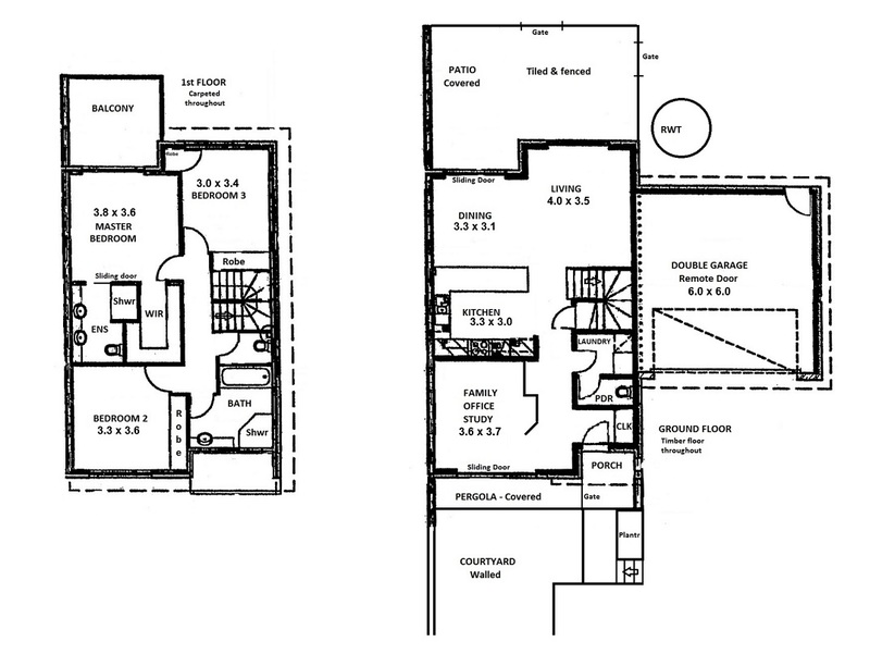
Designed for contemporary living, this beautifully presented, quality steel frame, spacious home features a grand master bedroom with ensuite upstairs, flowing onto a wide tiled balcony that enjoys stunning views of surrounds and Lake Lido. A further two large bedrooms together with ample storage, large linen cupboard, main bathroom and separate toilet complete the upstairs spaces. There is also additional storage under the main staircase.
A separate lounge, dining and family/study downstairs provide multi-functional living zones, and the European/granite kitchen, with upgraded stainless steel appliances and good sized pantry, is at the heart of the home. Further upgrades include floating timber floors downstairs and wool carpeting to upstairs areas.
There is a large, tiled, enclosed terrace at the rear, private low-maintenance gated courtyard at the front of the home and an external 2,500lt Rainwater Tank.
Reverse cycle air conditioning, ceiling fans, insulated ceilings, adjustable awnings and sun shades ensure a comfortable, year round living environment. The home is also WIFI friendly, wired for cable TV (dish installed) and Ethernet. Robina is a 4G area.
The well lit remote access double garage has ample parking for 2 vehicles and space for additional storage/work area.
The gated entry and monitored security, together with Crimsafe mesh on all doors and windows ensure security and peace of mind.
Within easy walking distance of Robina Town Centre incl. boutique shopping, movie theatres, bowling, fitness centres, restaurants, as well as Robina railway/bus station, Robina Hospital and much more.
This quiet, security gated complex features stunning resort style swimming pool, community area, BBQ, Visitor Parking area, Car Wash Bay and excellent on-site Managers.
Pets on approval.
Exceptional presentation.
Inspections by appointment only.
Disclaimer:
Whilst every care has been taken to verify the accuracy of the details in this advertisement, For Sale By Owner (forsalebyowner.com.au Pty Ltd) cannot guarantee its correctness. Prospective buyers or tenants need to take such action as is necessary, to satisfy themselves of any pertinent matters.
A separate lounge, dining and family/study downstairs provide multi-functional living zones, and the European/granite kitchen, with upgraded stainless steel appliances and good sized pantry, is at the heart of the home. Further upgrades include floating timber floors downstairs and wool carpeting to upstairs areas.
There is a large, tiled, enclosed terrace at the rear, private low-maintenance gated courtyard at the front of the home and an external 2,500lt Rainwater Tank.
Reverse cycle air conditioning, ceiling fans, insulated ceilings, adjustable awnings and sun shades ensure a comfortable, year round living environment. The home is also WIFI friendly, wired for cable TV (dish installed) and Ethernet. Robina is a 4G area.
The well lit remote access double garage has ample parking for 2 vehicles and space for additional storage/work area.
The gated entry and monitored security, together with Crimsafe mesh on all doors and windows ensure security and peace of mind.
Within easy walking distance of Robina Town Centre incl. boutique shopping, movie theatres, bowling, fitness centres, restaurants, as well as Robina railway/bus station, Robina Hospital and much more.
This quiet, security gated complex features stunning resort style swimming pool, community area, BBQ, Visitor Parking area, Car Wash Bay and excellent on-site Managers.
Pets on approval.
Exceptional presentation.
Inspections by appointment only.
Disclaimer:
Whilst every care has been taken to verify the accuracy of the details in this advertisement, For Sale By Owner (forsalebyowner.com.au Pty Ltd) cannot guarantee its correctness. Prospective buyers or tenants need to take such action as is necessary, to satisfy themselves of any pertinent matters.
Features
Bath, Formal Lounge, Heating, Modern Bathroom, Modern Kitchen, Renovated, Separate Dining Room, Entertainment Area, Garden, Pet Friendly, Rainwater Tank, Shower Facilities, Concierge/Manager, Security Windows, Swipe Card, Close to Parklands, Close to Schools, Close to Shops, Close to Transport, Quiet Location, Views, Prestige Property, Air Conditioning, Built-ins, Ensuite, Internal Laundry, Pay TV Enabled, Polished Timber Floors, Swimming/Lap Pool, Remote Garage, Study, Dishwasher, Balcony, Courtyard, Secure Parking, Broadband
Need a Home Loan?
Get pre-approved for a home loan within 48 hours. Click Here or more information.
- Last 24 Hours1
- Last 7 Days3
- Last 30 Days3
Views
Contact the Owner
Phone or Text: 0488 847 018
Enter Phone Code:
Enter Phone Code:
"*" indicates required fields