185 Simpsons Road, Bardon, QLD 4065
Sold Price: 1,485,000 (31 Jul 2013)
Stunning contemporary home in tranquil bushland surroundings
This elegant home is stamped with excellence and cleverly designed for comfort and modern family living. Situated in a private hideaway overlooking a large nature and bird reserve, this property truly
maximises its expansive northerly view. It is situated in the sought after community of Bardon, which is only minutes from Rosalie, Paddington, the CBD and some of the finest schools.
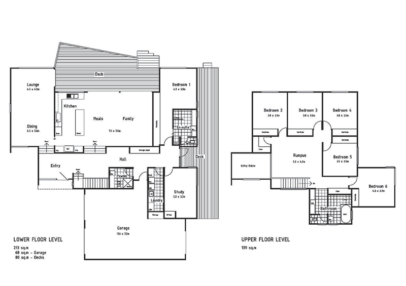
Architecturally designed, this home will satisfy even the most fastidious buyer with its attention to detail and classic decor. When you enter you are welcomed with refreshingly generous proportions and the absolute beauty of your surroundings. The sense of tranquillity is tangible and it’s hard to believe that you are only minutes from Brisbane city. The high ceiling entry ushers you into a choice of spacious split level living, dining and entertaining areas. Whichever direction you take you will enjoy the expansive views, the 3 metre high ceilings, the warm Blackbutt timber floors and a captivating sense of "Welcome Home".
The first-class kitchen with its large smart stone bench tops is perfect for entertaining and family living. This kitchen is well designed, using classic contemporary features. These include numerous soft closing drawers, two pantries, a large gas cook top and fan forced oven and Miele dishwasher.
The family room has tall glass sliding doors. These open out onto a spacious timber deck overlooking the reserve and tropical garden which is ideal for alfresco dining or lounging about. There is also a natural gas supply outlet for your favourite BBQ.
On the middle level is the master bedroom also with captivating views. This bedroom offers abundant privacy from the rest of the home and also features substantial BIRs and sound proofing. It is serviced by a large en-suite with frameless glass shower, marble bench top, mirror cabinets and a separate toilet room.
Opposite the master bedroom is a well sized multi-purpose room which could be used as a home office, nursery or guest room. Also on this level is a conveniently located powder room with shower which can be used as a guest bathroom. Further down the hallway you will find direct access to the 3-car garage, storage, cupboards, and a spacious laundry.
Moving up the timber staircase you arrive at the upper level which includes an open plan rumpus room perfect for play, media or study. Adjoining this room are five generous bedrooms all with BIRs and all with stunning bushland views. Again storage and linen space is more than ample!
There is a spacious three-way bathroom to this level which is cleverly designed with two basins, expansive marble bench top, wall to wall cabinet mirrors, a luxurious bath and frameless glass shower all wrapped in large, classic floor to ceiling tiles.
Lower Level
• Lounge and dining rooms
• Family, meals and kitchen areas
• Alfresco living & dining area
• Master bedroom and en-suite
• Home office / nursery / guest room
• Powder / guest bathroom
• Laundry
• 3 car garage
Upper Level
• 5 Bedrooms
• Rumpus room
• 3-way bathroom
• Linen & storage cupboards
Additional Features
• 5 zone reverse-cycle ducted a/c system that services all levels
• Fully insulated walls, ceilings & roofs
• Natural gas instantaneous hot water system
• 7,000 litre rain water tank
• Remote control garage doors
• Modern window furnishings
• Premium quality wool carpet to all bedrooms
• Absolutely low maintenance garden
• Loads of storage in the under croft
Disclaimer:
Whilst every care has been taken to verify the accuracy of the details in this advertisement, For Sale By Owner (forsalebyowner.com.au Pty Ltd) cannot guarantee its correctness. Prospective buyers or tenants need to take such action as is necessary, to satisfy themselves of any pertinent matters.
maximises its expansive northerly view. It is situated in the sought after community of Bardon, which is only minutes from Rosalie, Paddington, the CBD and some of the finest schools.
Architecturally designed, this home will satisfy even the most fastidious buyer with its attention to detail and classic decor. When you enter you are welcomed with refreshingly generous proportions and the absolute beauty of your surroundings. The sense of tranquillity is tangible and it’s hard to believe that you are only minutes from Brisbane city. The high ceiling entry ushers you into a choice of spacious split level living, dining and entertaining areas. Whichever direction you take you will enjoy the expansive views, the 3 metre high ceilings, the warm Blackbutt timber floors and a captivating sense of "Welcome Home".
The first-class kitchen with its large smart stone bench tops is perfect for entertaining and family living. This kitchen is well designed, using classic contemporary features. These include numerous soft closing drawers, two pantries, a large gas cook top and fan forced oven and Miele dishwasher.
The family room has tall glass sliding doors. These open out onto a spacious timber deck overlooking the reserve and tropical garden which is ideal for alfresco dining or lounging about. There is also a natural gas supply outlet for your favourite BBQ.
On the middle level is the master bedroom also with captivating views. This bedroom offers abundant privacy from the rest of the home and also features substantial BIRs and sound proofing. It is serviced by a large en-suite with frameless glass shower, marble bench top, mirror cabinets and a separate toilet room.
Opposite the master bedroom is a well sized multi-purpose room which could be used as a home office, nursery or guest room. Also on this level is a conveniently located powder room with shower which can be used as a guest bathroom. Further down the hallway you will find direct access to the 3-car garage, storage, cupboards, and a spacious laundry.
Moving up the timber staircase you arrive at the upper level which includes an open plan rumpus room perfect for play, media or study. Adjoining this room are five generous bedrooms all with BIRs and all with stunning bushland views. Again storage and linen space is more than ample!
There is a spacious three-way bathroom to this level which is cleverly designed with two basins, expansive marble bench top, wall to wall cabinet mirrors, a luxurious bath and frameless glass shower all wrapped in large, classic floor to ceiling tiles.
Lower Level
• Lounge and dining rooms
• Family, meals and kitchen areas
• Alfresco living & dining area
• Master bedroom and en-suite
• Home office / nursery / guest room
• Powder / guest bathroom
• Laundry
• 3 car garage
Upper Level
• 5 Bedrooms
• Rumpus room
• 3-way bathroom
• Linen & storage cupboards
Additional Features
• 5 zone reverse-cycle ducted a/c system that services all levels
• Fully insulated walls, ceilings & roofs
• Natural gas instantaneous hot water system
• 7,000 litre rain water tank
• Remote control garage doors
• Modern window furnishings
• Premium quality wool carpet to all bedrooms
• Absolutely low maintenance garden
• Loads of storage in the under croft
Disclaimer:
Whilst every care has been taken to verify the accuracy of the details in this advertisement, For Sale By Owner (forsalebyowner.com.au Pty Ltd) cannot guarantee its correctness. Prospective buyers or tenants need to take such action as is necessary, to satisfy themselves of any pertinent matters.
Features
Formal Lounge, Heating, Modern Bathroom, Modern Kitchen, Separate Dining Room, Entertainment Area, Pet Friendly, Rainwater Tank, Storage Area, Close to Parklands, Close to Schools, Close to Shops, Close to Transport, Quiet Location, Views, Nature Property, Prestige Property, Air Conditioning, Built-ins, Ensuite, Gas Enabled, Internal Laundry, Polished Timber Floors, Remote Garage, Study, Broadband, Dishwasher, Workshop
Need a Home Loan?
Get pre-approved for a home loan within 48 hours. Click Here or more information.
- Last 24 Hours1
- Last 7 Days4
- Last 30 Days13
Views
Contact the Owner
Phone or Text: 0488 847 018
Enter Phone Code when prompted.
Enter Phone Code when prompted.
"*" indicates required fields