26 Norman Ave, Normanville, SA 5204
Sold Price: 307,000 (27 Jun 2014)
Perfect Location to Live, Retire or Holiday!
PRICE REDUCED - OFFERS CONSIDERED.
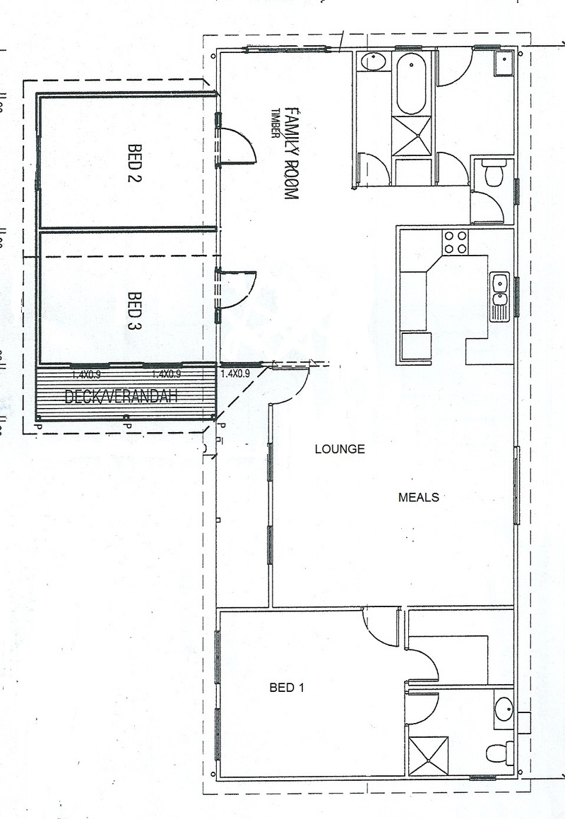
This unique home surrounded by a beautiful tropical style garden and accompanied by an outdoor spa and large pizza oven, is a "one off" with its large hardwood decks and outdoor entertaining areas. Set on a large allotment of approx. 998m2, this 3 bedroom, 2 bathroom home was built in 2001 and extended in 2006. All three bedrooms are large in size, the main containing a huge WIR and ensuite. With two well sized living areas, this home ticks all the boxes and is well positioned in the picturesque town of Normanville.
* 3 bedrooms, main with ensuite and WIR
* Built in robes to Bedroom 2 and 3
* Evaporative ducted a/c
* Slow combustion heater
* Wooden floorboards
* 2 spacious living areas
* Large fully fenced block
* 6 x 6 shed with front and back access
* Large hardwood decks
* Outdoor pizza oven
* Huge tropical gardens
* Separate toilet to main bathroom
* Walking distance to shops, restaurants and cafes
* Within 1km of the beautiful beach of Normanville
Disclaimer:
Whilst every care has been taken to verify the accuracy of the details in this advertisement, For Sale By Owner (forsalebyowner.com.au Pty Ltd) cannot guarantee its correctness. Prospective buyers or tenants need to take such action as is necessary, to satisfy themselves of any pertinent matters.
This unique home surrounded by a beautiful tropical style garden and accompanied by an outdoor spa and large pizza oven, is a "one off" with its large hardwood decks and outdoor entertaining areas. Set on a large allotment of approx. 998m2, this 3 bedroom, 2 bathroom home was built in 2001 and extended in 2006. All three bedrooms are large in size, the main containing a huge WIR and ensuite. With two well sized living areas, this home ticks all the boxes and is well positioned in the picturesque town of Normanville.
* 3 bedrooms, main with ensuite and WIR
* Built in robes to Bedroom 2 and 3
* Evaporative ducted a/c
* Slow combustion heater
* Wooden floorboards
* 2 spacious living areas
* Large fully fenced block
* 6 x 6 shed with front and back access
* Large hardwood decks
* Outdoor pizza oven
* Huge tropical gardens
* Separate toilet to main bathroom
* Walking distance to shops, restaurants and cafes
* Within 1km of the beautiful beach of Normanville
Disclaimer:
Whilst every care has been taken to verify the accuracy of the details in this advertisement, For Sale By Owner (forsalebyowner.com.au Pty Ltd) cannot guarantee its correctness. Prospective buyers or tenants need to take such action as is necessary, to satisfy themselves of any pertinent matters.
Features
Bath, Fireplace(s), Heating, Entertainment Area, Garden, Garden Shed, Close to Shops, Quiet Location, Beach/Coastal Property, Air Conditioning, Ensuite, Internal Laundry, Pay TV Enabled, Polished Timber Floors, Outside Spa
Contact Karen on 0438 838 018 at First Paige Property Settlement Services for help with your Real Estate paperwork (Form 1 & Contracts) or email if you have questions. admin@firstpaigeform1.com
Visit WebsiteNeed a Home Loan?
Get pre-approved for a home loan within 48 hours. Click Here or more information.
- Last 24 Hours0
- Last 7 Days5
- Last 30 Days10
Views
Contact the Owner
Phone or Text: 0488 847 018
Enter Phone Code:
Enter Phone Code:
"*" indicates required fields
