92 John Lund Drive, Hope Island, QLD 4212
Sold Price Not Disclosed (13 Oct 2013)
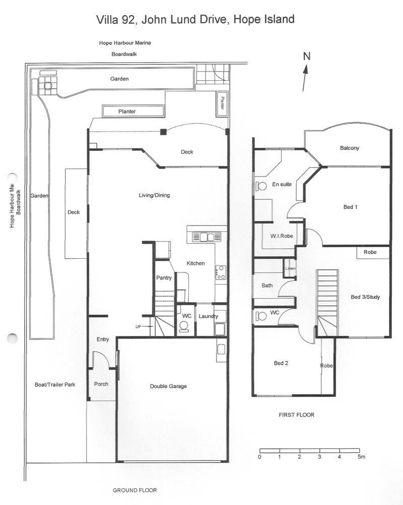
Waterfront Corner Position at Marina
Perfect if you like boating, fishing, or just being next to the water.
There is bridge free access to the Broadwater and to the ocean via the Gold Coast Seaway. 180 degree views over the boat harbour.
A fully fenced L shaped productive fully organic garden is bounded on two sides by the Marina boardwalk.
Grow your own vegies and bring inside to the large chef’s kitchen featuring custom made stainless steel bench tops, gas cooking, ample drawer storage and walk-in pantry.
This light and airy corner villa is special in the Hope Harbour Marina complex, having extra parking for a boat trailer next to the double lock-up garage.
The north facing main bedroom opens to a balcony overlooking the water with extensive views of the harbour and hinterland. The spacious en-suite bathroom has windows on three sides, spa bath, twin vanity and a walk-in wardrobe.
From the garden you can walk along the boardwalk to the corner store and Harbour Master, and further along past the swimming pool and tennis court to a delightful sandy beach area bordering the Coomera River.
Hope Harbour Marina is positioned in the heart of one of the most desirable locations on the Gold Coast. The Hope Island Shopping Centre, including Coles, is just moments away.
Brisbane Airport is less than one hour away, while the Gold Coast at Coolangatta can be reached in 45 minutes.
Three bedrooms, 2.5 bathrooms.
Split system air conditioning and ceiling fans.
Fully insulated roof space.
Whole of house water filtration system.
Low body corporate fees. Pet friendly.
Land Area: 218 sq.m.
Asking $559,000
Disclaimer:
Whilst every care has been taken to verify the accuracy of the details in this advertisement, For Sale By Owner (forsalebyowner.com.au Pty Ltd) cannot guarantee its correctness. Prospective buyers or tenants need to take such action as is necessary, to satisfy themselves of any pertinent matters.
There is bridge free access to the Broadwater and to the ocean via the Gold Coast Seaway. 180 degree views over the boat harbour.
A fully fenced L shaped productive fully organic garden is bounded on two sides by the Marina boardwalk.
Grow your own vegies and bring inside to the large chef’s kitchen featuring custom made stainless steel bench tops, gas cooking, ample drawer storage and walk-in pantry.
This light and airy corner villa is special in the Hope Harbour Marina complex, having extra parking for a boat trailer next to the double lock-up garage.
The north facing main bedroom opens to a balcony overlooking the water with extensive views of the harbour and hinterland. The spacious en-suite bathroom has windows on three sides, spa bath, twin vanity and a walk-in wardrobe.
From the garden you can walk along the boardwalk to the corner store and Harbour Master, and further along past the swimming pool and tennis court to a delightful sandy beach area bordering the Coomera River.
Hope Harbour Marina is positioned in the heart of one of the most desirable locations on the Gold Coast. The Hope Island Shopping Centre, including Coles, is just moments away.
Brisbane Airport is less than one hour away, while the Gold Coast at Coolangatta can be reached in 45 minutes.
Three bedrooms, 2.5 bathrooms.
Split system air conditioning and ceiling fans.
Fully insulated roof space.
Whole of house water filtration system.
Low body corporate fees. Pet friendly.
Land Area: 218 sq.m.
Asking $559,000
Disclaimer:
Whilst every care has been taken to verify the accuracy of the details in this advertisement, For Sale By Owner (forsalebyowner.com.au Pty Ltd) cannot guarantee its correctness. Prospective buyers or tenants need to take such action as is necessary, to satisfy themselves of any pertinent matters.
Features
Balcony/Patio/Terrace, Bath, Modern Kitchen, Renovated, Renovated Kitchen, Garden, Pet Friendly, Spa Bath/Jacuzzi, Tennis Court, Alarm System, Security Lights, Security Windows, Close to Parklands, Near Waterfront, Quiet Location, Views, Absolute Waterfront, Resort Property, Air Conditioning, Built-ins, Ensuite, Internal Laundry, Swimming/Lap Pool, Study, Dishwasher, Balcony, Courtyard, Website Featured Property
Need a Home Loan?
Get pre-approved for a home loan within 48 hours. Click Here or more information.
- Last 24 Hours1
- Last 7 Days5
- Last 30 Days10
Views
Contact the Owner
Phone or Text: 0488 847 018
Enter Phone Code:
Enter Phone Code:
"*" indicates required fields