Lot 45/19 Andrew James Crs, Hope Valley, SA 5090
Sold Price Not Disclosed (12 Jun 2014)
Adjacent Highbury
Quiet no through road. Top quality newly established homes in the street. Set in the foothills of the north-east with an open northerly aspect allowing for good winter sunlight.
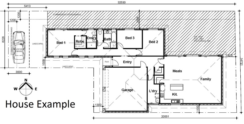
The concept plan attached is an example only and would require council consent but gives a good idea how a 3 bedroom home with double garage and visitor parking can be positioned on the allotment.
This is a rare opportunity. Take advantage of the $8,500 construction grant or $23,500 if you are a first home buyer. Enquire for more details.
Disclaimer:
Whilst every care has been taken to verify the accuracy of the details in this advertisement, For Sale By Owner (forsalebyowner.com.au Pty Ltd) cannot guarantee its correctness. Prospective buyers or tenants need to take such action as is necessary, to satisfy themselves of any pertinent matters.
The concept plan attached is an example only and would require council consent but gives a good idea how a 3 bedroom home with double garage and visitor parking can be positioned on the allotment.
This is a rare opportunity. Take advantage of the $8,500 construction grant or $23,500 if you are a first home buyer. Enquire for more details.
Disclaimer:
Whilst every care has been taken to verify the accuracy of the details in this advertisement, For Sale By Owner (forsalebyowner.com.au Pty Ltd) cannot guarantee its correctness. Prospective buyers or tenants need to take such action as is necessary, to satisfy themselves of any pertinent matters.
Features
Close to Transport, Quiet Location, Views, Ensuite
Contact Karen on 0438 838 018 at First Paige Property Settlement Services for help with your Real Estate paperwork (Form 1 & Contracts) or email if you have questions. admin@firstpaigeform1.com
Visit WebsiteNeed a Home Loan?
Get pre-approved for a home loan within 48 hours. Click Here or more information.
- Last 24 Hours0
- Last 7 Days0
- Last 30 Days0
Views
Contact the Owner
Phone or Text: 0488 847 018
Enter Phone Code when prompted.
Enter Phone Code when prompted.
"*" indicates required fields
