2/53 Dymock St, Balgownie, NSW 2519
Sold Price: 420,200 (14 Mar 2013)
A Home To Fall In Love With!
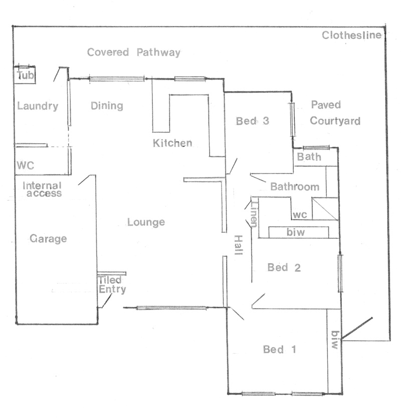
This light and airy 3-bedroom villa, set back from the road in a quiet group of only four, boasts an exceptionally well-planned layout, graciously styled with a nod to the federation era. It would suit first home owners, investors or downsizers alike.
The attractive kitchen is well appointed, with built-in oven/griller, bench hot plates, dishwasher, pantry and plenty of cupboard space. The informal dining area, which opens to a covered pathway to the courtyard, is off the kitchen, and flows seamlessly into a lounge room large enough to house a grand piano as well as your other furniture.
There are large built-ins in the spacious master bedroom, second bedroom and hallway. The bathroom has plenty of elbow room, and is equipped with safety railings to the bath, shower and toilet. The laundry (which also opens to the pathway) is adjacent to the dining room, with sliding-door access to a walk-in storage area and extra toilet. The courtyard is large enough for a small garden, and is suitable for BBQ and outdoor entertaining.
Other features include quality light fittings; attractive stained glass on the front door and leadlight on the kitchen cupboards; ducted reverse cycle air conditioning & heating; alarm system; single garage with internal access & remote-controlled roller door; and extra off-street parking for visitors.
The home is within an easy drive of several major shopping centres, and with a bus stop at your door, getting around couldn't be easier!
All this, and you get to enjoy the ambience of the nearby Balgownie village, with its shops, restaurants and historic pub.
Disclaimer:
Whilst every care has been taken to verify the accuracy of the details in this advertisement, For Sale By Owner (forsalebyowner.com.au Pty Ltd) cannot guarantee its correctness. Prospective buyers or tenants need to take such action as is necessary, to satisfy themselves of any pertinent matters.
The attractive kitchen is well appointed, with built-in oven/griller, bench hot plates, dishwasher, pantry and plenty of cupboard space. The informal dining area, which opens to a covered pathway to the courtyard, is off the kitchen, and flows seamlessly into a lounge room large enough to house a grand piano as well as your other furniture.
There are large built-ins in the spacious master bedroom, second bedroom and hallway. The bathroom has plenty of elbow room, and is equipped with safety railings to the bath, shower and toilet. The laundry (which also opens to the pathway) is adjacent to the dining room, with sliding-door access to a walk-in storage area and extra toilet. The courtyard is large enough for a small garden, and is suitable for BBQ and outdoor entertaining.
Other features include quality light fittings; attractive stained glass on the front door and leadlight on the kitchen cupboards; ducted reverse cycle air conditioning & heating; alarm system; single garage with internal access & remote-controlled roller door; and extra off-street parking for visitors.
The home is within an easy drive of several major shopping centres, and with a bus stop at your door, getting around couldn't be easier!
All this, and you get to enjoy the ambience of the nearby Balgownie village, with its shops, restaurants and historic pub.
Disclaimer:
Whilst every care has been taken to verify the accuracy of the details in this advertisement, For Sale By Owner (forsalebyowner.com.au Pty Ltd) cannot guarantee its correctness. Prospective buyers or tenants need to take such action as is necessary, to satisfy themselves of any pertinent matters.
Features
Bath, Heating, Modern Bathroom, Modern Kitchen, Garden, Shower Facilities, Alarm System, Security Windows, Close to Parklands, Close to Shops, Close to Transport, Quiet Location, Air Conditioning, Built-ins, Gas Enabled, Internal Laundry, Remote Garage, Dishwasher, Courtyard, Secure Parking, Ensuite
Need a Home Loan?
Get pre-approved for a home loan within 48 hours. Click Here or more information.
- Last 24 Hours2
- Last 7 Days9
- Last 30 Days14
Views
Contact the Owner
Phone or Text: 0488 847 018
Enter Phone Code:
Enter Phone Code:
"*" indicates required fields