10 Jersey Close, Calala, NSW 2340
Sold Price Not Disclosed (26 Jun 2022)
Virtual Tour
HOUSE AND LAND PACKAGE
The Phone Code for this property is: 50354. Please quote this number when phoning or texting.
Looking to build your new home but struggling to find a block of land or don't want the hassles of choosing colours & fittings? Then this is the perfect opportunity for you!
This stunning Hamptons style Avocca227 Stroud Homes design has taken all the stress out of building for you & is ready to start on a level 700sqm block in the popular Redbank Estate, Calala.
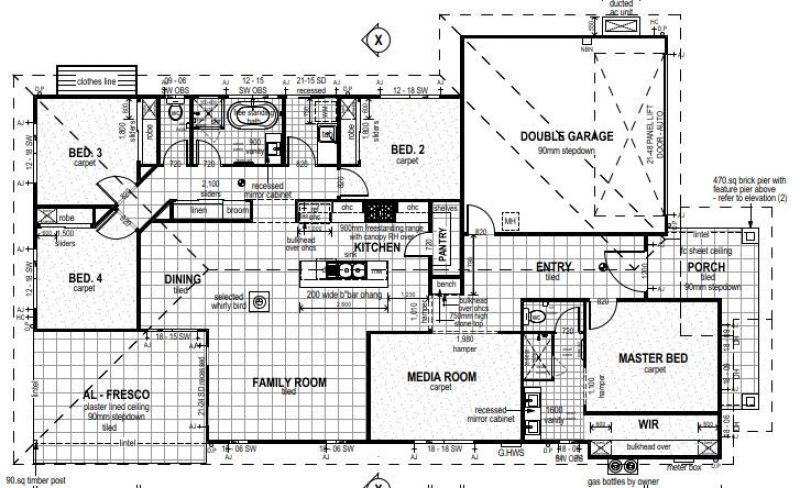
All the design work has been done for you with a classic Hamptons feel throughout.
Key features include:
* 2.7m ceiling height throughout
* Kitchen has a walk-in pantry, stone benchtops, dishwasher, 900mm oven with 5 burner gas cooktop & pendant lights over the breakfast bar
* Ducted reverse cycle heating and cooling for year round comfort & ease
* 4 bedrooms, robe fitout included to all rooms
* Main bathroom includes a freestanding bath, shower and separate toilet
* Tiling throughout the living areas, front porch & alfresco
* Open plan living area + a large separate media room
* Heat lights in both bathrooms
With a well thought out floor plan, standout fittings and stunning colour selections this home will give you the stylish wow factor you have been looking for!
Council plans have been approved and the builders are about to break ground this home will come as a complete package with mailbox, rain water tank and clothesline all you need is the furniture!
Disclaimer:
Whilst every care has been taken to verify the accuracy of the details in this advertisement, For Sale By Owner (forsalebyowner.com.au Pty Ltd) cannot guarantee its correctness. Prospective buyers or tenants need to take such action as is necessary, to satisfy themselves of any pertinent matters.
Looking to build your new home but struggling to find a block of land or don't want the hassles of choosing colours & fittings? Then this is the perfect opportunity for you!
This stunning Hamptons style Avocca227 Stroud Homes design has taken all the stress out of building for you & is ready to start on a level 700sqm block in the popular Redbank Estate, Calala.
All the design work has been done for you with a classic Hamptons feel throughout.
Key features include:
* 2.7m ceiling height throughout
* Kitchen has a walk-in pantry, stone benchtops, dishwasher, 900mm oven with 5 burner gas cooktop & pendant lights over the breakfast bar
* Ducted reverse cycle heating and cooling for year round comfort & ease
* 4 bedrooms, robe fitout included to all rooms
* Main bathroom includes a freestanding bath, shower and separate toilet
* Tiling throughout the living areas, front porch & alfresco
* Open plan living area + a large separate media room
* Heat lights in both bathrooms
With a well thought out floor plan, standout fittings and stunning colour selections this home will give you the stylish wow factor you have been looking for!
Council plans have been approved and the builders are about to break ground this home will come as a complete package with mailbox, rain water tank and clothesline all you need is the furniture!
Disclaimer:
Whilst every care has been taken to verify the accuracy of the details in this advertisement, For Sale By Owner (forsalebyowner.com.au Pty Ltd) cannot guarantee its correctness. Prospective buyers or tenants need to take such action as is necessary, to satisfy themselves of any pertinent matters.
Features
Air Conditioning, Bath, Built-ins, Dishwasher, Ensuite, Formal Lounge, Gas Enabled, Internal Laundry, Living Area, Modern Bathroom, Modern Kitchen, Remote Garage, Entertainment Area, Rainwater Tank, Security Lights, Close to Parklands, Close to Schools, Close to Shops, Close to Transport, Quiet Location
Need a Home Loan?
Get pre-approved for a home loan within 48 hours. Click Here or more information.
- Last 24 Hours0
- Last 7 Days1
- Last 30 Days1
Views
Contact the Owner
Phone or Text: 0488 847 018
Enter Phone Code: 50354
Enter Phone Code: 50354
"*" indicates required fields