34 McGrath Place, Goulburn, NSW 2580
Sold Price: 840,000 (19 Apr 2022)
The Perfect Ready Made Family Home Approximately 12 Months Old
The Phone Code for this property is: 11542. Please quote this number when phoning or texting.
If you are looking to upgrade and are searching for a new home, look no further. 34 McGrath Place is the perfect family home ready to go.
Located in a elevated position in the Ravensworth Heights estate, near the end of a quite cul-de-sac, towards the top of the hill, a property on offer in an elevated position like this is extremely hard to come by and must be seen to truly be appreciated.
You have some nice views over the Goulburn Township, nearby mountain side, able to see wind turbines from wind farms over 15kms away, overlooking the new and future residential developments, whilst been able to enjoy watching the sunset.
The property consists of
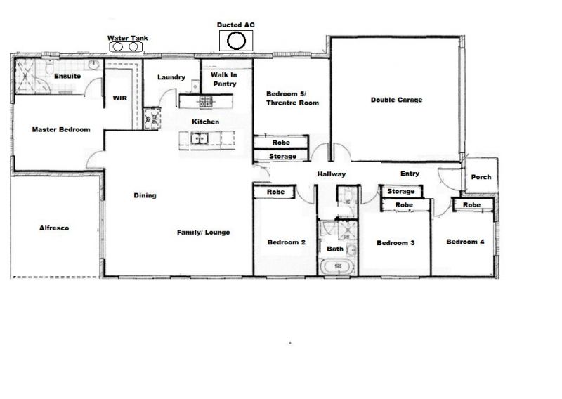
- 5 Bedrooms or 4 bedrooms and a separate theatre/ lounge area offering great flexibility
- Main with walk- in robe, plus oversized ensuite
- All 4 other bedrooms sliding robes
- Both Bathrooms Floor to ceiling tiles
- Very spacious open plan living, lounge area, the size will surprise
- Lots of storage Space
- Dimmable Led Lighting
- Kitchen with quality appliances, stone benchtops, generous size walk in pantry and many other bonuses
- Reverse Cycle Ducted Air-con
- Large tiled alfresco area
- 2 car garage with remote door
- Side access, perfect to use if you have a boat, caravan or other things which you won't fit in a garage
- Lots of yard space done properly with good drainage
- Colorbond fencing on all sides
- Multiple additional Inclusions and features
All of this on a elevated 700m2 block with many facilities like schools, Goulburn hospital, shops and more all within a 7 minute drive or less. 34 McGrath place is the perfect readymade family home and is a must see.
Disclaimer:
Whilst every care has been taken to verify the accuracy of the details in this advertisement, For Sale By Owner (forsalebyowner.com.au Pty Ltd) cannot guarantee its correctness. Prospective buyers or tenants need to take such action as is necessary, to satisfy themselves of any pertinent matters.
If you are looking to upgrade and are searching for a new home, look no further. 34 McGrath Place is the perfect family home ready to go.
Located in a elevated position in the Ravensworth Heights estate, near the end of a quite cul-de-sac, towards the top of the hill, a property on offer in an elevated position like this is extremely hard to come by and must be seen to truly be appreciated.
You have some nice views over the Goulburn Township, nearby mountain side, able to see wind turbines from wind farms over 15kms away, overlooking the new and future residential developments, whilst been able to enjoy watching the sunset.
The property consists of
- 5 Bedrooms or 4 bedrooms and a separate theatre/ lounge area offering great flexibility
- Main with walk- in robe, plus oversized ensuite
- All 4 other bedrooms sliding robes
- Both Bathrooms Floor to ceiling tiles
- Very spacious open plan living, lounge area, the size will surprise
- Lots of storage Space
- Dimmable Led Lighting
- Kitchen with quality appliances, stone benchtops, generous size walk in pantry and many other bonuses
- Reverse Cycle Ducted Air-con
- Large tiled alfresco area
- 2 car garage with remote door
- Side access, perfect to use if you have a boat, caravan or other things which you won't fit in a garage
- Lots of yard space done properly with good drainage
- Colorbond fencing on all sides
- Multiple additional Inclusions and features
All of this on a elevated 700m2 block with many facilities like schools, Goulburn hospital, shops and more all within a 7 minute drive or less. 34 McGrath place is the perfect readymade family home and is a must see.
Disclaimer:
Whilst every care has been taken to verify the accuracy of the details in this advertisement, For Sale By Owner (forsalebyowner.com.au Pty Ltd) cannot guarantee its correctness. Prospective buyers or tenants need to take such action as is necessary, to satisfy themselves of any pertinent matters.
Features
Air Conditioning, Ensuite, Fully Fenced, Internal Laundry, Living Area, Modern Bathroom, Modern Kitchen, Remote Garage, Entertainment Area, Garden Shed, Rainwater Tank, Quiet Location, Views
Need a Home Loan?
Get pre-approved for a home loan within 48 hours. Click Here or more information.
- Last 24 Hours1
- Last 7 Days2
- Last 30 Days2
Views
Contact the Owner
Phone or Text: 0488 847 018
Enter Phone Code: 11542
Enter Phone Code: 11542
"*" indicates required fields