33 Stoneyhurst Drive, Lennox Head, NSW 2478
Sold Price Not Disclosed (23 Feb 2026)
Premium Lot with Ocean and Hinterland Views
The Phone Code for this property is: 91421. Please quote this number when phoning or texting.
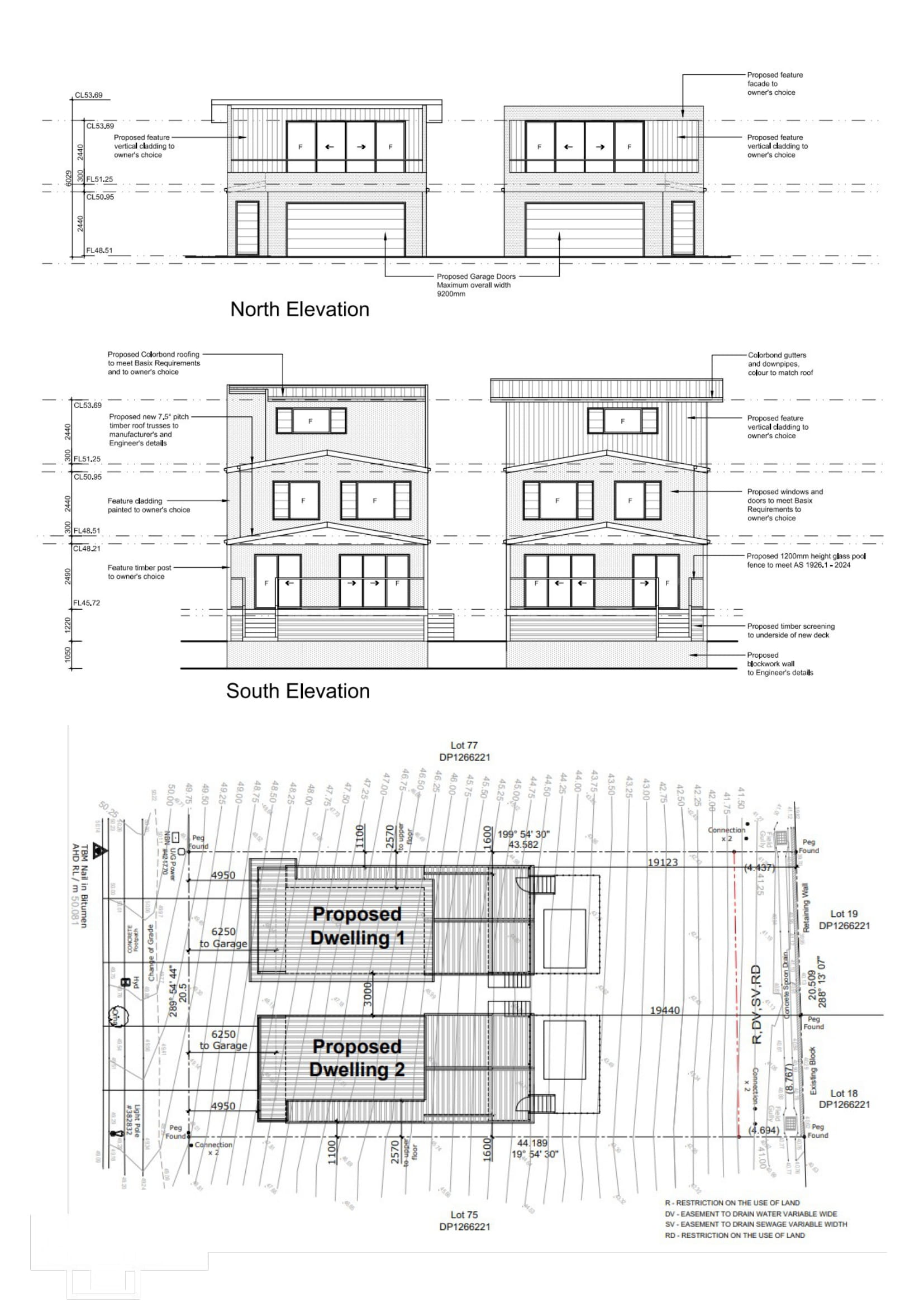
***CDC-compliant set of construction plans for a duplex design are available upon request***
Located along the exclusive ridgeline of the EPIQ estate in Lennox Head, this premium lot offers northerly ocean views to Byron Bay and elevated southerly views towards the hinterland.
This spacious 900sqm lot is ready to build your dream home or duplex development in one of the quietest streets in the EPIQ estate.
Located within a 5 minutes' drive of local schools, marketplaces, sporting fields and pristine beaches, you can enjoy the conveniences of nearby facilities whilst indulging in secluded ocean and hinterland views.
Don't miss your opportunity to secure one of the last remaining ocean-view lots in Lennox Head.
- Premium 900sqm lot with elevated ocean and hinterland views.
- Zoned R3 medium density with potential for a duplex development (soil and contour tests available upon request).
- Lot is registered and ready to build your dream home or duplex development.
- Take advantage of the flexibility this large lot offers including the option to build a single dwelling, strata-title and sell remaining land as seperate lot.
- Highly secluded and sought-after location in an exclusive estate.
- Walking distance to EPIQ marketplace and sporting fields.
- Less than 5 minute drive to downtown Lennox Head and beaches.
- 20 minute drive to Byron Bay.
- 15 minute drive to Ballina Byron Gateway Airport.
Disclaimer:
Whilst every care has been taken to verify the accuracy of the details in this advertisement, For Sale By Owner (forsalebyowner.com.au Pty Ltd) cannot guarantee its correctness. Prospective buyers or tenants need to take such action as is necessary, to satisfy themselves of any pertinent matters.
***CDC-compliant set of construction plans for a duplex design are available upon request***
Located along the exclusive ridgeline of the EPIQ estate in Lennox Head, this premium lot offers northerly ocean views to Byron Bay and elevated southerly views towards the hinterland.
This spacious 900sqm lot is ready to build your dream home or duplex development in one of the quietest streets in the EPIQ estate.
Located within a 5 minutes' drive of local schools, marketplaces, sporting fields and pristine beaches, you can enjoy the conveniences of nearby facilities whilst indulging in secluded ocean and hinterland views.
Don't miss your opportunity to secure one of the last remaining ocean-view lots in Lennox Head.
- Premium 900sqm lot with elevated ocean and hinterland views.
- Zoned R3 medium density with potential for a duplex development (soil and contour tests available upon request).
- Lot is registered and ready to build your dream home or duplex development.
- Take advantage of the flexibility this large lot offers including the option to build a single dwelling, strata-title and sell remaining land as seperate lot.
- Highly secluded and sought-after location in an exclusive estate.
- Walking distance to EPIQ marketplace and sporting fields.
- Less than 5 minute drive to downtown Lennox Head and beaches.
- 20 minute drive to Byron Bay.
- 15 minute drive to Ballina Byron Gateway Airport.
Disclaimer:
Whilst every care has been taken to verify the accuracy of the details in this advertisement, For Sale By Owner (forsalebyowner.com.au Pty Ltd) cannot guarantee its correctness. Prospective buyers or tenants need to take such action as is necessary, to satisfy themselves of any pertinent matters.
Need a Home Loan?
Get pre-approved for a home loan within 48 hours. Click Here or more information.
- Last 24 Hours0
- Last 7 Days1
- Last 30 Days5
Views
Contact the Owner
Phone or Text: 0488 847 018
Enter Phone Code: 91421
Enter Phone Code: 91421
"*" indicates required fields