1 Amber Court, Ulverstone, TAS 7315
Sold Price Not Disclosed (15 Feb 2022)
FULLY RENOVATED 4X2 HOUSE BY THE BEACH
The Phone Code for this property is: 70517. Please quote this number when phoning or texting.
Our beautiful 4 bedroom, 2 bathroom house for sale near the beach in Ulverstone. This house has been completely renovated in the last 12 months, with everything replaced new. All new wiring, plumbing, walls, ceiling, insulation. New light fittings, fixtures, curtains, carpets and floating floors. New bathrooms and toilets, new kitchen and laundry. New robes, built-ins, new hot water system, new r/c heatpump and wood fire. Everything completely renovated and new!
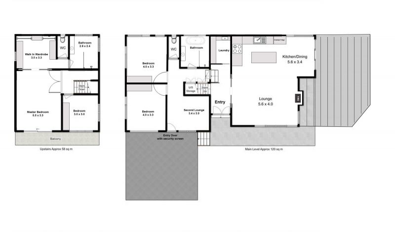
4 bedroom
2 bathroom, both with seperate toilets
2 living areas
1 double main with extra large walk in robe / dressing room
3 other bedrooms all with built in robes
Large outdoor deck and backyard
Upstairs you will find 2 bedrooms. 1 with built in robe and the other is the huge master with private balcony, connected massive walk in robe / dressing room which leads to private toilet and huge master ensuite.
The main floor consists of laundry with built in's, large living, dining and kitchen. All brand new with plumbed fridge/freezer, dishwasher and stove / cooktop. Free standing wood fire and reverse cycle heat pump. Double glass slider leads out to the large deck and backyard.
Downstairs you find a seperate entry with security screen, two bedrooms with built in robes, a second living area, and huge under stair storage. A seperate toilet and a second large bathroom with a large free standing bath and walk in shower.
The yard is very neat and tidy and low maintenance, with new lawn in the front and back yard, new hot water system and new clothes line.
Located within a very short walk to the Ulverstone foreshore, local primary and high schools and Ulverstone CBD.
Tucked away in a very quiet and desired area. 600m2 corner block.
All the work is done, move straight in with the option of fully furnished as seen in pictures (all furniture, tv's and white goods, top quality and in new condition)
Offers over $580k
Regretful sale as moving interstate.
Disclaimer:
Whilst every care has been taken to verify the accuracy of the details in this advertisement, For Sale By Owner (forsalebyowner.com.au Pty Ltd) cannot guarantee its correctness. Prospective buyers or tenants need to take such action as is necessary, to satisfy themselves of any pertinent matters.
Our beautiful 4 bedroom, 2 bathroom house for sale near the beach in Ulverstone. This house has been completely renovated in the last 12 months, with everything replaced new. All new wiring, plumbing, walls, ceiling, insulation. New light fittings, fixtures, curtains, carpets and floating floors. New bathrooms and toilets, new kitchen and laundry. New robes, built-ins, new hot water system, new r/c heatpump and wood fire. Everything completely renovated and new!
4 bedroom
2 bathroom, both with seperate toilets
2 living areas
1 double main with extra large walk in robe / dressing room
3 other bedrooms all with built in robes
Large outdoor deck and backyard
Upstairs you will find 2 bedrooms. 1 with built in robe and the other is the huge master with private balcony, connected massive walk in robe / dressing room which leads to private toilet and huge master ensuite.
The main floor consists of laundry with built in's, large living, dining and kitchen. All brand new with plumbed fridge/freezer, dishwasher and stove / cooktop. Free standing wood fire and reverse cycle heat pump. Double glass slider leads out to the large deck and backyard.
Downstairs you find a seperate entry with security screen, two bedrooms with built in robes, a second living area, and huge under stair storage. A seperate toilet and a second large bathroom with a large free standing bath and walk in shower.
The yard is very neat and tidy and low maintenance, with new lawn in the front and back yard, new hot water system and new clothes line.
Located within a very short walk to the Ulverstone foreshore, local primary and high schools and Ulverstone CBD.
Tucked away in a very quiet and desired area. 600m2 corner block.
All the work is done, move straight in with the option of fully furnished as seen in pictures (all furniture, tv's and white goods, top quality and in new condition)
Offers over $580k
Regretful sale as moving interstate.
Disclaimer:
Whilst every care has been taken to verify the accuracy of the details in this advertisement, For Sale By Owner (forsalebyowner.com.au Pty Ltd) cannot guarantee its correctness. Prospective buyers or tenants need to take such action as is necessary, to satisfy themselves of any pertinent matters.
Need a Home Loan?
Get pre-approved for a home loan within 48 hours. Click Here or more information.
- Last 24 Hours0
- Last 7 Days0
- Last 30 Days5
Views
Contact the Owner
Phone or Text: 0488 847 018
Enter Phone Code 70517 when prompted.
Enter Phone Code 70517 when prompted.
"*" indicates required fields