4/59-61 Rosewater Tce, Ottoway, SA 5013
Sold Price: 335,000 (26 Nov 2021)
IDEAL FIRST HOME OR INVEStMENT
Neat as a pin, this lovely town house is in a quiet and private location, just 8 kilometers from Port Adelaide shopping precinct.
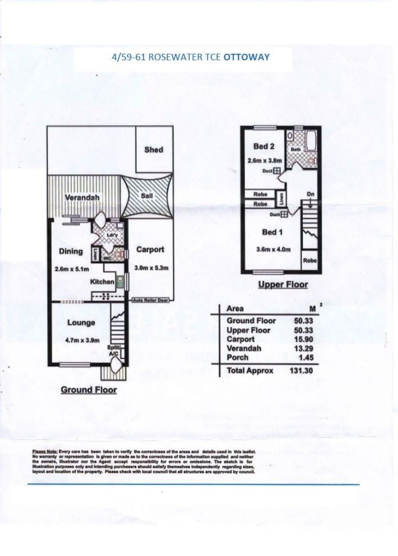
Upstairs - 2 carpeted bedrooms with built in robes and full length mirrors. The master bedroom also featuring a second smaller walk in robe. Linen cupboard. Bathroom with bath, shower and compact vanity.
Downstairs you will find updated kitchen with stainless steel appliances, tons of storage with a large 2 door pantry and a separate dining space. Compact laundry has its own door to the outside and second w/c.
Extra features include solar panels, roller shutters and reverse cycle air conditioner.
The Phone Code for this property is: 11098. Please quote this number when phoning or texting.
Disclaimer:
Whilst every care has been taken to verify the accuracy of the details in this advertisement, For Sale By Owner (forsalebyowner.com.au Pty Ltd) cannot guarantee its correctness. Prospective buyers or tenants need to take such action as is necessary, to satisfy themselves of any pertinent matters.
Upstairs - 2 carpeted bedrooms with built in robes and full length mirrors. The master bedroom also featuring a second smaller walk in robe. Linen cupboard. Bathroom with bath, shower and compact vanity.
Downstairs you will find updated kitchen with stainless steel appliances, tons of storage with a large 2 door pantry and a separate dining space. Compact laundry has its own door to the outside and second w/c.
Extra features include solar panels, roller shutters and reverse cycle air conditioner.
The Phone Code for this property is: 11098. Please quote this number when phoning or texting.
Disclaimer:
Whilst every care has been taken to verify the accuracy of the details in this advertisement, For Sale By Owner (forsalebyowner.com.au Pty Ltd) cannot guarantee its correctness. Prospective buyers or tenants need to take such action as is necessary, to satisfy themselves of any pertinent matters.
Contact Karen on 0438 838 018 at First Paige Property Settlement Services for help with your Real Estate paperwork (Form 1 & Contracts) or email if you have questions. admin@firstpaigeform1.com
Visit WebsiteNeed a Home Loan?
Get pre-approved for a home loan within 48 hours. Click Here or more information.
- Last 24 Hours0
- Last 7 Days0
- Last 30 Days4
Views
Contact the Owner
Phone or Text: 0488 847 018
Enter Phone Code: 11098
Enter Phone Code: 11098
"*" indicates required fields
