643 Forth Rd, Forth, TAS 7310
Sold Price: 749,000 (17 Dec 2021)
Grand Character Home steeped in history
We are selling our property!
This grand character home sitting in the quaint little township of Forth is a big part of the town's history.
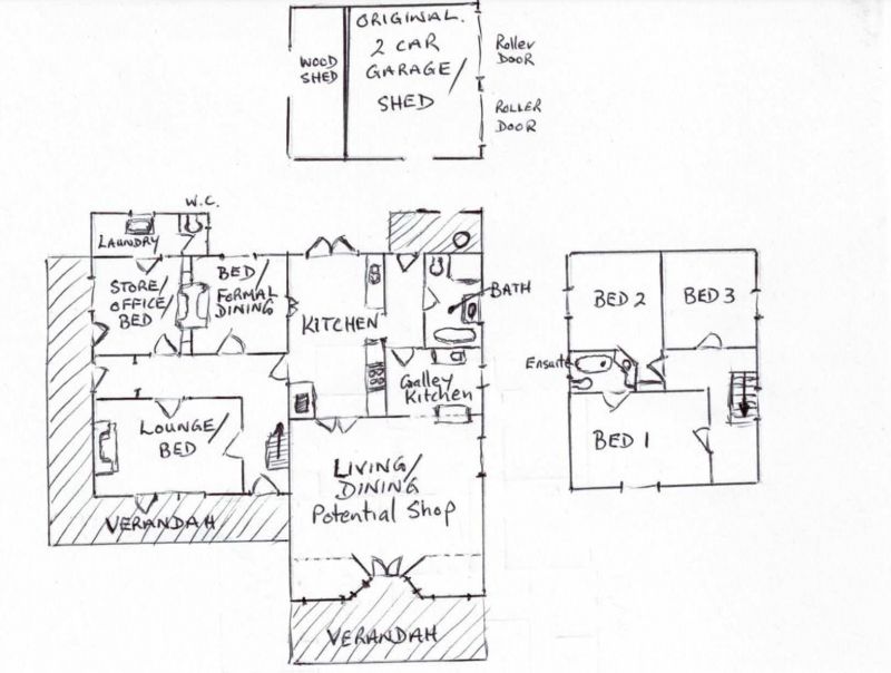
Built in 1869 the original village store was rebuilt in 1910 with a larger ground floor and second story.
Extensively restored and renovated the large home has numerous living options including 4 bedrooms, 2 living areas, bathroom and en-suite, 3 toilets, formal dining room, study or craft room, and even the option for a store front.
The property of approximately 1266sqm has beautiful gardens, a natural water feature and permanent creek, and a shed with character.
Situated close to the Forth River, this peaceful township will capture your imagination for calm and stress-free living.
It's only a short drive into any of the Coastal towns including Devonport, Ulverstone, and the Turners Beach and Leith area.
The expansive home offers plenty of room for a larger family or potential for Airbnb, with lake Barrington and mountain bike tracks close by, and it is en route to Cradle Mountain, which is Tassie's most popular tourist destination.
The wrap-around veranda at 2 sides of the house offers views over the magical garden.
The wood heater, off-peak heat bank, and reverse cycle air conditioning system keep you warm and super comfortable all year round!
Solar panels keep the cost of electricity at a minimum.
This leaves nothing to do but move in and enjoy the peace and tranquillity this sensational home has to offer!
Outside there are established fruit trees (apples, quince, apricots, plums) as well as a grapevine, and the beautiful cottage gardens surround the home for all year blooming.
There is a storage shed and the 1270 square meter block comes with the added bonus of a permanent creek at the bottom of the lawn, offering you the possibility to be self-sufficient.
A lovely outdoor area offers the perfect spot for those summer BBQs with family and friends while you watch the kids explore.
The yard is pet/kid secure.
Located in the pretty, historic township of Forth only a 10-minute drive (approx) to Devonport or Ulverstone CBD plus only 7 minutes (approx) from the Splash Aquatic Centre, 5 minutes to the beach, 1 hour from Cradle Mountain, and 500 meters from the legendary Forth Primary School, this spectacular home is definitely one of a kind!
Offers over $749.000
Please call for your private inspection of this charming property.
The Phone Code for this property is: 61009. Please quote this number when phoning or texting.
Disclaimer:
Whilst every care has been taken to verify the accuracy of the details in this advertisement, For Sale By Owner (forsalebyowner.com.au Pty Ltd) cannot guarantee its correctness. Prospective buyers or tenants need to take such action as is necessary, to satisfy themselves of any pertinent matters.
This grand character home sitting in the quaint little township of Forth is a big part of the town's history.
Built in 1869 the original village store was rebuilt in 1910 with a larger ground floor and second story.
Extensively restored and renovated the large home has numerous living options including 4 bedrooms, 2 living areas, bathroom and en-suite, 3 toilets, formal dining room, study or craft room, and even the option for a store front.
The property of approximately 1266sqm has beautiful gardens, a natural water feature and permanent creek, and a shed with character.
Situated close to the Forth River, this peaceful township will capture your imagination for calm and stress-free living.
It's only a short drive into any of the Coastal towns including Devonport, Ulverstone, and the Turners Beach and Leith area.
The expansive home offers plenty of room for a larger family or potential for Airbnb, with lake Barrington and mountain bike tracks close by, and it is en route to Cradle Mountain, which is Tassie's most popular tourist destination.
The wrap-around veranda at 2 sides of the house offers views over the magical garden.
The wood heater, off-peak heat bank, and reverse cycle air conditioning system keep you warm and super comfortable all year round!
Solar panels keep the cost of electricity at a minimum.
This leaves nothing to do but move in and enjoy the peace and tranquillity this sensational home has to offer!
Outside there are established fruit trees (apples, quince, apricots, plums) as well as a grapevine, and the beautiful cottage gardens surround the home for all year blooming.
There is a storage shed and the 1270 square meter block comes with the added bonus of a permanent creek at the bottom of the lawn, offering you the possibility to be self-sufficient.
A lovely outdoor area offers the perfect spot for those summer BBQs with family and friends while you watch the kids explore.
The yard is pet/kid secure.
Located in the pretty, historic township of Forth only a 10-minute drive (approx) to Devonport or Ulverstone CBD plus only 7 minutes (approx) from the Splash Aquatic Centre, 5 minutes to the beach, 1 hour from Cradle Mountain, and 500 meters from the legendary Forth Primary School, this spectacular home is definitely one of a kind!
Offers over $749.000
Please call for your private inspection of this charming property.
The Phone Code for this property is: 61009. Please quote this number when phoning or texting.
Disclaimer:
Whilst every care has been taken to verify the accuracy of the details in this advertisement, For Sale By Owner (forsalebyowner.com.au Pty Ltd) cannot guarantee its correctness. Prospective buyers or tenants need to take such action as is necessary, to satisfy themselves of any pertinent matters.
Features
Air Conditioning, Bath, Broadband, Dishwasher, Ensuite, Fireplace(s), Formal Lounge, Fully Fenced, Gas Enabled, Heating, Internal Laundry, Living Area, Modern Bathroom, Modern Kitchen, Polished Timber Floors, Remote Garage, Renovated, Separate Dining Room, Study, Courtyard, Entertainment Area, Garden, Garden Shed, Secure Parking, Shower Facilities, Solar Panels, Storage Area, Unlevel Lawn, Workshop, Close to Parklands, Close to Schools, Close to Shops, Views, Non Smoking
Need a Home Loan?
Get pre-approved for a home loan within 48 hours. Click Here or more information.
- Last 24 Hours0
- Last 7 Days0
- Last 30 Days7
Views
Contact the Owner
Phone or Text: 0488 847 018
Enter Phone Code: 61009
Enter Phone Code: 61009
"*" indicates required fields