11/43 Western Ave, Montville, QLD 4560
Sold Price Not Disclosed (20 Dec 2021)
abc
Three BR home in a picturesque community in the Blackall Range, Sunshine Coast Hinterland adjacent to a park near the main street of the iconic Montville Village.
The home is in the exclusive Rangers Estate, established on 17 acres of parkland which is pristinely maintained among two spring fed lagoons, with a tennis/pickleball court and a community Rotunda with BBQ facilities.
The home is conveniently located within easy walking distance via a private access to the Montville main street. The village includes an IGA, Pharmacy, Medical Centre, News agency, and a variety of coffee shops and craft outlets. The primary school is within just 150 metres as is a public bus service.
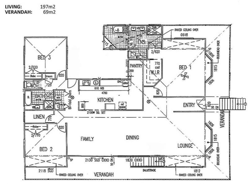
Features of the house design include a large master bedroom , with a walk in change room and ensuite. The two bathrooms have a full size bath and separate showers. The second and third bedrooms have built in wardrobes. A large living area combines dining and lounge and includes a built in work station. A sun deck is on the east side in a sheltered position.
The elevated house internally is on one level. Polished Blackbutt timber flooring is a particular feature throughout. A butlers pantry is part of the kitchen work area.
Verandah surrounds three sides.
The two vehicle garage under the house has 3x20000 ltr. rain water tanks, workshop area, tool shed and ample storage room with space for a trailer.
The estate is a safe gated community. There is a Body Corporate with the fees of approx. $700 per quarter.
Realistically priced at $940k. For an inspection enquire by phone or apply via email.
The Phone Code for this property is: 68241. Please quote this number when phoning or texting.
Disclaimer:
Whilst every care has been taken to verify the accuracy of the details in this advertisement, For Sale By Owner (forsalebyowner.com.au Pty Ltd) cannot guarantee its correctness. Prospective buyers or tenants need to take such action as is necessary, to satisfy themselves of any pertinent matters.
The home is in the exclusive Rangers Estate, established on 17 acres of parkland which is pristinely maintained among two spring fed lagoons, with a tennis/pickleball court and a community Rotunda with BBQ facilities.
The home is conveniently located within easy walking distance via a private access to the Montville main street. The village includes an IGA, Pharmacy, Medical Centre, News agency, and a variety of coffee shops and craft outlets. The primary school is within just 150 metres as is a public bus service.
Features of the house design include a large master bedroom , with a walk in change room and ensuite. The two bathrooms have a full size bath and separate showers. The second and third bedrooms have built in wardrobes. A large living area combines dining and lounge and includes a built in work station. A sun deck is on the east side in a sheltered position.
The elevated house internally is on one level. Polished Blackbutt timber flooring is a particular feature throughout. A butlers pantry is part of the kitchen work area.
Verandah surrounds three sides.
The two vehicle garage under the house has 3x20000 ltr. rain water tanks, workshop area, tool shed and ample storage room with space for a trailer.
The estate is a safe gated community. There is a Body Corporate with the fees of approx. $700 per quarter.
Realistically priced at $940k. For an inspection enquire by phone or apply via email.
The Phone Code for this property is: 68241. Please quote this number when phoning or texting.
Disclaimer:
Whilst every care has been taken to verify the accuracy of the details in this advertisement, For Sale By Owner (forsalebyowner.com.au Pty Ltd) cannot guarantee its correctness. Prospective buyers or tenants need to take such action as is necessary, to satisfy themselves of any pertinent matters.
Need a Home Loan?
Get pre-approved for a home loan within 48 hours. Click Here or more information.
- Last 24 Hours0
- Last 7 Days0
- Last 30 Days4
Views
Contact the Owner
Phone or Text: 0488 847 018
Enter Phone Code: 68241
Enter Phone Code: 68241
"*" indicates required fields