57 Hubbards Road North, Wootton, NSW 2423
Sold Price Not Disclosed (29 Oct 2021)
Income and Lifestyle Acreage- Rainfall, Soil and Beaches
The Phone Code for this property is: 80722. Please quote this number when phoning or texting.
Comprising 188 acres of lush country over 2 lots, this rural gem hits all the right notes for the urban sophisticate looking for a tree change, or a budding farmer seeking to pursue one's passion.
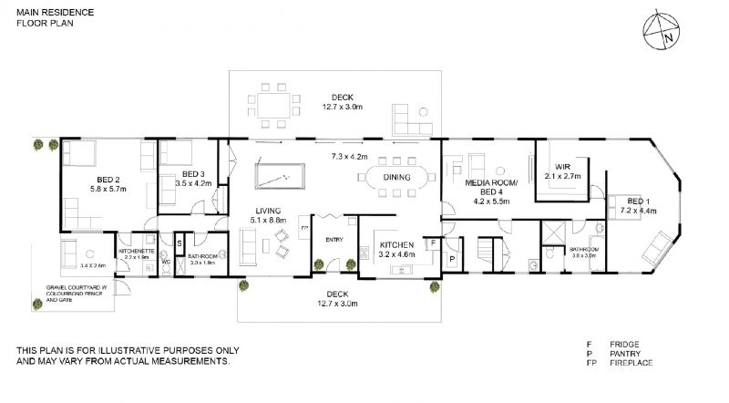
The main residence is an elegantly proportioned Western Red Cedar 3/4 bedroom home perched on the highest point, with stunning panoramic views from every room. Originally built in 1990, it has recently been lovingly restored and mindfully renovated to enhance its timeless design. Features include a brand new stone kitchen complete with European 900mm 5 burner cooktop and self cleaning pyrolytic steam convection oven, under floor heating and spa bath in the ensuite, fireplace and gas outlets, functional layout with potential for duplex living. The double-brick basement houses a triple car garage, storage area and potential cellar.
In addition, there is a modern and spacious 2 bedroom cottage complete with a new stainless steel kitchen and bathroom. Solar heated hot water and a slow combustion wood heater keep bills low while a large fully fenced backyard safeguards fur babies. There is a large wrap-around verandah and carport. The cottage has been an Airbnb favourite averaging 4.8/5 pts in reviews with frequent returning guests.
Detailed IM and additional plans are available upon request.
Additional infrastructure:
Inground pool with new saltwater pump
Large all steel frame 3 bay 9m x 24m machinery shed with separate manager's room and full concrete flooring. Skillion cover is 24m x 5m
110,000 Litre Water Tank for Main Homestead
2 x 22,500 Litre Water Tanks for Cottage
2 x 45,000 Litre Water Tanks for Shed
22,500 Litre Water Tank and pump for Paddocks
Cattle Yard
Greenhouse
2 Spring Fed Dams
4 Stock Dams
7 large grazing paddocks
Dedicated Chook paddocks
The property is mostly cleared and offers highly fertile red soils on undulating paddocks. The area is renowned for its enviably consistent high rainfall - approx. 1,250mm pa.
With excellent soil and good rainfall the land is open to many possibilities - continue to run cattle (approx. 80 cows and calves) or branch out to macadamia, avocado, fruit farming and cropping. There is possibility to take over the current boutique bio- dynamic egg farming operation.
10mins M1 motorway, 30mins Nabiac or 20 mins Bulahdelah
20mins Seal Rocks for great beaches and fishing
30mins Blueys Beach
40ins to Forster
50mins to Taree
90mins to Newcastle
Disclaimer:
Whilst every care has been taken to verify the accuracy of the details in this advertisement, For Sale By Owner (forsalebyowner.com.au Pty Ltd) cannot guarantee its correctness. Prospective buyers or tenants need to take such action as is necessary, to satisfy themselves of any pertinent matters.
Comprising 188 acres of lush country over 2 lots, this rural gem hits all the right notes for the urban sophisticate looking for a tree change, or a budding farmer seeking to pursue one's passion.
The main residence is an elegantly proportioned Western Red Cedar 3/4 bedroom home perched on the highest point, with stunning panoramic views from every room. Originally built in 1990, it has recently been lovingly restored and mindfully renovated to enhance its timeless design. Features include a brand new stone kitchen complete with European 900mm 5 burner cooktop and self cleaning pyrolytic steam convection oven, under floor heating and spa bath in the ensuite, fireplace and gas outlets, functional layout with potential for duplex living. The double-brick basement houses a triple car garage, storage area and potential cellar.
In addition, there is a modern and spacious 2 bedroom cottage complete with a new stainless steel kitchen and bathroom. Solar heated hot water and a slow combustion wood heater keep bills low while a large fully fenced backyard safeguards fur babies. There is a large wrap-around verandah and carport. The cottage has been an Airbnb favourite averaging 4.8/5 pts in reviews with frequent returning guests.
Detailed IM and additional plans are available upon request.
Additional infrastructure:
Inground pool with new saltwater pump
Large all steel frame 3 bay 9m x 24m machinery shed with separate manager's room and full concrete flooring. Skillion cover is 24m x 5m
110,000 Litre Water Tank for Main Homestead
2 x 22,500 Litre Water Tanks for Cottage
2 x 45,000 Litre Water Tanks for Shed
22,500 Litre Water Tank and pump for Paddocks
Cattle Yard
Greenhouse
2 Spring Fed Dams
4 Stock Dams
7 large grazing paddocks
Dedicated Chook paddocks
The property is mostly cleared and offers highly fertile red soils on undulating paddocks. The area is renowned for its enviably consistent high rainfall - approx. 1,250mm pa.
With excellent soil and good rainfall the land is open to many possibilities - continue to run cattle (approx. 80 cows and calves) or branch out to macadamia, avocado, fruit farming and cropping. There is possibility to take over the current boutique bio- dynamic egg farming operation.
10mins M1 motorway, 30mins Nabiac or 20 mins Bulahdelah
20mins Seal Rocks for great beaches and fishing
30mins Blueys Beach
40ins to Forster
50mins to Taree
90mins to Newcastle
Disclaimer:
Whilst every care has been taken to verify the accuracy of the details in this advertisement, For Sale By Owner (forsalebyowner.com.au Pty Ltd) cannot guarantee its correctness. Prospective buyers or tenants need to take such action as is necessary, to satisfy themselves of any pertinent matters.
Features
Balcony/Patio/Terrace, Basement, Bath, Broadband, Built-ins, Deck, Dishwasher, Fireplace(s), Balcony, Courtyard, Quiet Location, Views, Nature Property, Prestige Property, Non Smoking
Need a Home Loan?
Get pre-approved for a home loan within 48 hours. Click Here or more information.
- Last 24 Hours0
- Last 7 Days0
- Last 30 Days0
Views
Contact the Owner
Phone or Text: 0488 847 018
Enter Phone Code: 80722
Enter Phone Code: 80722
"*" indicates required fields