4-6 Mcculloch Ave, Margate, QLD 4019
Sold Price Not Disclosed (06 Feb 2022)
Open to Expressions of Interest
The Phone Code for this property is: 57328. Please quote this number when phoning or texting.
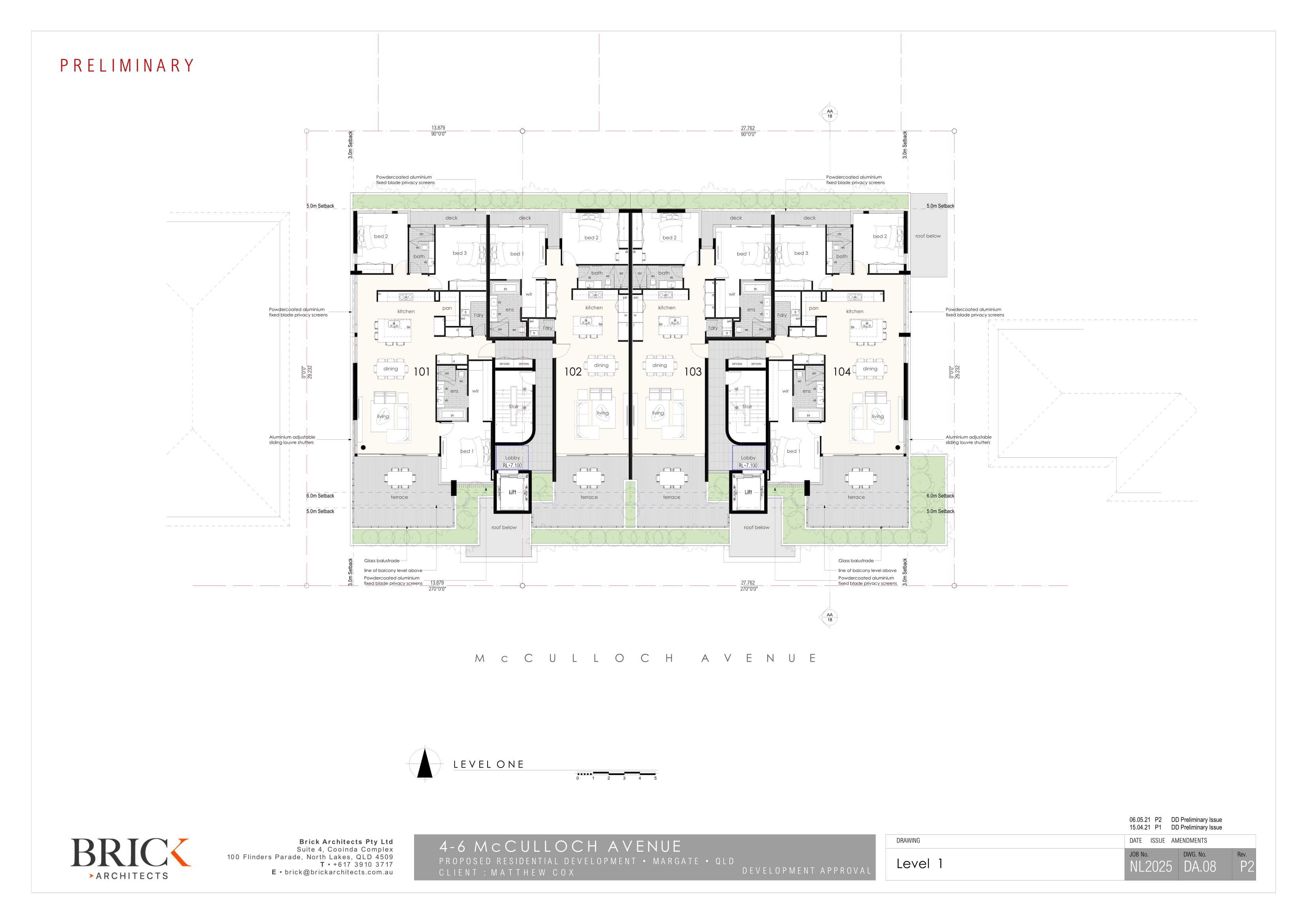
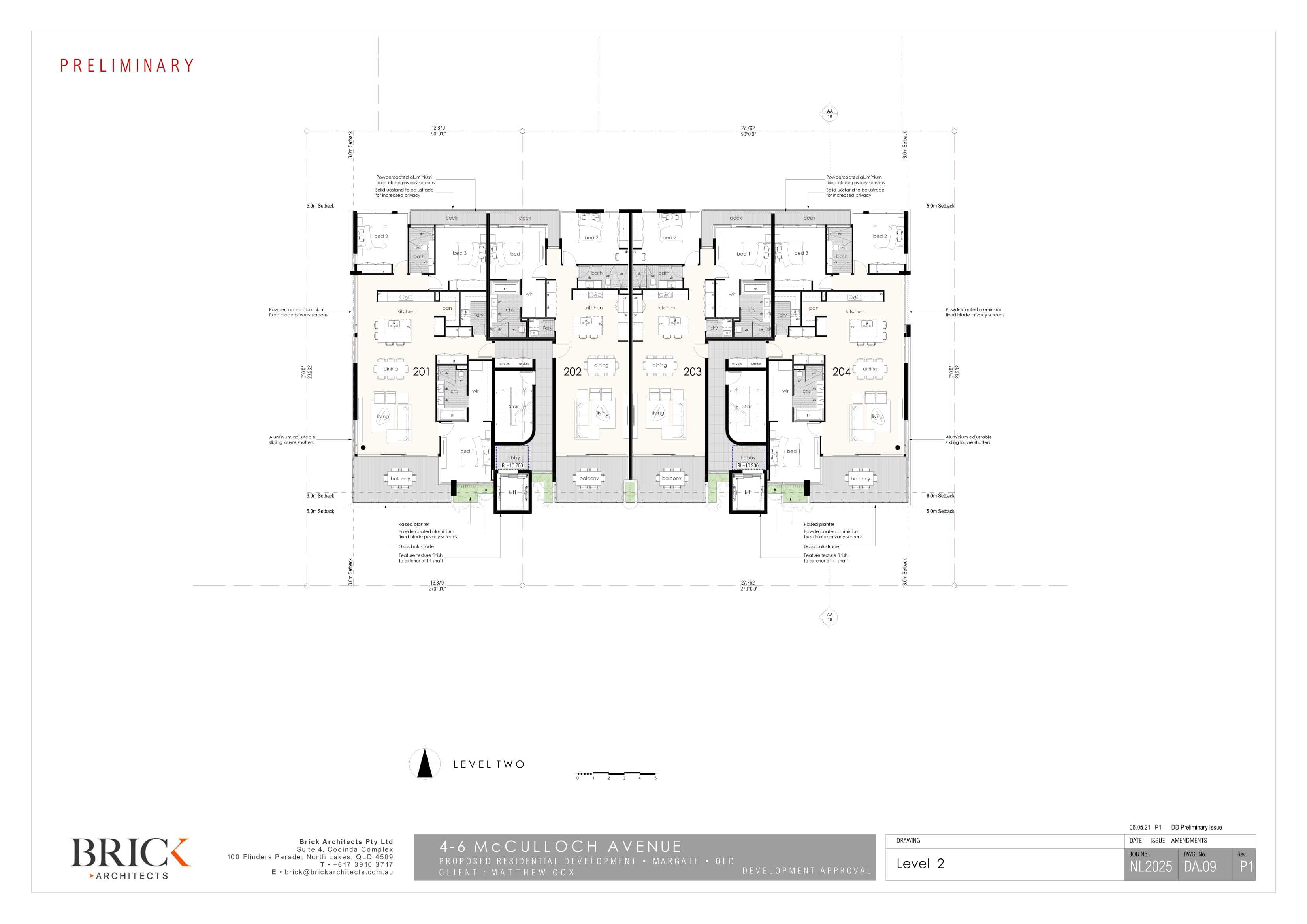
DEVELOPMENT OPPORTUNITY
4-6 McCulloch Avenue, Margate
CONTRACT HAS FALLEN OVER
DA APPROVAL GIVEN
A huge 1217m2 block of land is available for purchase with over 40m of frontage on McCulloch Avenue.
Expressions of interest are now being taken for this PRIME development opportunity in a prestigious location less than 90m from the waterfront. Architectural plans created by the award winning Brick Architects, have been submitted to council and DA approval for a 20 apartment block has been given, with the paperwork expected this wee. The planned development will have premium 2 and 3 bedroom apartments with fabulous ocean views.
There are currently 2 properties on the titles, both occupied by longstanding tenants on short-term leases. Current annual rental income is $73000 should you need/want a holding income.
.
Margate is a vibrant town in Brisbane's bayside with trendy cafes and eateries, white sandy beaches, a 2km waterfront boardwalk and boutique retail outlets. There are rail and bus links to the CBD, Brisbane Airport and Sunshine Coast with further upgrades still in progress.
Private sale by owner. Further details are available on request.
Disclaimer:
Whilst every care has been taken to verify the accuracy of the details in this advertisement, For Sale By Owner (forsalebyowner.com.au Pty Ltd) cannot guarantee its correctness. Prospective buyers or tenants need to take such action as is necessary, to satisfy themselves of any pertinent matters.
DEVELOPMENT OPPORTUNITY
4-6 McCulloch Avenue, Margate
CONTRACT HAS FALLEN OVER
DA APPROVAL GIVEN
A huge 1217m2 block of land is available for purchase with over 40m of frontage on McCulloch Avenue.
Expressions of interest are now being taken for this PRIME development opportunity in a prestigious location less than 90m from the waterfront. Architectural plans created by the award winning Brick Architects, have been submitted to council and DA approval for a 20 apartment block has been given, with the paperwork expected this wee. The planned development will have premium 2 and 3 bedroom apartments with fabulous ocean views.
There are currently 2 properties on the titles, both occupied by longstanding tenants on short-term leases. Current annual rental income is $73000 should you need/want a holding income.
.
Margate is a vibrant town in Brisbane's bayside with trendy cafes and eateries, white sandy beaches, a 2km waterfront boardwalk and boutique retail outlets. There are rail and bus links to the CBD, Brisbane Airport and Sunshine Coast with further upgrades still in progress.
Private sale by owner. Further details are available on request.
Disclaimer:
Whilst every care has been taken to verify the accuracy of the details in this advertisement, For Sale By Owner (forsalebyowner.com.au Pty Ltd) cannot guarantee its correctness. Prospective buyers or tenants need to take such action as is necessary, to satisfy themselves of any pertinent matters.
Features
Close to Parklands, Close to Schools, Close to Shops, Close to Transport, Near Waterfront, Views, Beach/Coastal Property, Retirement Property, Website Featured Property
Need a Home Loan?
Get pre-approved for a home loan within 48 hours. Click Here or more information.
- Last 24 Hours0
- Last 7 Days1
- Last 30 Days6
Views
Contact the Owner
Phone or Text: 0488 847 018
Enter Phone Code: 57328
Enter Phone Code: 57328
"*" indicates required fields