3 Mylon Court, Wodonga, VIC 3690
Sold Price: 360,000 (14 Sep 2021)
Central and renovated
The Phone Code for this property is: 34745. Please quote this number when phoning or texting.
This well presented and recently renovated home is located a stones throw from walking/cycling tracks, playgrounds, sports facilities and schools. Wodonga's main street is a short stroll away. Located in a quiet court and with established gardens and fruit trees this home offers peaceful living with everything you need close by.
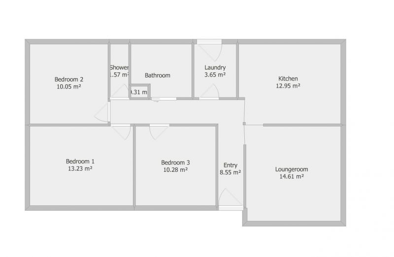
Inside the home you will find that it has been tastefully renovated throughout. Built in wardrobes and shelving are a feature of all bedrooms and the property is well suited to working from home. The light and airy bedrooms and living areas allow plenty of northern light. New flooring exists throughout the home including new carpet in the bedrooms and polished floorboards in the kitchen and living area. The kitchen is appointed with a gas stove and features new benchtop and sink. The home will remain comfortable all year round with newly installed ducted gas heating and evaporative air conditioning.
Outdoor living is also made easy with large front and rear verandahs and established trees providing shade. The gravel area will be attractive to those who need storage space for a trailer or set up a fire pit. The garage is very long providing ample space for vehicle storage or for a workshop.
This home has got plenty for everyone and is well suited to a first home buyer, tradie, down sizer or investor. Expected rental value of $360 per week.
Disclaimer:
Whilst every care has been taken to verify the accuracy of the details in this advertisement, For Sale By Owner (forsalebyowner.com.au Pty Ltd) cannot guarantee its correctness. Prospective buyers or tenants need to take such action as is necessary, to satisfy themselves of any pertinent matters.
This well presented and recently renovated home is located a stones throw from walking/cycling tracks, playgrounds, sports facilities and schools. Wodonga's main street is a short stroll away. Located in a quiet court and with established gardens and fruit trees this home offers peaceful living with everything you need close by.
Inside the home you will find that it has been tastefully renovated throughout. Built in wardrobes and shelving are a feature of all bedrooms and the property is well suited to working from home. The light and airy bedrooms and living areas allow plenty of northern light. New flooring exists throughout the home including new carpet in the bedrooms and polished floorboards in the kitchen and living area. The kitchen is appointed with a gas stove and features new benchtop and sink. The home will remain comfortable all year round with newly installed ducted gas heating and evaporative air conditioning.
Outdoor living is also made easy with large front and rear verandahs and established trees providing shade. The gravel area will be attractive to those who need storage space for a trailer or set up a fire pit. The garage is very long providing ample space for vehicle storage or for a workshop.
This home has got plenty for everyone and is well suited to a first home buyer, tradie, down sizer or investor. Expected rental value of $360 per week.
Disclaimer:
Whilst every care has been taken to verify the accuracy of the details in this advertisement, For Sale By Owner (forsalebyowner.com.au Pty Ltd) cannot guarantee its correctness. Prospective buyers or tenants need to take such action as is necessary, to satisfy themselves of any pertinent matters.
Due Diligence Checklist
Before you buy a home or vacant residential land, you should be aware of a range of issues that may affect that property and impose restrictions or obligations on you, if you buy it. Click Here to read more.
Need a Home Loan?
Get pre-approved for a home loan within 48 hours. Click Here or more information.
- Last 24 Hours0
- Last 7 Days1
- Last 30 Days5
Views
Contact the Owner
Phone or Text: 0488 847 018
Enter Phone Code: 34745
Enter Phone Code: 34745
"*" indicates required fields