118 Burradoo Road, Burradoo, NSW 2576
Sold Price: 3,500,000 (27 Aug 2021)
Amaroo is a magnificent near new Burradoo family manor
** Inspect by appointment only subject to COVID-19. If you are affected by the current stay at home orders, please contact us and we can arrange a virtual inspection.*****
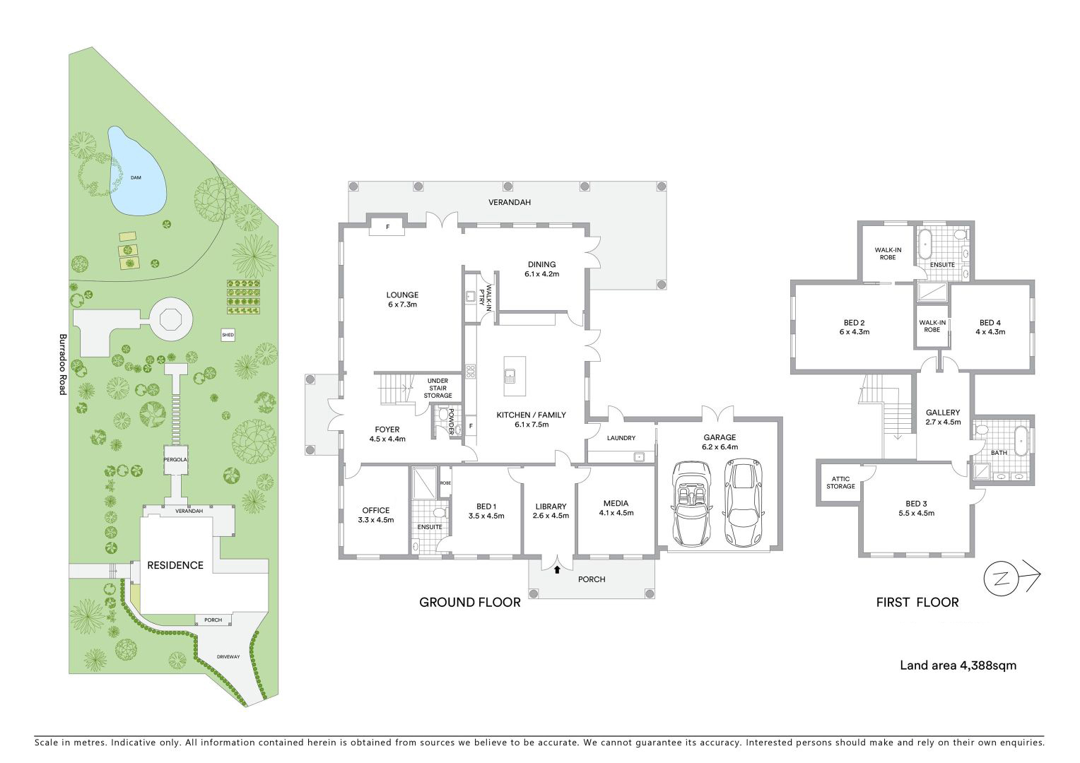
Amaroo, translated as beatiful place, is a magnificent near new Burradoo family manor on 4388 sqm of established gardens
Commanding a blue-ribbon Burradoo address, positioned on the high side of a wide, tree lined avenue, nested among some of the best Burradoo homes, this glorious, individually designed family residence presents a fusion of contemporary elegance and uncompromised luxury.
The location is most convenient, with a 5 min stroll to Burradoo Railway Station, walking distance to Oxley College, short distance to Bowral's shops and just 90 minutes easy drive to Sydney's CBD. Stay well connected, with Internal network wiring for high-speed Internet in all rooms and high speed NBN Internet connected.
This luxurious home is set on more than one acre of a well-established, landscaped garden, with a beautiful pond surrounded by sandstone walls, making the best of its serene, picture-perfect position.
The house offers 2 impressive entry foyers with leadlight Australian cedar doors and wonderful garden views from every room. It has an easy flowing collection of sophisticated formal and informal spaces characterized by high quality finishes, with double-glazed windows and French doors, hardwood flooring, 3m high ceilings, Carrara marble fireplace, dual ducted heating and cooling system with advanced climate control.
The main entry hall with high vaulted ceiling is from the Burradoo Rd and leads to a formal lounge room, family room and an office. A 1.5m wide imposing hardwood staircase leads to a gallery upstairs and luxurious master suite and 2 additional extra large bedrooms.
Guest accommodation has an independent entry/library room and leads to a second living area and a large bedroom with luxurious marble en-suite.
An elaborate stylish French provincial entertainer's kitchen, with butler's pantry features premium European appliances, including a Smeg Victoria triple oven stove with an integrated 6 burner gas cooktop, Miele dishwasher and granite benchtops. The kitchen is north facing, full of sunshine and leading to a formal dining, al-fresco, wrap around veranda with polished travertine floors, gardens and lawns. A sumptuous formal living room leads to the veranda, colonnade pergola with decorative grape vines, roses, and a pathway to a beautiful garden gazebo in a lower part of the garden.
The house features four/five huge bedrooms, two with luxurious en-suites and walk-in robes, a beautiful main bathroom and a powder room all with Italian Mable tiles and Italian his and hers vanities.
Features
- Exquisite, huge, sun filled formal lounge room with Carrara marble fireplace
- Generous family area and superb formal and informal dining spaces
- Gourmet French provincial kitchen with granite benchtops, luxury European appliances and butler's pantry
- Office, media room, upstairs gallery, opulent family bathroom
- Four enormous bedrooms including two with resort style ensuites
- 3m high ceilings, 1.5m wide imposing hardwood staircase
- Deluxe wraparound entertaining veranda and tranquil alfresco
- Stunning established grounds with a picturesque dam surrounded by sandstone walls
- White colonnade pergola with grapes vines and roses
- Beautiful white gazebo, garden storage shed
- Central ducted air conditioning and central gas heating with 10 zones control, comprising two independent systems servicing upstairs and downstairs areas
- 130,000 liters in ground water tanks supporting an automated, 11 zone irrigation system, with sprinklers and drip lines
- Air conditioned double garage with internal access
- Polished hardwood timber flooring throughout
- Secondary driveway with access to garden and a 3 car parking for service vehicles
- Fast NBN internet facility (100/40 mbps)
- Short walk to Burradoo Station, Oxley College and parks
- Magnificent lawns and gardens with a great variety of trees, shrubs, perennial flowers
This outstanding home has over 480 m2 of living space, with 4/5 bedrooms, 3 full bathrooms and a powder room, independent laundry/mud room and a two car air-conditioned garage. There is also a secondary driveway for service vehicles with garden access and an additional 3 car parking.
The Phone Code for this property is: 61046. Please quote this number when phoning or texting.
Disclaimer:
Whilst every care has been taken to verify the accuracy of the details in this advertisement, For Sale By Owner (forsalebyowner.com.au Pty Ltd) cannot guarantee its correctness. Prospective buyers or tenants need to take such action as is necessary, to satisfy themselves of any pertinent matters.
Amaroo, translated as beatiful place, is a magnificent near new Burradoo family manor on 4388 sqm of established gardens
Commanding a blue-ribbon Burradoo address, positioned on the high side of a wide, tree lined avenue, nested among some of the best Burradoo homes, this glorious, individually designed family residence presents a fusion of contemporary elegance and uncompromised luxury.
The location is most convenient, with a 5 min stroll to Burradoo Railway Station, walking distance to Oxley College, short distance to Bowral's shops and just 90 minutes easy drive to Sydney's CBD. Stay well connected, with Internal network wiring for high-speed Internet in all rooms and high speed NBN Internet connected.
This luxurious home is set on more than one acre of a well-established, landscaped garden, with a beautiful pond surrounded by sandstone walls, making the best of its serene, picture-perfect position.
The house offers 2 impressive entry foyers with leadlight Australian cedar doors and wonderful garden views from every room. It has an easy flowing collection of sophisticated formal and informal spaces characterized by high quality finishes, with double-glazed windows and French doors, hardwood flooring, 3m high ceilings, Carrara marble fireplace, dual ducted heating and cooling system with advanced climate control.
The main entry hall with high vaulted ceiling is from the Burradoo Rd and leads to a formal lounge room, family room and an office. A 1.5m wide imposing hardwood staircase leads to a gallery upstairs and luxurious master suite and 2 additional extra large bedrooms.
Guest accommodation has an independent entry/library room and leads to a second living area and a large bedroom with luxurious marble en-suite.
An elaborate stylish French provincial entertainer's kitchen, with butler's pantry features premium European appliances, including a Smeg Victoria triple oven stove with an integrated 6 burner gas cooktop, Miele dishwasher and granite benchtops. The kitchen is north facing, full of sunshine and leading to a formal dining, al-fresco, wrap around veranda with polished travertine floors, gardens and lawns. A sumptuous formal living room leads to the veranda, colonnade pergola with decorative grape vines, roses, and a pathway to a beautiful garden gazebo in a lower part of the garden.
The house features four/five huge bedrooms, two with luxurious en-suites and walk-in robes, a beautiful main bathroom and a powder room all with Italian Mable tiles and Italian his and hers vanities.
Features
- Exquisite, huge, sun filled formal lounge room with Carrara marble fireplace
- Generous family area and superb formal and informal dining spaces
- Gourmet French provincial kitchen with granite benchtops, luxury European appliances and butler's pantry
- Office, media room, upstairs gallery, opulent family bathroom
- Four enormous bedrooms including two with resort style ensuites
- 3m high ceilings, 1.5m wide imposing hardwood staircase
- Deluxe wraparound entertaining veranda and tranquil alfresco
- Stunning established grounds with a picturesque dam surrounded by sandstone walls
- White colonnade pergola with grapes vines and roses
- Beautiful white gazebo, garden storage shed
- Central ducted air conditioning and central gas heating with 10 zones control, comprising two independent systems servicing upstairs and downstairs areas
- 130,000 liters in ground water tanks supporting an automated, 11 zone irrigation system, with sprinklers and drip lines
- Air conditioned double garage with internal access
- Polished hardwood timber flooring throughout
- Secondary driveway with access to garden and a 3 car parking for service vehicles
- Fast NBN internet facility (100/40 mbps)
- Short walk to Burradoo Station, Oxley College and parks
- Magnificent lawns and gardens with a great variety of trees, shrubs, perennial flowers
This outstanding home has over 480 m2 of living space, with 4/5 bedrooms, 3 full bathrooms and a powder room, independent laundry/mud room and a two car air-conditioned garage. There is also a secondary driveway for service vehicles with garden access and an additional 3 car parking.
The Phone Code for this property is: 61046. Please quote this number when phoning or texting.
Disclaimer:
Whilst every care has been taken to verify the accuracy of the details in this advertisement, For Sale By Owner (forsalebyowner.com.au Pty Ltd) cannot guarantee its correctness. Prospective buyers or tenants need to take such action as is necessary, to satisfy themselves of any pertinent matters.
Need a Home Loan?
Get pre-approved for a home loan within 48 hours. Click Here or more information.
- Last 24 Hours0
- Last 7 Days2
- Last 30 Days13
Views
Contact the Owner
Phone or Text: 0488 847 018
Enter Phone Code: 61046
Enter Phone Code: 61046
"*" indicates required fields