31 Ceres St, Penrith, NSW 2750
Sold Price: 938,000 (21 Jan 2022)
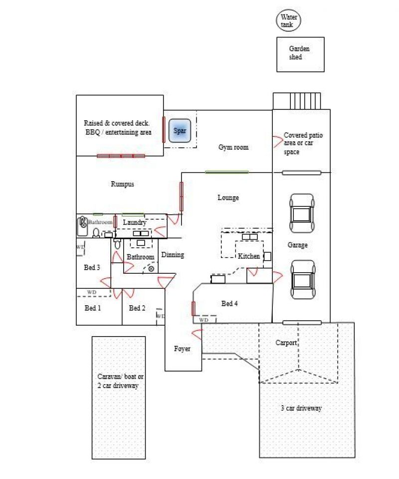
Large 4 Bedroom home
The Phone Code for this property is: 13092. Please quote this number when phoning or texting.
Open house 22nd January 2022 11am to 12pm. Come see what this house has to offer.
If you're looking for a large family home in a quiet street of Penrith, but yet minutes away from all the luxury and convenience you'll ever need then this is the home you.
This beautiful well presented 4 bedroom family home is within reaching distance to a huge range of facilities and attractions Penrith and nearby areas have to offer.
Only a skip and a jump away from 2 nearby train stations, bus services virtually at your door, grocery shopping within walking distance, approximately 20 minutes to the soon to be ever convenient airport, Multiple education facilities of all levels, recreational areas such as the regatta centre and white water rafting, wining and dining and all the future and potential gains Penrith has to offer such as western Sydney's indoor snow resort which is apparently one step closer to becoming a reality.
Now visualise all this excitement and convenience then coming back to your own quiet neighbourhood home, cooking your favourite family meal on your raised B.B.Q deck area after relaxing in the warm bubbly spar, now that's life at its finest!
The features of this home include,
- 4 bedrooms with built-in wardrobes.
- 2 bathrooms.
- Air conditioners throughout the home for personal convenience.
- Natural gas stove, heating and continuous hot water.
- Alarm system
- Cosy open plan kitchen dinning and lounge room.
- Gym and spar room with BBQ deck area access at the touch of a button.
- Large rumpus room which flows onto the outdoor raised deck area divided by wide timber bifold doors.
- Large raised under cover BBQ area with access to power/ tv sockets and plenty of room to entertain the whole family.
- 2 car garage with the option of parking a 3rd car by opening the rear roller door to the covered patio area.
- The front yard features a beautifully maintained lawn and garden.
- Drive way parking up to 5 cars
- Easily maintained back yard with garden shed, huge water tank and plenty of storage room beneath the house.
We are willing to include certain furniture such as
pool table ect ..by negotiation only.
Contact for more information
Inspections by appointment only
Disclaimer:
Whilst every care has been taken to verify the accuracy of the details in this advertisement, For Sale By Owner (forsalebyowner.com.au Pty Ltd) cannot guarantee its correctness. Prospective buyers or tenants need to take such action as is necessary, to satisfy themselves of any pertinent matters.
Open house 22nd January 2022 11am to 12pm. Come see what this house has to offer.
If you're looking for a large family home in a quiet street of Penrith, but yet minutes away from all the luxury and convenience you'll ever need then this is the home you.
This beautiful well presented 4 bedroom family home is within reaching distance to a huge range of facilities and attractions Penrith and nearby areas have to offer.
Only a skip and a jump away from 2 nearby train stations, bus services virtually at your door, grocery shopping within walking distance, approximately 20 minutes to the soon to be ever convenient airport, Multiple education facilities of all levels, recreational areas such as the regatta centre and white water rafting, wining and dining and all the future and potential gains Penrith has to offer such as western Sydney's indoor snow resort which is apparently one step closer to becoming a reality.
Now visualise all this excitement and convenience then coming back to your own quiet neighbourhood home, cooking your favourite family meal on your raised B.B.Q deck area after relaxing in the warm bubbly spar, now that's life at its finest!
The features of this home include,
- 4 bedrooms with built-in wardrobes.
- 2 bathrooms.
- Air conditioners throughout the home for personal convenience.
- Natural gas stove, heating and continuous hot water.
- Alarm system
- Cosy open plan kitchen dinning and lounge room.
- Gym and spar room with BBQ deck area access at the touch of a button.
- Large rumpus room which flows onto the outdoor raised deck area divided by wide timber bifold doors.
- Large raised under cover BBQ area with access to power/ tv sockets and plenty of room to entertain the whole family.
- 2 car garage with the option of parking a 3rd car by opening the rear roller door to the covered patio area.
- The front yard features a beautifully maintained lawn and garden.
- Drive way parking up to 5 cars
- Easily maintained back yard with garden shed, huge water tank and plenty of storage room beneath the house.
We are willing to include certain furniture such as
pool table ect ..by negotiation only.
Contact for more information
Inspections by appointment only
Disclaimer:
Whilst every care has been taken to verify the accuracy of the details in this advertisement, For Sale By Owner (forsalebyowner.com.au Pty Ltd) cannot guarantee its correctness. Prospective buyers or tenants need to take such action as is necessary, to satisfy themselves of any pertinent matters.
Features
Air Conditioning, Balcony/Patio/Terrace, Bath, Broadband, Built-ins, Deck, Dishwasher, Fully Fenced, Heating, Inside Spa, Internal Laundry, Living Area, Pay TV Enabled, Polished Timber Floors, Renovated Bathroom, Rumpus Room, Entertainment Area, Gym, Level Lawn, Pet Friendly, Rainwater Tank, Secure Parking, Shower Facilities, Storage Area, Alarm System, Close to Parklands, Close to Schools, Close to Shops, Close to Transport, Quiet Location, Non Smoking
For all your conveyancing needs, contact Jessica on (02) 6519 4933 at Smart Coast Conveyancing or email if you have questions. jessica@smartcoast.com.au
Visit Website- Last 24 Hours0
- Last 7 Days1
- Last 30 Days4
Views
Contact the Owner
Phone or Text: 0488 847 018
Enter Phone Code 13092 when prompted.
Enter Phone Code 13092 when prompted.
"*" indicates required fields
