12 Fifth Street, Seahampton, NSW 2286
Sold Price Not Disclosed (06 Aug 2021)
LOVINGLY MAINTAINED 3035 SQM PROPERTY WITH AMAZING BUSH OUTLOOK & PEACEFUL AMBIENCE
The Phone Code for this property is: 90317. Please quote this number when phoning or texting.
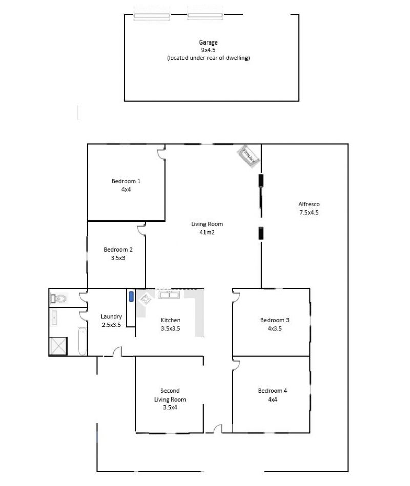
This open plan home has four large bedrooms, two with built-in cupboards, renovated bathroom with separate toilet, a roomy central kitchen with servery, huge living area plus formal lounge room with 3.150m high ceilings throughout. For year round comfort, there is also a cosy wood heater and a split system air conditioner. The covered verandah around half the house also incorporates a large alfresco area which is perfect for entertaining. This house has a double frontage with side access to the rear double garage, under house storage and room for your boat or caravan. There are also two huge water storage tanks and an Envirocycle septic system, so no water rates to pay!
This sprawling property, consisting of four lots and backing onto over 2,000 hectares of National Park means there is plenty of room for a hobby farm, a gardener's paradise, adventure with access to walking tracks or a quiet country lifestyle overlooking the beautiful bushland setting - yet is still close to all city amenities as it is just a 2 minute drive to the M1, 6 minutes to Cameron Park, and 15 minutes to Glendale Shopping Centre and the local bus passes the front door.
This property is well worth a look!
Council rates are approx $2000 per year.
Disclaimer:
Whilst every care has been taken to verify the accuracy of the details in this advertisement, For Sale By Owner (forsalebyowner.com.au Pty Ltd) cannot guarantee its correctness. Prospective buyers or tenants need to take such action as is necessary, to satisfy themselves of any pertinent matters.
This open plan home has four large bedrooms, two with built-in cupboards, renovated bathroom with separate toilet, a roomy central kitchen with servery, huge living area plus formal lounge room with 3.150m high ceilings throughout. For year round comfort, there is also a cosy wood heater and a split system air conditioner. The covered verandah around half the house also incorporates a large alfresco area which is perfect for entertaining. This house has a double frontage with side access to the rear double garage, under house storage and room for your boat or caravan. There are also two huge water storage tanks and an Envirocycle septic system, so no water rates to pay!
This sprawling property, consisting of four lots and backing onto over 2,000 hectares of National Park means there is plenty of room for a hobby farm, a gardener's paradise, adventure with access to walking tracks or a quiet country lifestyle overlooking the beautiful bushland setting - yet is still close to all city amenities as it is just a 2 minute drive to the M1, 6 minutes to Cameron Park, and 15 minutes to Glendale Shopping Centre and the local bus passes the front door.
This property is well worth a look!
Council rates are approx $2000 per year.
Disclaimer:
Whilst every care has been taken to verify the accuracy of the details in this advertisement, For Sale By Owner (forsalebyowner.com.au Pty Ltd) cannot guarantee its correctness. Prospective buyers or tenants need to take such action as is necessary, to satisfy themselves of any pertinent matters.
Features
Air Conditioning, Bath, Built-ins, Deck, Fireplace(s), Formal Lounge, Fully Fenced, Heating, Living Area, Modern Bathroom, Renovated Bathroom, Entertainment Area, Garden, Pet Friendly, Rainwater Tank, Secure Parking, Storage Area, Unlevel Lawn, Workshop, Close to Schools, Close to Shops, Close to Transport, Quiet Location, Views, Nature Property
Need a Home Loan?
Get pre-approved for a home loan within 48 hours. Click Here or more information.
- Last 24 Hours0
- Last 7 Days0
- Last 30 Days3
Views
Contact the Owner
Phone or Text: 0488 847 018
Enter Phone Code: 90317
Enter Phone Code: 90317
"*" indicates required fields