9 Dolomite Drive, Mount Gambier, SA 5290
Sold Price: 400,000
UNDER OFFER/CONTRACT
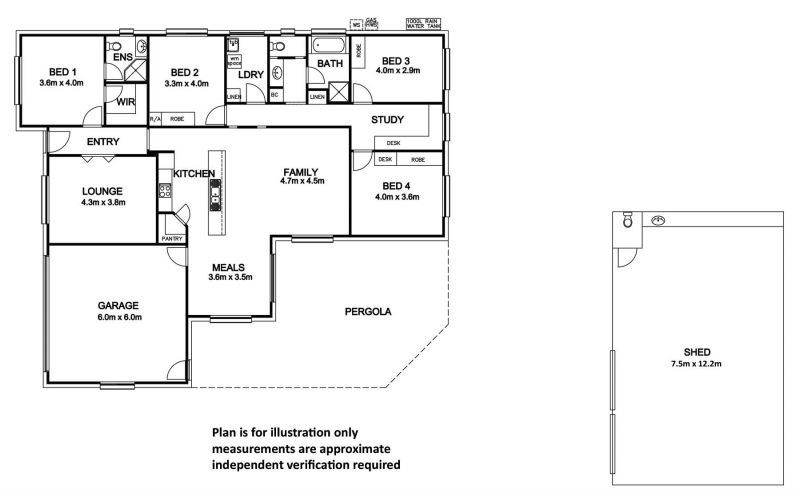
* Rendered Limestone home in great location on quiet closed street.
* Large bedrooms all have built in robes, with master bedroom featuring walk in and ensuite.
* Modern open plan living.
* Gas ducted heating, cooking and instant hot water.
* Low maintenance front and back yard with sprinkler system.
* Back yard has vehicle access and is fully enclosed, perfect for pets.
* Massive shed with built in toilet, sink, electricity and steel bench.
* Window roller shutters on both west facing bedrooms to block afternoon sun.
* Impressive semi enclosed outdoor area for all year round entertainment.
up for private sale, house is currently empty ready for inspection, times very flexible, call now.
* Large bedrooms all have built in robes, with master bedroom featuring walk in and ensuite.
* Modern open plan living.
* Gas ducted heating, cooking and instant hot water.
* Low maintenance front and back yard with sprinkler system.
* Back yard has vehicle access and is fully enclosed, perfect for pets.
* Massive shed with built in toilet, sink, electricity and steel bench.
* Window roller shutters on both west facing bedrooms to block afternoon sun.
* Impressive semi enclosed outdoor area for all year round entertainment.
up for private sale, house is currently empty ready for inspection, times very flexible, call now.
Contact Karen on 0438 838 018 at First Paige Property Settlement Services for help with your Real Estate paperwork (Form 1 & Contracts) or email if you have questions. admin@firstpaigeform1.com
Visit WebsiteNeed a Home Loan?
Get pre-approved for a home loan within 48 hours. Click Here or more information.
- Last 24 Hours0
- Last 7 Days0
- Last 30 Days2
Views
Contact the Owner
Phone or Text: 0488 847 018
Enter Phone Code:
Enter Phone Code:
"*" indicates required fields
