3 Pacific Haven Drive, Howard, QLD 4659
Sold Price: 355,000
Large Family Home in Quiet Howard
UNDER CONTRACT
Quality GJ Gardner Home. VACANT POSSESSION
Large family Home , built in 2005.
Spacious open planned luxury family living. Quiet area but still close to local shops, butcher, baker, pub, Dr’s surgery, pharmacy, take away and convenience stores.
Enjoy hot summer days and nights in air conditioned comfort or splashing in the quality 9m saltwater pool. There is only a short few weeks that the pool is not able to be enjoyed due to its dark colour. Provision has also been left to plug in heating to get those extra few weeks in. Pool has safety step all the way around and a bench seat to sit and relax and watch the colour changing lights at night.
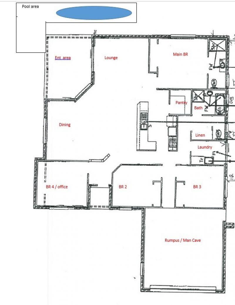
Main Bedroom
Built ins, Ensuite (large shower suits disabled access) toilet, Fan, 2.5kw MHI Air Con. TV point, 4 x double power points. Block out curtains, Blind in ensuite. Ensuite has combination light, heater & exhaust fan.
Bedroom 2
Built ins (Mirror inside door), Fans, Block out curtain, security screen, tinted window. double power point.
Bedrooms 3
Built ins (Mirror inside door), Fans, Curtains, fly screen, TV point. double power point
Bedroom 4/office
2.5kw MHI Air Conditioner, Block out curtains, Fly screen screen, tinted window. NBN point, TV point. 2 x double power points.
Main Bathroom has separate shower & Bath. Bathroom has combination light, heater & exhaust fan.
Separate toilet with exhaust fan. In built linen closet.
Kitchen
Large walk in Pantry, Electric fan forced Oven, Grill & Stove top with range hood. 16 place SS dishwasher, twin sink, plenty of storage space.
Kitchen, Family / Meals, Lounge is large open plan area & air conditioned living.
Air conditioned large Man cave/ Rumpus room (TV points, CCTV set up, VR set up, projector set up). Security screens and tinted windows.
Tinted windows on the front of the home to keep the afternoon sun out. security screen doors.
Fully fenced and gated house yard. Chicken coop. Town Water with a small Tank off shed.
Large but easy care yard to mow.
Solar Hot water installed march 2017, plus large 6kw solar power system to cut down your power bill, installed april 2015.
In ground 9m salt water Narellan pool (note SPA not included), stenciled concreted pool area.
Back covered entertainment area adjacent to pool, stenciled concrete, TV point, fire pit, landscaped & turfed. Palms provide additional privacy screening.
Additional private outdoor alcove/greenery area between house and front 2 bay shed.
Close to Wal's boat ramp, salt water fishing on Burrum River and out to the Bay. On the edge of Howard Township but an easy walk to bus stops, primary school, pub, butcher, town and the shops.
Howard has all emergency services, Dr & chemist.
2 bay plus workshop colour bond shed with 2 roller doors in back yard, with CCTV set up.
2 bay with 2 roller doors shed beside house. Power and lights installed in both sheds.
Viewings by appointment only
Quality GJ Gardner Home. VACANT POSSESSION
Large family Home , built in 2005.
Spacious open planned luxury family living. Quiet area but still close to local shops, butcher, baker, pub, Dr’s surgery, pharmacy, take away and convenience stores.
Enjoy hot summer days and nights in air conditioned comfort or splashing in the quality 9m saltwater pool. There is only a short few weeks that the pool is not able to be enjoyed due to its dark colour. Provision has also been left to plug in heating to get those extra few weeks in. Pool has safety step all the way around and a bench seat to sit and relax and watch the colour changing lights at night.
Main Bedroom
Built ins, Ensuite (large shower suits disabled access) toilet, Fan, 2.5kw MHI Air Con. TV point, 4 x double power points. Block out curtains, Blind in ensuite. Ensuite has combination light, heater & exhaust fan.
Bedroom 2
Built ins (Mirror inside door), Fans, Block out curtain, security screen, tinted window. double power point.
Bedrooms 3
Built ins (Mirror inside door), Fans, Curtains, fly screen, TV point. double power point
Bedroom 4/office
2.5kw MHI Air Conditioner, Block out curtains, Fly screen screen, tinted window. NBN point, TV point. 2 x double power points.
Main Bathroom has separate shower & Bath. Bathroom has combination light, heater & exhaust fan.
Separate toilet with exhaust fan. In built linen closet.
Kitchen
Large walk in Pantry, Electric fan forced Oven, Grill & Stove top with range hood. 16 place SS dishwasher, twin sink, plenty of storage space.
Kitchen, Family / Meals, Lounge is large open plan area & air conditioned living.
Air conditioned large Man cave/ Rumpus room (TV points, CCTV set up, VR set up, projector set up). Security screens and tinted windows.
Tinted windows on the front of the home to keep the afternoon sun out. security screen doors.
Fully fenced and gated house yard. Chicken coop. Town Water with a small Tank off shed.
Large but easy care yard to mow.
Solar Hot water installed march 2017, plus large 6kw solar power system to cut down your power bill, installed april 2015.
In ground 9m salt water Narellan pool (note SPA not included), stenciled concreted pool area.
Back covered entertainment area adjacent to pool, stenciled concrete, TV point, fire pit, landscaped & turfed. Palms provide additional privacy screening.
Additional private outdoor alcove/greenery area between house and front 2 bay shed.
Close to Wal's boat ramp, salt water fishing on Burrum River and out to the Bay. On the edge of Howard Township but an easy walk to bus stops, primary school, pub, butcher, town and the shops.
Howard has all emergency services, Dr & chemist.
2 bay plus workshop colour bond shed with 2 roller doors in back yard, with CCTV set up.
2 bay with 2 roller doors shed beside house. Power and lights installed in both sheds.
Viewings by appointment only
Need a Home Loan?
Get pre-approved for a home loan within 48 hours. Click Here or more information.
- Last 24 Hours2
- Last 7 Days4
- Last 30 Days6
Views
Contact the Owner
Phone or Text: 0488 847 018
Enter Phone Code:
Enter Phone Code:
"*" indicates required fields