7 Wattle Street, Millaa Millaa, QLD 4886
Sold Price: 140,000
House for Sale: 3 Bedroom: Tablelands North Queensland
Neat three bedroom low-set home situated on a substantial
1012sq/m block in the friendly township of Millaa Millaa, handy to primary school and shops.
Excellent Investment or Starter Home ($250pw return)
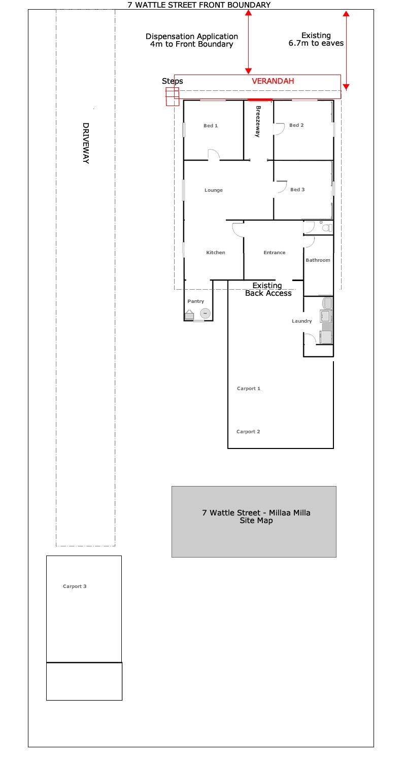
Tongue and groove walls, high ceilings and classic oak panelling reflect times past and complement the modern kitchen cabinetry and fully tiled bathroom. Separate toilet. There is a single garage, a large 2 bay carport/workshop attached to house. ( three cars under cover). Quantity of furniture and white goods is included in the
sale.
*Council Approved Dispensation up to 4mtrs from front boundary.
Wireless NBN - 5 bars reception.
Contact us to arrange an inspection.
Supplied - if buyer does not want, will remove.
Fridge and Freezer
Washing Machine and Dryer
1 x Queen Bed
Small Table and 4 chairs.
1012sq/m block in the friendly township of Millaa Millaa, handy to primary school and shops.
Excellent Investment or Starter Home ($250pw return)
Tongue and groove walls, high ceilings and classic oak panelling reflect times past and complement the modern kitchen cabinetry and fully tiled bathroom. Separate toilet. There is a single garage, a large 2 bay carport/workshop attached to house. ( three cars under cover). Quantity of furniture and white goods is included in the
sale.
*Council Approved Dispensation up to 4mtrs from front boundary.
Wireless NBN - 5 bars reception.
Contact us to arrange an inspection.
Supplied - if buyer does not want, will remove.
Fridge and Freezer
Washing Machine and Dryer
1 x Queen Bed
Small Table and 4 chairs.
Features
Courtyard, Broadband
Need a Home Loan?
Get pre-approved for a home loan within 48 hours. Click Here or more information.
- Last 24 Hours0
- Last 7 Days2
- Last 30 Days2
Views
Contact the Owner
Phone or Text: 0488 847 018
Enter Phone Code:
Enter Phone Code:
"*" indicates required fields