58 Huntingdale Drive, Normanville, SA 5204
Sold Price: 152,500
Price Change! Big Reduction Motivated Seller Now best offers invited above $150k
For Sale - 955 square metre block for immediate sale. This is a genuine bargain for the astute buyer, this was purchased over 7 years ago for over $210,000 with fees and stamp duty costs. This should be selling above 220k but I am now taking best offer above $150k. Not only will this be a bargain buy but with added bonus of 10’s of thousands in savings on footings,excavation and retaining as this is a pretty flat block....so do the math on excavation and retaining and then buy arguably the best block on Huntingdale for value, location and views. Dream Home awaits with .....sea and hills views...signature 17th hole views and a generous reduction to an astute buyer. I am motivated...so be quick.
One of the flattest blocks in the Links Lady Bay Resort with Sea and Hills views. Save thousands on excavation and retaining. Land would suit single,double and split level home.
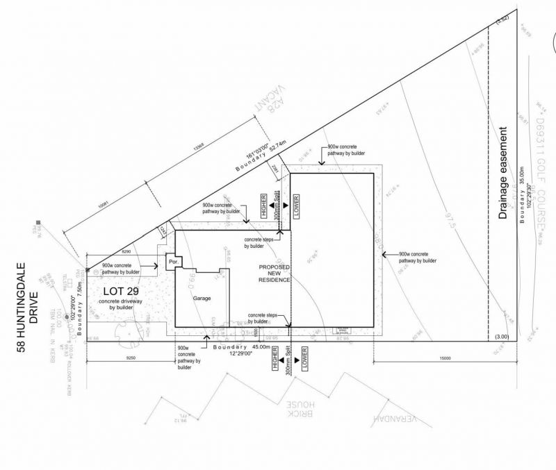
Overlooking the 17th signature hole.
Offers being invited. Offers with no loan requirements will be viewed more favourably.
Address 58 Huntingdale Drive Normanville, Links Lady Bay Resort. Right at the end of the street.
Land dimensions included, footprint of a potential design included. This is a house we were going to build at one point.
Land being sold as is.
Please phone or email us for further information.
Once you have inspected the property and would like to make an offer, it can be submitted through our site.
One of the flattest blocks in the Links Lady Bay Resort with Sea and Hills views. Save thousands on excavation and retaining. Land would suit single,double and split level home.
Overlooking the 17th signature hole.
Offers being invited. Offers with no loan requirements will be viewed more favourably.
Address 58 Huntingdale Drive Normanville, Links Lady Bay Resort. Right at the end of the street.
Land dimensions included, footprint of a potential design included. This is a house we were going to build at one point.
Land being sold as is.
Please phone or email us for further information.
Once you have inspected the property and would like to make an offer, it can be submitted through our site.
Contact Karen on 0438 838 018 at First Paige Property Settlement Services for help with your Real Estate paperwork (Form 1 & Contracts) or email if you have questions. admin@firstpaigeform1.com
Visit WebsiteNeed a Home Loan?
Get pre-approved for a home loan within 48 hours. Click Here or more information.
- Last 24 Hours1
- Last 7 Days3
- Last 30 Days4
Views
Contact the Owner
Phone or Text: 0488 847 018
Enter Phone Code:
Enter Phone Code:
"*" indicates required fields
