2 Blumberg Close, Birdwood, SA 5234
Sold!
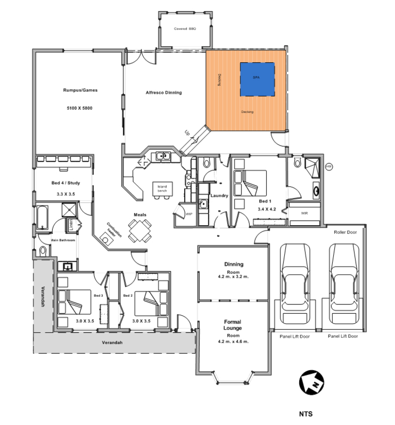
Large Executive Family Home with Entertainment and alfresco living in mind.
Expertly designed with contemporary family living in mind, set on 1008 sqm located in the Adelaide Hills town of Birdwood.
This home has a flexible floor plan which offers both casual and formal living areas, plus the fully enclosed pergola is perfect for alfresco living and cooking or relaxing in the 6 person spa bath throughout the entire year.
The home is located within the township and both Primary and High Schools only 10 minutes walking distance.
The 2005 built steel framed home features 3-4 bedroom with the 4th bedroom currently used as the families study/home office, complete with solid timber custom built-in office furniture with heaps of storage for the entire family.
The heart of the home is the huge kitchen with gloss black porcelain and stainless steel bench tops, stainless steel stove, cook top and double dish drawer dishwasher, and the kitchen island adding even more storage and bench area.
The informal meals area is perfect for family living, and the slow combustion wood heater to keep the home nice and cosy during the cooler winter days and nights.
Other luxury features of this home include:
* Huge Rumpus/Games room 5100mm x 5800mm complete with custom built-in entertainment unit
* Huge Laundry including 3rd toilet & hideaway Ironing Centre
* Large Bedrooms 2 and 3 complete with Built-in robes
* The family bathroom has a separate toilet, powder room, bath and shower.
* Large master bedroom with en-suite and walk-in robe
* Double LUG with internal access to house and drive through to the rear yard or workshop
* Energy efficient evaporative cooling to the entire home.
* Energy efficient Double Glassed windows
* Plantation Shutters to all the front windows
* The home is also fitted with 3 gas points for gas flue less heating
* Formal Dining and formal Lounge room
* 9' ceilings
* Large Gloss porcelain floor tiles to all the living areas, solid timber flooring to the formal dining and lounge.
* 6 mtr x 6 mtr Workshop with 6 mtr x 2 mtr lean-to
* Low maintenance front yard while the rear yard has a selection of growing fruit trees and a relaxing water feature complete with water fall.
Disclaimer:
Whilst every care has been taken to verify the accuracy of the details in this advertisement, For Sale By Owner (forsalebyowner.com.au Pty Ltd) cannot guarantee its correctness. Prospective buyers or tenants need to take such action as is necessary, to satisfy themselves of any pertinent matters.
Features
Bath, Fireplace(s), Formal Lounge, Heating, Modern Bathroom, Modern Kitchen, Separate Dining Room, BBQ, Entertainment Area, Garden, Level Lawn, Pet Friendly, Rainwater Tank, Shower Facilities, Spa Bath/Jacuzzi, Storage Area, Security Lights, Close to Parklands, Close to Schools, Close to Shops, Close to Transport, Quiet Location, Nature Property, Prestige Property, Built-ins, Ensuite, Gas Enabled, Internal Laundry, Pay TV Enabled, Polished Timber Floors, Remote Garage, Study, Broadband, Dishwasher, Workshop
Contact Karen on 0438 838 018 at First Paige Property Settlement Services for help with your Real Estate paperwork (Form 1 & Contracts) or email if you have questions. admin@firstpaigeform1.com
Visit WebsiteNeed a Home Loan?
Get pre-approved for a home loan within 48 hours. Click Here or more information.
- Last 24 Hours0
- Last 7 Days0
- Last 30 Days8
Views
Contact the Owner
Enter Phone Code:
"*" indicates required fields
