2/32 Bellevue Terrace, Clayfield, QLD 4011
Sold Price Not Disclosed (13 Mar 2021)
Bright and Airy Easy Living 2 Bedroom Apartment.
The Phone Code for this property is: 25605. Please quote this number when phoning or texting.
Bright and Airy Easy Living.
Situated in the sought after Clayfields area, closed to the city centre with easy access to trains and buses, numerous shopping centres, schools and restaurants in the vicinity.
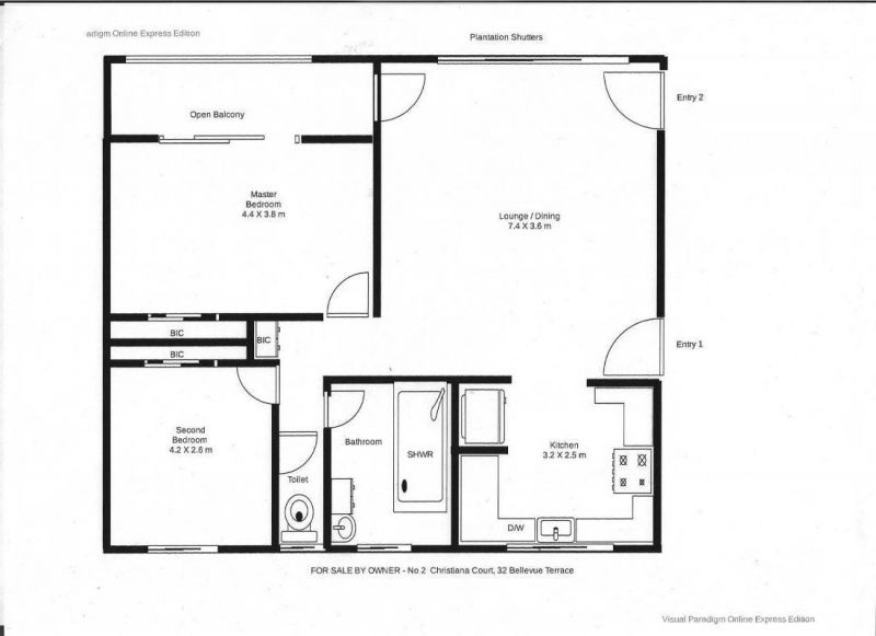
This first floor modern apartment has 2 entrances that open into a huge tiled living / dining area, and covered veranda. The modern kitchen has glass splash backs, shutters on the windows, lots of cupboards, a dishwasher and a built in oven, with cooker top.
The two large carpeted bedrooms have shutters on the windows and lots of cupboards. Main bedroom has aircon.
The bathroom has a walk-in shower, blinds on the windows, with a separate toilet.
Extra long garage with remote operated door, and side entry door provides plenty of storage space and tiled laundry area has ample space for your washer and dryer. An internal washing line for raining days.
Wonderful tenant in place, all viewing will be as per RTA rules.
Urban Utilities : +- $270.00 per quarter
Rates: $ 386.70 per quarter
Body Corp: $ 360.00 per quarter
Disclaimer:
Whilst every care has been taken to verify the accuracy of the details in this advertisement, For Sale By Owner (forsalebyowner.com.au Pty Ltd) cannot guarantee its correctness. Prospective buyers or tenants need to take such action as is necessary, to satisfy themselves of any pertinent matters.
Bright and Airy Easy Living.
Situated in the sought after Clayfields area, closed to the city centre with easy access to trains and buses, numerous shopping centres, schools and restaurants in the vicinity.
This first floor modern apartment has 2 entrances that open into a huge tiled living / dining area, and covered veranda. The modern kitchen has glass splash backs, shutters on the windows, lots of cupboards, a dishwasher and a built in oven, with cooker top.
The two large carpeted bedrooms have shutters on the windows and lots of cupboards. Main bedroom has aircon.
The bathroom has a walk-in shower, blinds on the windows, with a separate toilet.
Extra long garage with remote operated door, and side entry door provides plenty of storage space and tiled laundry area has ample space for your washer and dryer. An internal washing line for raining days.
Wonderful tenant in place, all viewing will be as per RTA rules.
Urban Utilities : +- $270.00 per quarter
Rates: $ 386.70 per quarter
Body Corp: $ 360.00 per quarter
Disclaimer:
Whilst every care has been taken to verify the accuracy of the details in this advertisement, For Sale By Owner (forsalebyowner.com.au Pty Ltd) cannot guarantee its correctness. Prospective buyers or tenants need to take such action as is necessary, to satisfy themselves of any pertinent matters.
Features
Air Conditioning, Balcony/Patio/Terrace, Dishwasher, Modern Bathroom, Modern Kitchen, Remote Garage, Renovated Kitchen, Balcony, Close to Schools, Close to Shops, Close to Transport, Quiet Location, Built-ins, Internal Laundry, Living Area, Renovated Bathroom, Secure Parking, Security Lights
Need a Home Loan?
Get pre-approved for a home loan within 48 hours. Click Here or more information.
- Last 24 Hours0
- Last 7 Days0
- Last 30 Days9
Views
Contact the Owner
Phone or Text: 0488 847 018
Enter Phone Code: 25605
Enter Phone Code: 25605
"*" indicates required fields