Lot 2,3,4 Holmes Street, Willaston, SA 5118
Sold Price Not Disclosed (13 Apr 2022)
Generous Sized Allotments in Desirable Location!
ONLY 2 BLOCKS REMAINING!!
An exciting opportunity awaits you here to secure a good-sized flat allotment with room to build your dream home and allow space for all the extras (STCC)!
With all the hard work having already been done for you, here is your chance to secure a desirable allotment in the suburb of Willaston! Located in an area where blocks this size are rare, NOW is your chance to build something special and take advantage of the grants available.
First homebuyers could be eligible for the government's grants of up to $15,000 and Home Builder's Grant at $25,000 (subject to eligibility criteria).
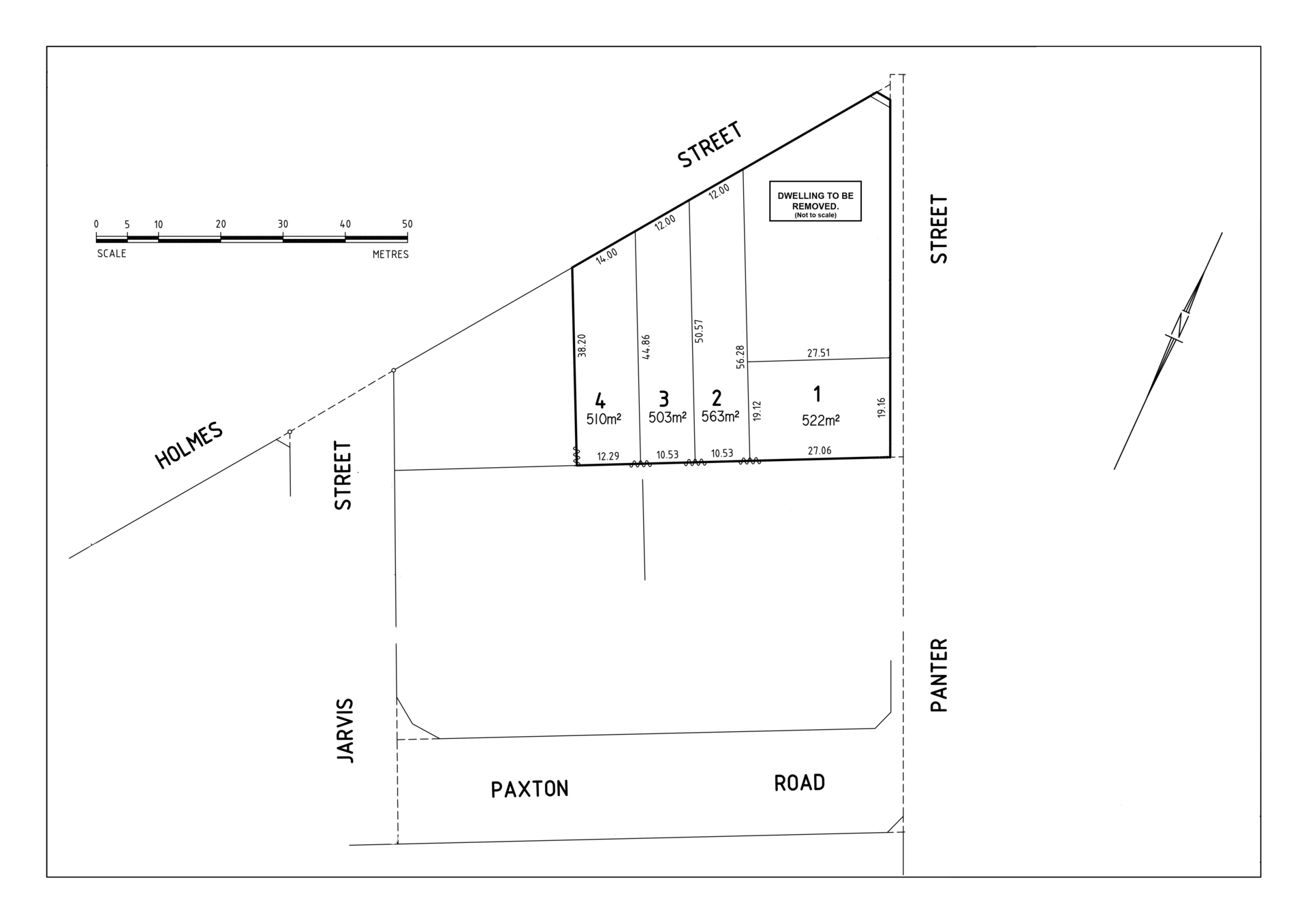
Lot 3 - 503m2, with street frontage 12.00m
Lot 4 - 510m2, with street frontage 14.00m
Features and Benefits:
- Torrens titled
- Flat block
- No easements or restrictions
- Water connected
- New boundary fencing at front of block
- Close proximity to public transport
- Perfect for first home buyers, investors, down-sizers or families
A golden opportunity to create the dream. Make it yours and call now!
The Phone Code for this property is: 99927. Please quote this number when phoning or texting.
Disclaimer:
Whilst every care has been taken to verify the accuracy of the details in this advertisement, For Sale By Owner (forsalebyowner.com.au Pty Ltd) cannot guarantee its correctness. Prospective buyers or tenants need to take such action as is necessary, to satisfy themselves of any pertinent matters.
An exciting opportunity awaits you here to secure a good-sized flat allotment with room to build your dream home and allow space for all the extras (STCC)!
With all the hard work having already been done for you, here is your chance to secure a desirable allotment in the suburb of Willaston! Located in an area where blocks this size are rare, NOW is your chance to build something special and take advantage of the grants available.
First homebuyers could be eligible for the government's grants of up to $15,000 and Home Builder's Grant at $25,000 (subject to eligibility criteria).
Lot 3 - 503m2, with street frontage 12.00m
Lot 4 - 510m2, with street frontage 14.00m
Features and Benefits:
- Torrens titled
- Flat block
- No easements or restrictions
- Water connected
- New boundary fencing at front of block
- Close proximity to public transport
- Perfect for first home buyers, investors, down-sizers or families
A golden opportunity to create the dream. Make it yours and call now!
The Phone Code for this property is: 99927. Please quote this number when phoning or texting.
Disclaimer:
Whilst every care has been taken to verify the accuracy of the details in this advertisement, For Sale By Owner (forsalebyowner.com.au Pty Ltd) cannot guarantee its correctness. Prospective buyers or tenants need to take such action as is necessary, to satisfy themselves of any pertinent matters.
Contact Karen on 0438 838 018 at First Paige Property Settlement Services for help with your Real Estate paperwork (Form 1 & Contracts) or email if you have questions. admin@firstpaigeform1.com
Visit WebsiteNeed a Home Loan?
Get pre-approved for a home loan within 48 hours. Click Here or more information.
- Last 24 Hours0
- Last 7 Days2
- Last 30 Days8
Views
Contact the Owner
Phone or Text: 0488 847 018
Enter Phone Code: 99927
Enter Phone Code: 99927
"*" indicates required fields
