80 Flinders Crescent, Forest Lake, QLD 4078
Sold Price: 480,000 (25 Jan 2021)
Well Maintained Property in Fabulous Location
The Phone Code for this property is: 20843. Please quote this number when phoning or texting.
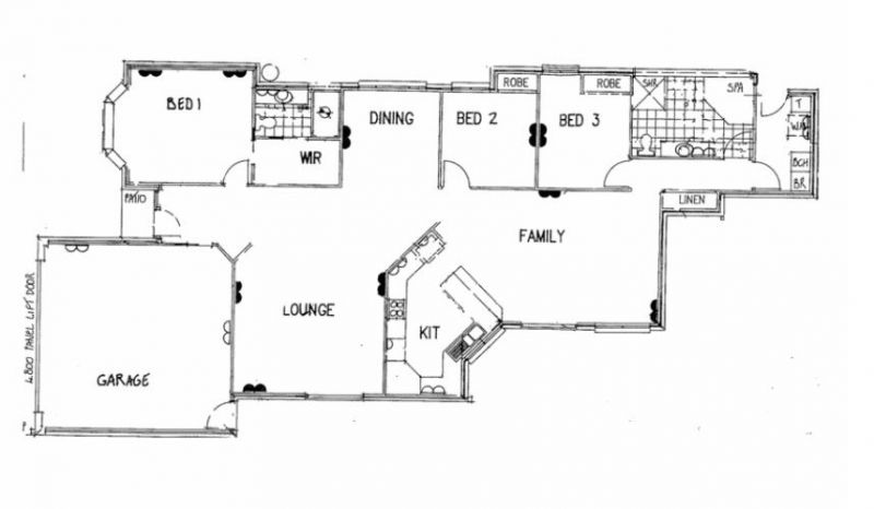
It is not often that you'll find a home that ticks all the boxes but this is it! Featuring 3 bedrooms (master with en-suite and walk-in robe), 2 living areas, separate dining, generous kitchen with gas cooking, family bathroom complete with spa bath and 480sqm block. Immaculately presented this home has been well maintained and is ready for you to move in now! Situated at the top of Flinders Crescent in Settlers Village this home is positioned to make the most of family living. Close to parks, public transport, schools, shops and the lake is within close walking distance. So many features you will have to view to appreciate.
Features:
3 Bedrooms
Separate air-conditioned living room
Air-conditioned master bedroom with walk-in robe and ensuite
Built-in robes to remaining 2 bedrooms
Separate bathroom with spa bath
Air-conditioned family room adjoining the kitchen
Separate dining room/study
Gas cooktop with electric oven, dishwasher
Solar Panels
Remote double garage
Low maintenance yard
Water Tanks & Pump
Large Outdoor Pergola
Garden shed
Land 480 square metres
Motion-sensor security system, smoke alarms, security grill on doors & windows
Less than 5 minutes drive to schools, child care centre, shopping centre and the Lake
Disclaimer:
Whilst every care has been taken to verify the accuracy of the details in this advertisement, For Sale By Owner (forsalebyowner.com.au Pty Ltd) cannot guarantee its correctness. Prospective buyers or tenants need to take such action as is necessary, to satisfy themselves of any pertinent matters.
It is not often that you'll find a home that ticks all the boxes but this is it! Featuring 3 bedrooms (master with en-suite and walk-in robe), 2 living areas, separate dining, generous kitchen with gas cooking, family bathroom complete with spa bath and 480sqm block. Immaculately presented this home has been well maintained and is ready for you to move in now! Situated at the top of Flinders Crescent in Settlers Village this home is positioned to make the most of family living. Close to parks, public transport, schools, shops and the lake is within close walking distance. So many features you will have to view to appreciate.
Features:
3 Bedrooms
Separate air-conditioned living room
Air-conditioned master bedroom with walk-in robe and ensuite
Built-in robes to remaining 2 bedrooms
Separate bathroom with spa bath
Air-conditioned family room adjoining the kitchen
Separate dining room/study
Gas cooktop with electric oven, dishwasher
Solar Panels
Remote double garage
Low maintenance yard
Water Tanks & Pump
Large Outdoor Pergola
Garden shed
Land 480 square metres
Motion-sensor security system, smoke alarms, security grill on doors & windows
Less than 5 minutes drive to schools, child care centre, shopping centre and the Lake
Disclaimer:
Whilst every care has been taken to verify the accuracy of the details in this advertisement, For Sale By Owner (forsalebyowner.com.au Pty Ltd) cannot guarantee its correctness. Prospective buyers or tenants need to take such action as is necessary, to satisfy themselves of any pertinent matters.
Features
Air Conditioning, Bath, Built-ins, Dishwasher, Ensuite, Formal Lounge, Gas Enabled, Inside Spa, Internal Laundry, Living Area, Remote Garage, Separate Dining Room, Entertainment Area, Garden, Garden Shed, Level Lawn, Pet Friendly, Rainwater Tank, Solar Hot Water, Solar Panels, Alarm System, Security Lights, Security Windows, Close to Parklands, Close to Schools, Close to Shops, Close to Transport, Quiet Location
Need a Home Loan?
Get pre-approved for a home loan within 48 hours. Click Here or more information.
- Last 24 Hours1
- Last 7 Days1
- Last 30 Days8
Views
Contact the Owner
Phone or Text: 0488 847 018
Enter Phone Code: 20843
Enter Phone Code: 20843
"*" indicates required fields