26 Stephen Street, Katoomba, NSW 2780
Sold Price: 680,000 (16 Oct 2020)
Character and Charm
This conveniently located home in South Katoomba is just a short distance from Katoomba town centre, schools, restaurants, cafes, galleries and popular tourist destinations.
The charming renovated cottage has an abundance of features, from the gorgeous mudroom when you enter the home to the original fireplace in the dining room and combustion fireplace in the lounge room. The fresh bright interiors really enhance the stained glass windows, which blend perfectly with decorative cornice.
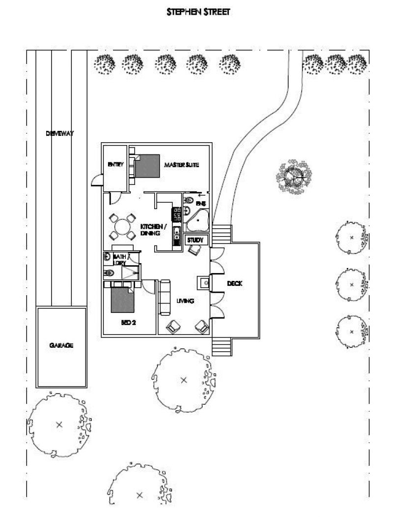
There are double French doors leading from the lounge room to the great entertaining deck with a seamless flow.
The bedrooms are both double in size, complete with ensuite to main
This home has an abundance of natural light and floorboards throughout complete this pretty picture
FEATURES
Timbers floors throughout
Two sets of French doors leading to fantastic north facing deck
Original stained glass Art Deco windows
High ornate ceiling throughout
Period light fittings
Study area
Mud room
Original working fireplace complete with mantel piece
Combustion fireplace in the lounge room
Bright country kitchen with gas stove
New roof only four years old
Roof insulated
Huge level garden full of assorted fruit trees
Water tank
Lock up garage and fully fenced yard
This gorgeous home would suit families with plenty of room to extend. It would also appeal to downsizers who would appreciate a level home and garden. Alternately would make an ideal weekend retreat or holiday accommodation.
The Phone Code for this property is: 79145. Please quote this number when phoning or texting.
Disclaimer:
Whilst every care has been taken to verify the accuracy of the details in this advertisement, For Sale By Owner (forsalebyowner.com.au Pty Ltd) cannot guarantee its correctness. Prospective buyers or tenants need to take such action as is necessary, to satisfy themselves of any pertinent matters.
The charming renovated cottage has an abundance of features, from the gorgeous mudroom when you enter the home to the original fireplace in the dining room and combustion fireplace in the lounge room. The fresh bright interiors really enhance the stained glass windows, which blend perfectly with decorative cornice.
There are double French doors leading from the lounge room to the great entertaining deck with a seamless flow.
The bedrooms are both double in size, complete with ensuite to main
This home has an abundance of natural light and floorboards throughout complete this pretty picture
FEATURES
Timbers floors throughout
Two sets of French doors leading to fantastic north facing deck
Original stained glass Art Deco windows
High ornate ceiling throughout
Period light fittings
Study area
Mud room
Original working fireplace complete with mantel piece
Combustion fireplace in the lounge room
Bright country kitchen with gas stove
New roof only four years old
Roof insulated
Huge level garden full of assorted fruit trees
Water tank
Lock up garage and fully fenced yard
This gorgeous home would suit families with plenty of room to extend. It would also appeal to downsizers who would appreciate a level home and garden. Alternately would make an ideal weekend retreat or holiday accommodation.
The Phone Code for this property is: 79145. Please quote this number when phoning or texting.
Disclaimer:
Whilst every care has been taken to verify the accuracy of the details in this advertisement, For Sale By Owner (forsalebyowner.com.au Pty Ltd) cannot guarantee its correctness. Prospective buyers or tenants need to take such action as is necessary, to satisfy themselves of any pertinent matters.
Features
Bath, Broadband, Deck, Ensuite, Fireplace(s), Formal Lounge, Fully Fenced, Gas Enabled, Inside Spa, Internal Laundry, Living Area, Modern Bathroom, Modern Kitchen, Polished Timber Floors, Remote Garage, Renovated, Renovated Bathroom, Renovated Kitchen, Separate Dining Room, Garden, Level Lawn, Pet Friendly, Rainwater Tank, Secure Parking, Shower Facilities, Storage Area, Security Lights, Close to Parklands, Close to Schools, Close to Shops, Close to Transport, Quiet Location
Need a Home Loan?
Get pre-approved for a home loan within 48 hours. Click Here or more information.
- Last 24 Hours0
- Last 7 Days0
- Last 30 Days3
Views
Contact the Owner
Phone or Text: 0488 847 018
Enter Phone Code: 79145
Enter Phone Code: 79145
"*" indicates required fields