420/74 Emerald Park Way, Urangan, QLD 4655
Sold Price: 350,000 (11 Mar 2021)
3x2 Retirement Villa for over 50's
The Phone Code for this property is: 76086. Please quote this number when phoning or texting.
A bright and modern Recreation Centre located in the heart of Hervey Bay, complete with an undercover BBQ area, solar heated swimming pool, spa, gym, library, and an outdoor games park set amongst 15 acres of landscaped gardens provides a variety of recreational options for residents.
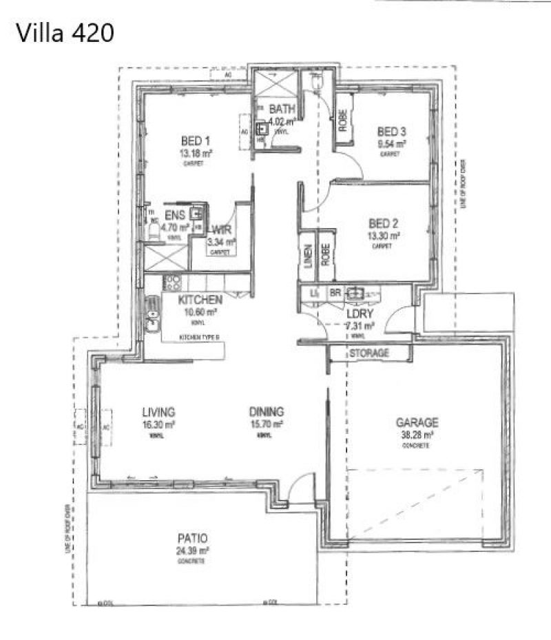
This freshly painted, light, and spacious home has an open plan living.
- 3 spacious bedrooms
- Main bedroom with walk-in closet
- Brand new carpet
- Air conditioning
- Modern kitchen with stainless steel appliances
- Ensuite plus second bathroom
- Wheelchair accessible bathroom and toilet
- Double garage with storage space
- Laundry area with storage space
- Surrounded by well-maintained garden area
- Huge covered patio out the front
- Close to the communal BBQ area
- Situated facing 2 road fronts
Located in Urangan QLD, only a few kilometers from the modern and convenient Urangan shopping centre, the Esplanade, beaches, and popular Great Sandy Straits Marina precinct with access to shopping, cafes, and restaurants to cater for all tastes.
Parklands Lifestyle Village is also serviced by a Village bus for your convenience.
Disclaimer:
Whilst every care has been taken to verify the accuracy of the details in this advertisement, For Sale By Owner (forsalebyowner.com.au Pty Ltd) cannot guarantee its correctness. Prospective buyers or tenants need to take such action as is necessary, to satisfy themselves of any pertinent matters.
A bright and modern Recreation Centre located in the heart of Hervey Bay, complete with an undercover BBQ area, solar heated swimming pool, spa, gym, library, and an outdoor games park set amongst 15 acres of landscaped gardens provides a variety of recreational options for residents.
This freshly painted, light, and spacious home has an open plan living.
- 3 spacious bedrooms
- Main bedroom with walk-in closet
- Brand new carpet
- Air conditioning
- Modern kitchen with stainless steel appliances
- Ensuite plus second bathroom
- Wheelchair accessible bathroom and toilet
- Double garage with storage space
- Laundry area with storage space
- Surrounded by well-maintained garden area
- Huge covered patio out the front
- Close to the communal BBQ area
- Situated facing 2 road fronts
Located in Urangan QLD, only a few kilometers from the modern and convenient Urangan shopping centre, the Esplanade, beaches, and popular Great Sandy Straits Marina precinct with access to shopping, cafes, and restaurants to cater for all tastes.
Parklands Lifestyle Village is also serviced by a Village bus for your convenience.
Disclaimer:
Whilst every care has been taken to verify the accuracy of the details in this advertisement, For Sale By Owner (forsalebyowner.com.au Pty Ltd) cannot guarantee its correctness. Prospective buyers or tenants need to take such action as is necessary, to satisfy themselves of any pertinent matters.
Need a Home Loan?
Get pre-approved for a home loan within 48 hours. Click Here or more information.
- Last 24 Hours1
- Last 7 Days1
- Last 30 Days1
Views
Contact the Owner
Phone or Text: 0488 847 018
Enter Phone Code: 76086
Enter Phone Code: 76086
"*" indicates required fields