18 Liverpool Street, Eight Mile Plains, QLD 4113
Sold Price: 500,000 (19 Aug 2020)
Get ready to fall in love with your new home !
The Phone Code for this property is: 70572. Please quote this number when phoning or texting.
Price reduced
18 LIVERPOOL STREET, EIGHT MILE PLAINS
Here is a rare opportunity to secure a foothold for a small price in one of Brisbane's most sought after suburbs. Most importantly it will be at a very attractive price !
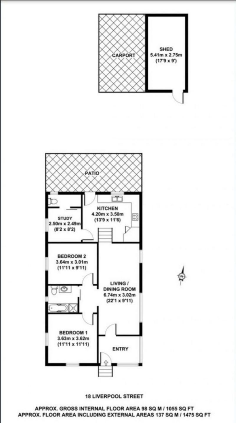
Entering through the front door and into the sleepout offering additional space and opportunity, the potential of this home can already be felt.
Beautiful hardwood flooring sweeps through the open plan living and dining which features ceiling fans and into the two great sized bedrooms.
With high ceilings, the near new kitchen feels extremely open and spacious and offers an abundance of storage solutions.
The home is serviced by a renovated bathroom with separate shower and bath for all members of the family.
An additional bedroom/office with separate toilet completes the interior of the property.
A large rear undercover entertaining area is located off the kitchen and overlooks the backyard.
Summary of Features:
Two great sized bedrooms
Open plan living and dining with hardwood flooring and ceiling fans
Recently renovated kitchen with high ceilings, an abundance of storage space and ceramic cooktop
Beautifully renovated bathroom with separate bath and shower
Carpeted third bedroom or office with additional toilet
Sleepout
Large undercover rear entertaining area
Single carport and lock up storage shed/ workshop
1.7km to Westfield's Garden City Shopping Centre (currently undergoing $400mil upgrade)
400m to Pacific Motorway onramp
500m to Bus Stop (bus #150 to city)
850m to Eight Mile Plains Shopping Centre
1.3km to Eight Mile Plains Bus Station (South East Busway)
14km (13min) to Brisbane CBD
Private Inspections available on request for this property.
Disclaimer:
Whilst every care has been taken to verify the accuracy of the details in this advertisement, For Sale By Owner (forsalebyowner.com.au Pty Ltd) cannot guarantee its correctness. Prospective buyers or tenants need to take such action as is necessary, to satisfy themselves of any pertinent matters.
Price reduced
18 LIVERPOOL STREET, EIGHT MILE PLAINS
Here is a rare opportunity to secure a foothold for a small price in one of Brisbane's most sought after suburbs. Most importantly it will be at a very attractive price !
Entering through the front door and into the sleepout offering additional space and opportunity, the potential of this home can already be felt.
Beautiful hardwood flooring sweeps through the open plan living and dining which features ceiling fans and into the two great sized bedrooms.
With high ceilings, the near new kitchen feels extremely open and spacious and offers an abundance of storage solutions.
The home is serviced by a renovated bathroom with separate shower and bath for all members of the family.
An additional bedroom/office with separate toilet completes the interior of the property.
A large rear undercover entertaining area is located off the kitchen and overlooks the backyard.
Summary of Features:
Two great sized bedrooms
Open plan living and dining with hardwood flooring and ceiling fans
Recently renovated kitchen with high ceilings, an abundance of storage space and ceramic cooktop
Beautifully renovated bathroom with separate bath and shower
Carpeted third bedroom or office with additional toilet
Sleepout
Large undercover rear entertaining area
Single carport and lock up storage shed/ workshop
1.7km to Westfield's Garden City Shopping Centre (currently undergoing $400mil upgrade)
400m to Pacific Motorway onramp
500m to Bus Stop (bus #150 to city)
850m to Eight Mile Plains Shopping Centre
1.3km to Eight Mile Plains Bus Station (South East Busway)
14km (13min) to Brisbane CBD
Private Inspections available on request for this property.
Disclaimer:
Whilst every care has been taken to verify the accuracy of the details in this advertisement, For Sale By Owner (forsalebyowner.com.au Pty Ltd) cannot guarantee its correctness. Prospective buyers or tenants need to take such action as is necessary, to satisfy themselves of any pertinent matters.
Need a Home Loan?
Get pre-approved for a home loan within 48 hours. Click Here or more information.
- Last 24 Hours0
- Last 7 Days0
- Last 30 Days1
Views
Contact the Owner
Phone or Text: 0488 847 018
Enter Phone Code: 70572
Enter Phone Code: 70572
"*" indicates required fields