63A Red Head Road, Red Head, NSW 2430
Sold Price Not Disclosed (06 Sep 2021)
Architectural Designed, 180° Panoramic Ocean to Mountain Views!
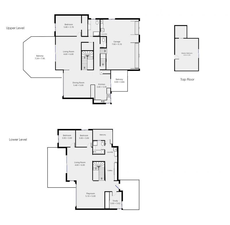
Spread over 2 spacious levels and a loft - 5 bedrooms, 2 bathrooms and separate powder room, 2 kitchens, formal dinning, 2 living rooms, 2 laundries, 3 car garage with remote.
Situated on top of Red Head ridge, this beautiful architectural designed family home is set over two levels with 180 degree uninterrupted views from Black Head Beach, with Forster in the distance, and Coolongolook and all the way to the Barring Tops.
The upper level has an open plan kitchen with granite bench tops. 2 bedrooms, bathroom and separate powder room. Formal Dining room and adjoining living room with elevated ceilings leads out to a massive entertainment deck, all of which take advantage of the breathtaking views! - The lower floor boasts a billiards area, additional 2 bedrooms, office/study (or 5th bedroom), separate open spacious living area with a bonus kitchenette, full bathroom and a second laundry. Additionally it has its own large outdoor balcony with sweeping views of the valley below. This would be well suited for a teenagers retreat or utilised for visiting guests as separate self-contained accommodation which also has its own street entry. Both levels take advantage of the panoramic views featuring floor to ceiling windows throughout.
Cool in summer, warm in winter, this unique property is equally suited for a large family or could accommodate a smaller family and couples with frequent visiting guests.
Less than 700m to Black Head Beach and Rainforest Nature Walk, enjoy morning and evening beach walks, a surf or laps in Black Head Rock Pool. Hallidays Point Shopping Centre is just a short 4 min drive!
For further information please contact.
The Phone Code for this property is: 99109. Please quote this number when phoning or texting.
Disclaimer:
Whilst every care has been taken to verify the accuracy of the details in this advertisement, For Sale By Owner (forsalebyowner.com.au Pty Ltd) cannot guarantee its correctness. Prospective buyers or tenants need to take such action as is necessary, to satisfy themselves of any pertinent matters.
Situated on top of Red Head ridge, this beautiful architectural designed family home is set over two levels with 180 degree uninterrupted views from Black Head Beach, with Forster in the distance, and Coolongolook and all the way to the Barring Tops.
The upper level has an open plan kitchen with granite bench tops. 2 bedrooms, bathroom and separate powder room. Formal Dining room and adjoining living room with elevated ceilings leads out to a massive entertainment deck, all of which take advantage of the breathtaking views! - The lower floor boasts a billiards area, additional 2 bedrooms, office/study (or 5th bedroom), separate open spacious living area with a bonus kitchenette, full bathroom and a second laundry. Additionally it has its own large outdoor balcony with sweeping views of the valley below. This would be well suited for a teenagers retreat or utilised for visiting guests as separate self-contained accommodation which also has its own street entry. Both levels take advantage of the panoramic views featuring floor to ceiling windows throughout.
Cool in summer, warm in winter, this unique property is equally suited for a large family or could accommodate a smaller family and couples with frequent visiting guests.
Less than 700m to Black Head Beach and Rainforest Nature Walk, enjoy morning and evening beach walks, a surf or laps in Black Head Rock Pool. Hallidays Point Shopping Centre is just a short 4 min drive!
For further information please contact.
The Phone Code for this property is: 99109. Please quote this number when phoning or texting.
Disclaimer:
Whilst every care has been taken to verify the accuracy of the details in this advertisement, For Sale By Owner (forsalebyowner.com.au Pty Ltd) cannot guarantee its correctness. Prospective buyers or tenants need to take such action as is necessary, to satisfy themselves of any pertinent matters.
Features
Balcony/Patio/Terrace, Bath, Built-ins, Deck, Dishwasher, Formal Lounge, Gas Enabled, Heating, Internal Laundry, Living Area, Modern Bathroom, Modern Kitchen, Remote Garage, Rumpus Room, Separate Dining Room, Study, BBQ, Balcony, Courtyard, Entertainment Area, Garden, Pet Friendly, Rainwater Tank, Alarm System, Intercom, Safe, Security Lights, Close to Parklands, Close to Schools, Close to Shops, Close to Transport, Near Waterfront, Quiet Location, Views, Beach/Coastal Property, Prestige Property
Need a Home Loan?
Get pre-approved for a home loan within 48 hours. Click Here or more information.
- Last 24 Hours0
- Last 7 Days1
- Last 30 Days11
Views
Contact the Owner
Phone or Text: 0488 847 018
Enter Phone Code: 99109
Enter Phone Code: 99109
"*" indicates required fields